مسابقه طراحی پکیج معماری ویلا دهکده شیرین

0

اطلاعات پروژه

علی اکبر بخشی

نوع مسابقه: طراحی ویلا
سال انجام پروژه : 1399
نقش: طراح
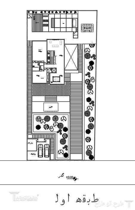
موقعیت : سلمان شهر
متراژ زیربنا : 1147
مساحت زمین : 500
کارفرما : سیما دشتی

خدمات ارائه شده توسط طراح

خدمات طراحی و کانسپت
دکوراسیون داخلی
طراحی منظر، فضای سبز، لند اسکیپ، روف گاردن و محوطه
طراحی پلان (نقشه معماری) فاز 1
طراحی نما
طراحی داخلی

موقعیت مکانی پروژه

پیشنهاد و بازخورد