مسابقه طراحی پلان پروژه مینا

0

اطلاعات پروژه

ARMINARMANSTUDIO

نوع مسابقه: طراحی مسکونی
سال انجام پروژه : 1402
نقش: طراح
موقعیت : تهران
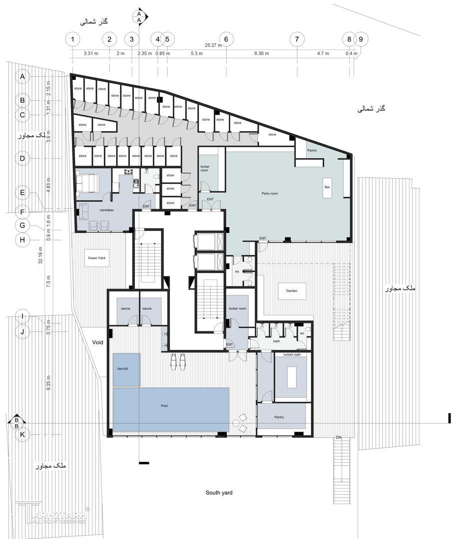
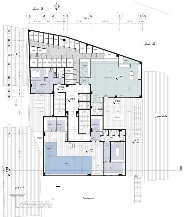
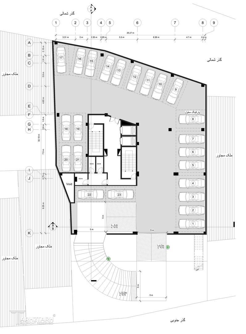
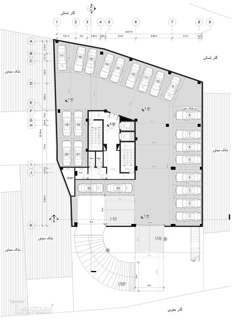
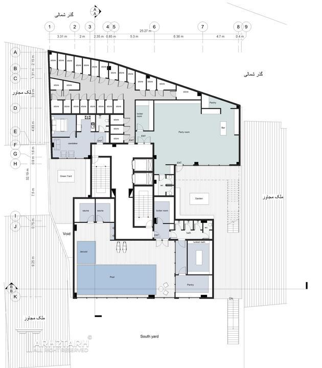
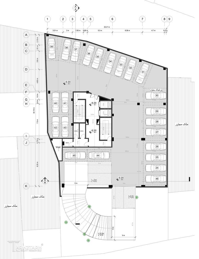
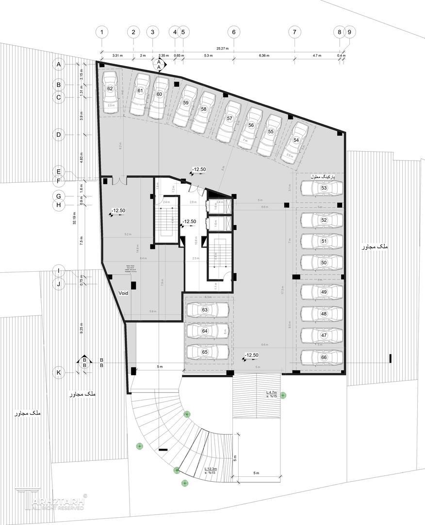
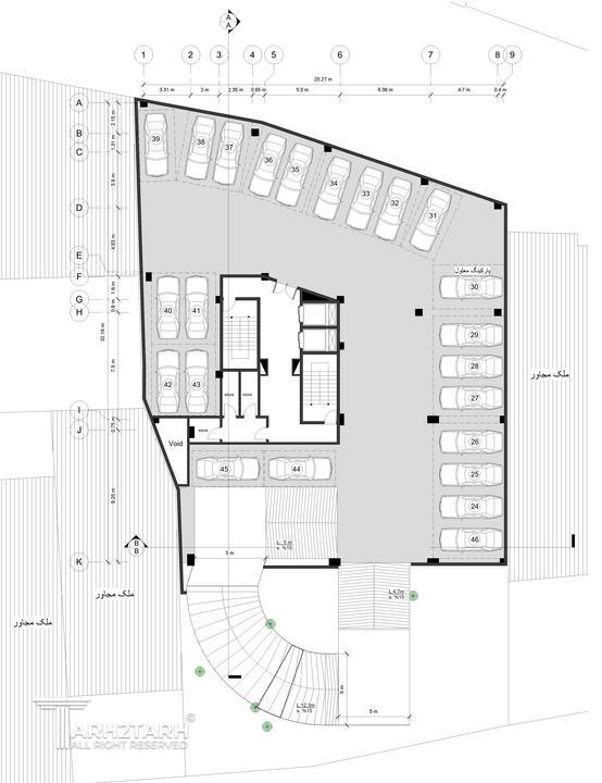
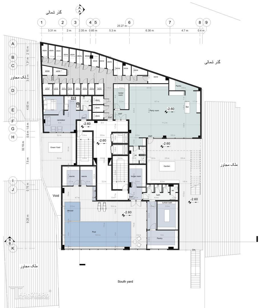
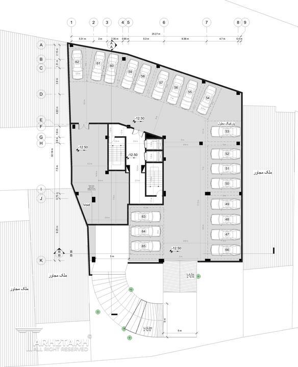
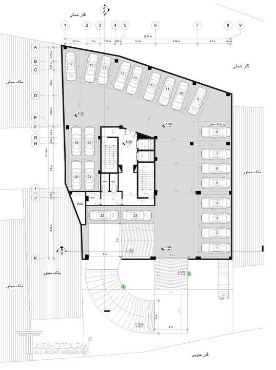
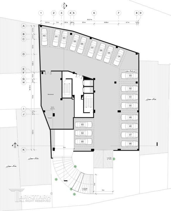
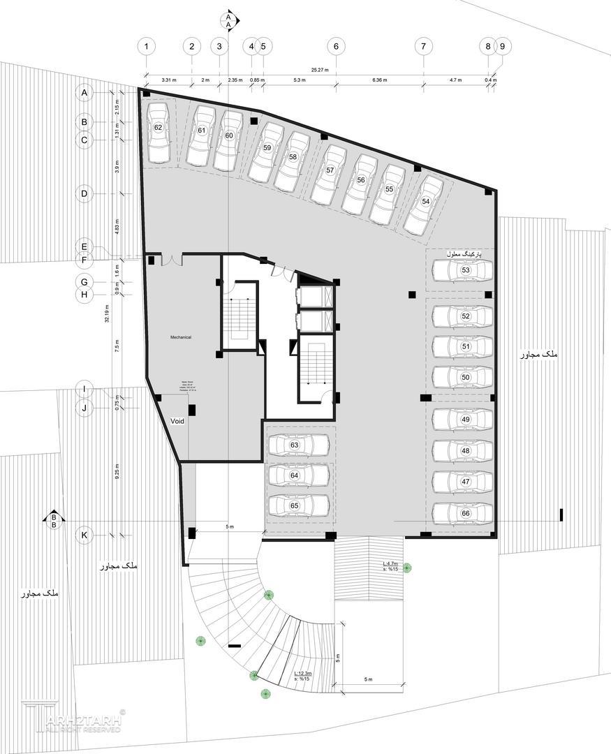
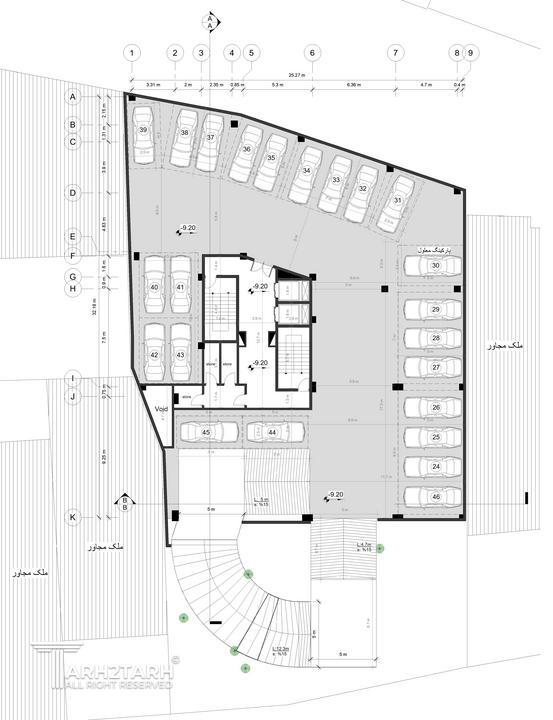
متراژ زیربنا : 5932
مساحت زمین : 800
کارفرما : مهندس جامی

موقعیت مکانی پروژه

پیشنهاد و بازخورد