نفر دوم مسابقه مسابقه طراحی پلان و نما شادی

0

اطلاعات پروژه

دفتر معماری هوچهر

نوع مسابقه: طراحی مسکونی
سال انجام پروژه : 1399
نقش: طراح
موقعیت : تهران
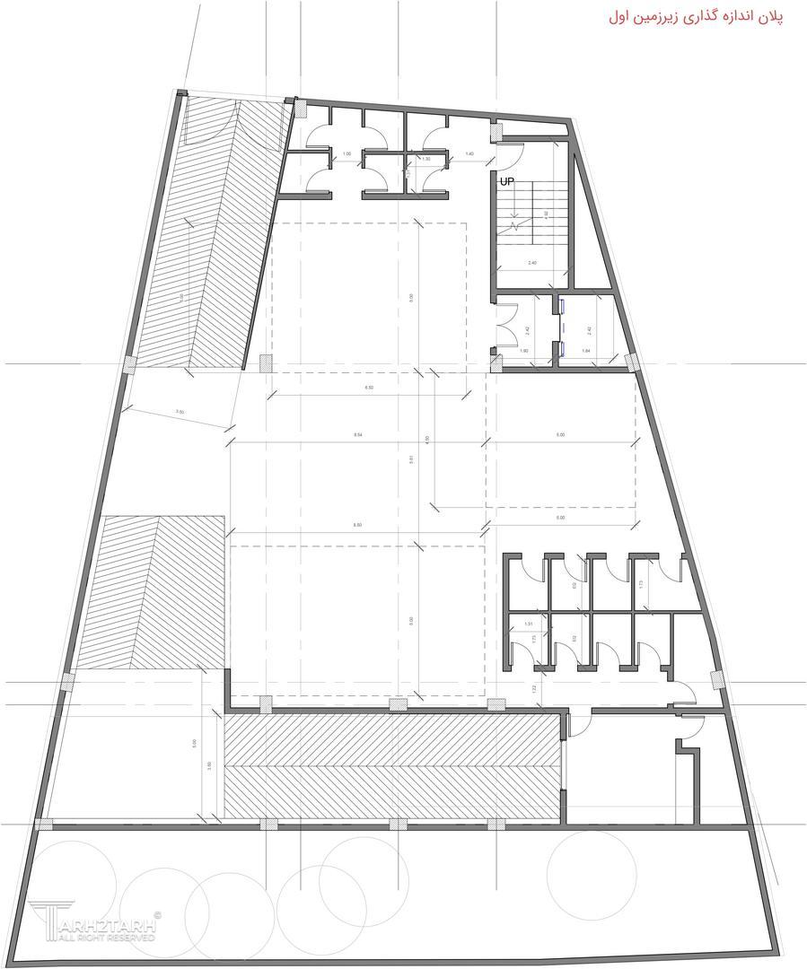
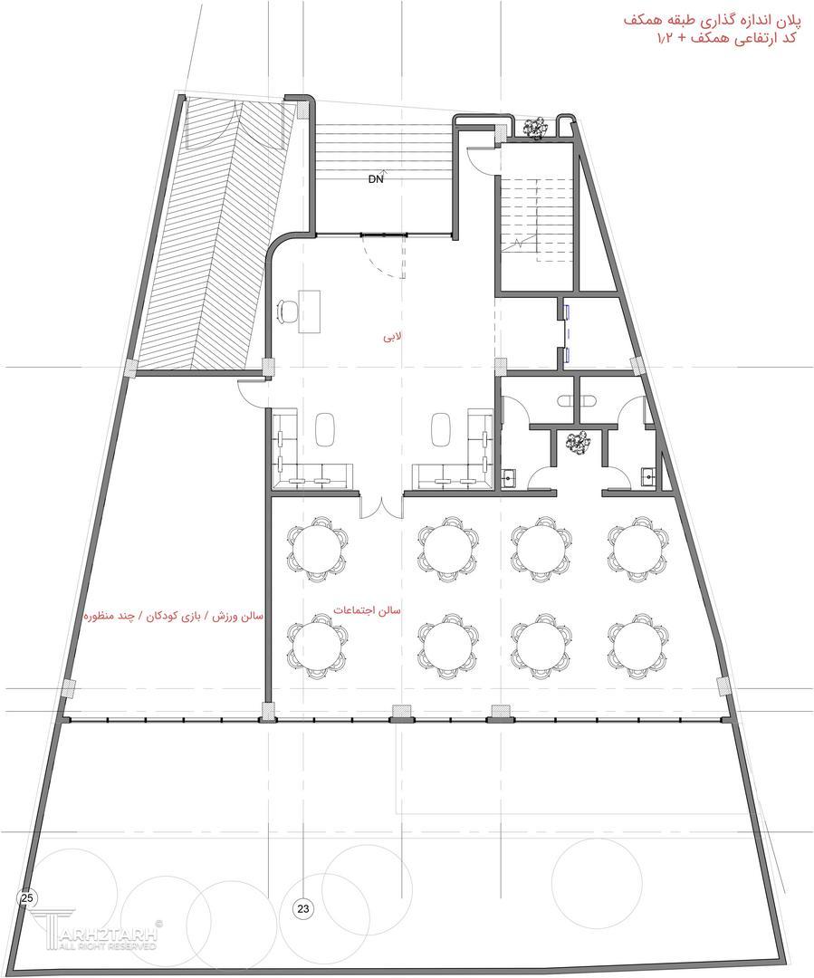
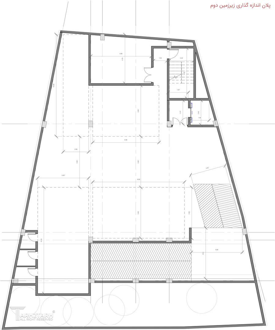
متراژ زیربنا : 2122
مساحت زمین : 500
کارفرما : علیرضا توکلی

موقعیت مکانی پروژه

پیشنهاد و بازخورد