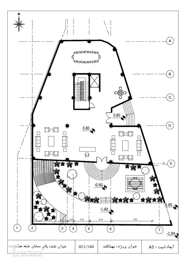
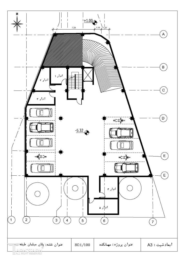
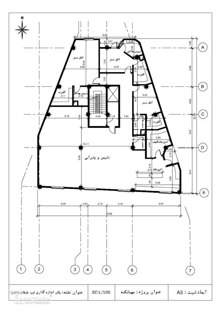
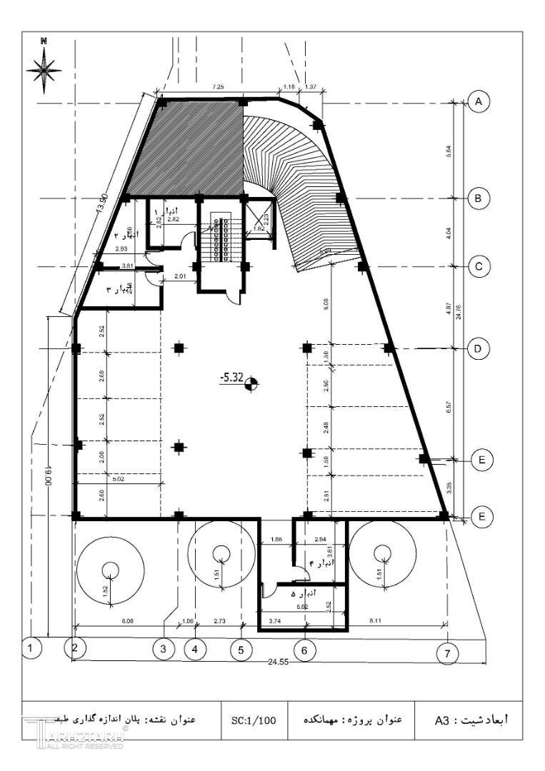
مسابقه طراحی پلان مهمانکده

0

اطلاعات پروژه

علیرضا شامیانی

نوع مسابقه: طراحی مسکونی
سال انجام پروژه : 1400
نقش: طراح
موقعیت : تهران
متراژ زیربنا : 3400
مساحت زمین : 606
کارفرما : ابراهیم گل فشان

موقعیت مکانی پروژه

پیشنهاد و بازخورد