دماوند
1403
0

اطلاعات پروژه

نقش : طراح ارشد
کارفرما : اقا عابدی
نوع پروژه : طرح اجرایی
وضعیت : اجرا نشده
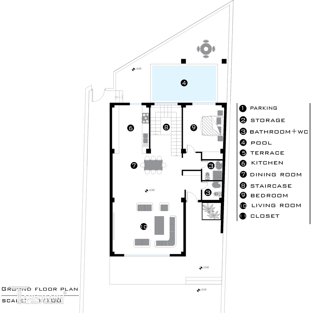
کاربری : ویلا
متراژ زمین : 400
متراژ زیربنا : 116
سبک‌های طراحی: مدرن

خدمات ارائه شده توسط طراح

خدمات طراحی و کانسپت
طراحی منظر، فضای سبز، لند اسکیپ، روف گاردن و محوطه
طراحی نورپردازی
طراحی نقشه سازه (فولادی، بتنی)
طراحی نقشه سازه
طراحی نقشه تأسیسات مکانیکی
طراحی نقشه تأسیسات الکتریکی
طراحی سیستم‌های گرمایش، سرمایش، تهویه
طراحی کانسپت (معماری)
طراحی پلان (نقشه معماری) فاز 1
طراحی نما
طراحی داخلی
خدمات مشاوره و امکانسنجی
مشاوره تحلیل سایت پروژه
مشاوره فاز صفر و امکان‌سنجی پروژه
مشاوره و برنامه‌ریزی تعیین کاربری پروژه
مشاوره طراحی اقلیمی
مشاوره مالی و بودجه‌ای
مشاوره آتش‌نشانی

توضیحات پروژه

ویلا عابدی در طبیعت بکر حصار دماوند، بر زمینی 400 متری طراحی شده و با دو طبقه و شاه‌نشینی بر بام، تجربه‌ای از سکونت در پیوند با طبیعت می‌آفریند. این بنا با تعادل میان نور، دید و خلوت، ترکیبی از اصالت و مدرنیته را ارائه می‌دهد و معماری‌ای معناگرا، مینیمال و همسو با محیط زیست خلق می‌کند.

موقعیت مکانی پروژه

نظرات
پیشنهاد و بازخورد