مسابقه نما و روف گاردن و نشیمن آفتاب

0

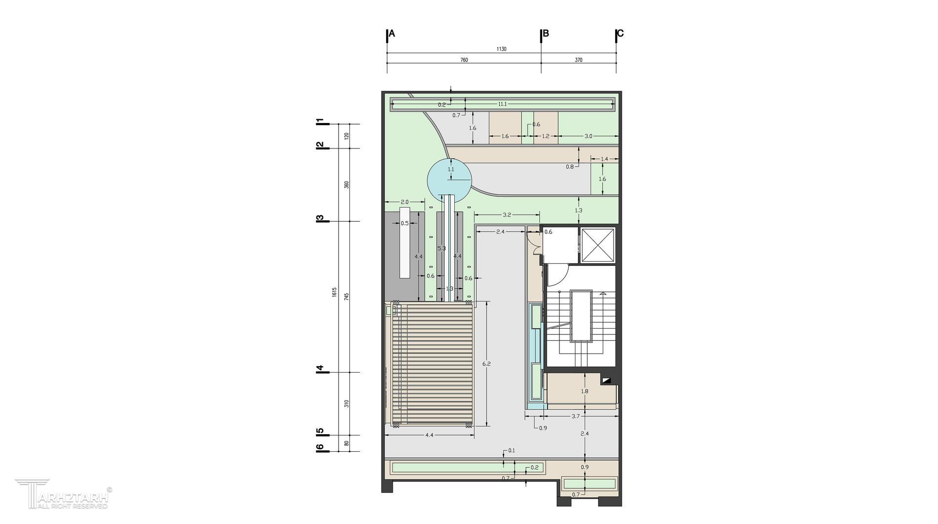
اطلاعات پروژه

سارا مرادی

نوع مسابقه: طراحی مسکونی
سال انجام پروژه : 1404
نقش: طراح
موقعیت : بوشهر
متراژ زیربنا : 1000
مساحت زمین : 238
کارفرما : مهدی پیوس

خدمات ارائه شده توسط طراح

خدمات طراحی و کانسپت
طراحی نورپردازی
طراحی پلان (نقشه معماری) فاز 1
طراحی نما

موقعیت مکانی پروژه

پیشنهاد و بازخورد