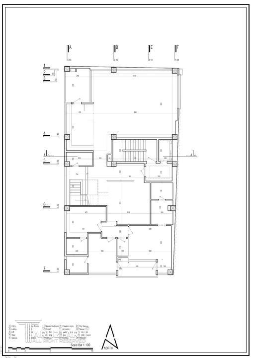
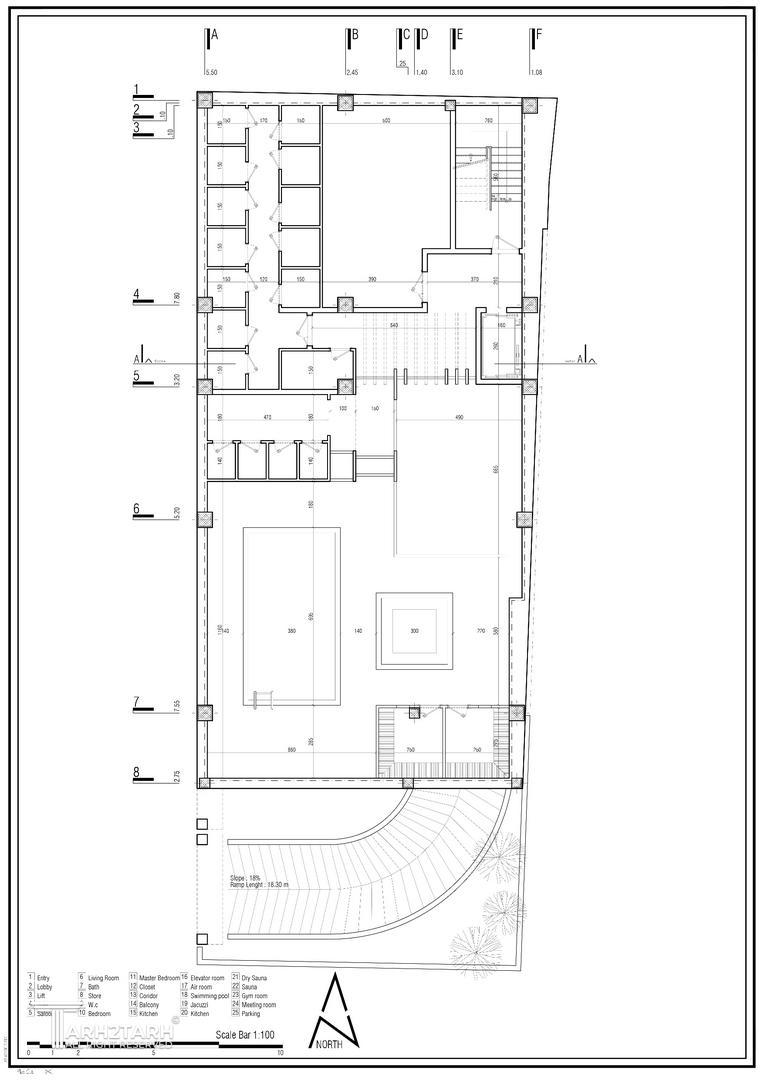
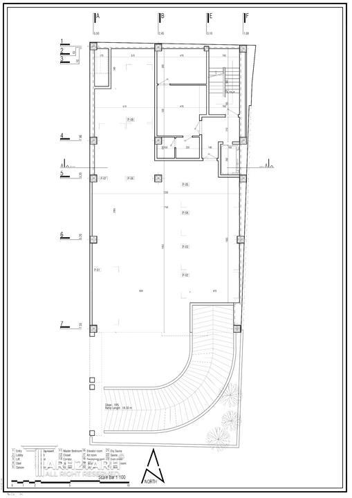
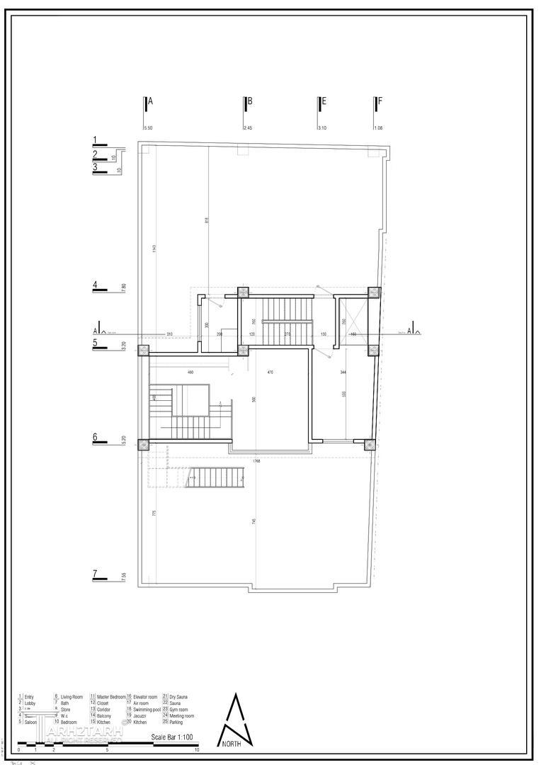
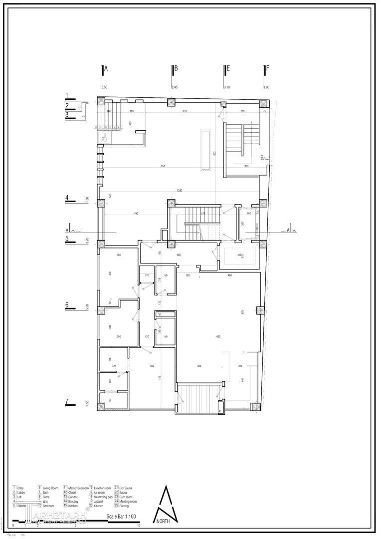
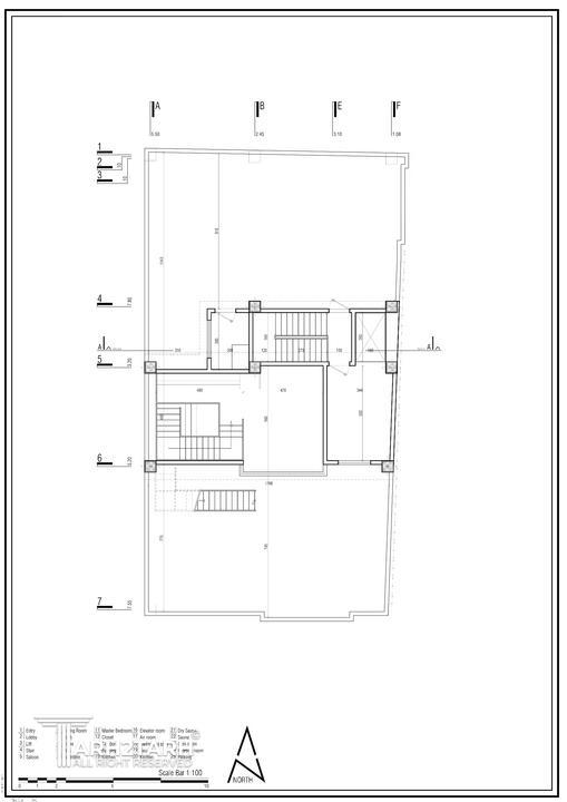
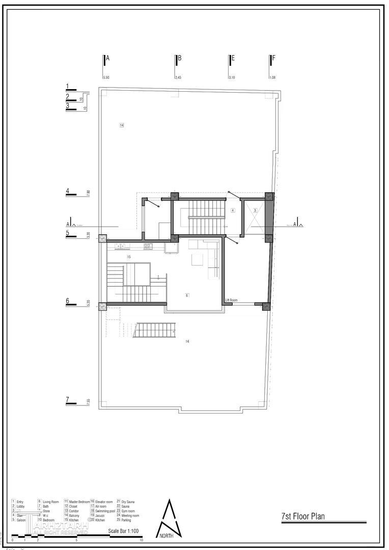
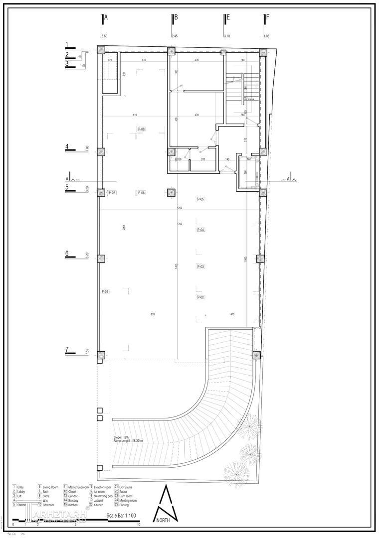
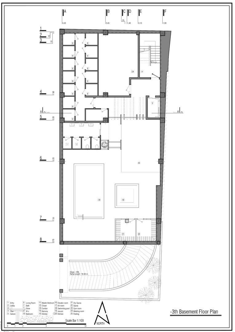
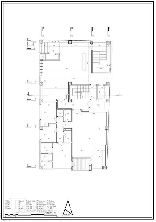
مسابقه طراحی پلان پروژه آفتاب شرق

0

اطلاعات پروژه

ناطقیان

نوع مسابقه: طراحی مسکونی
سال انجام پروژه : 1402
نقش: طراح
موقعیت : تهران
متراژ زیربنا : 3000
مساحت زمین : 455
کارفرما : جعفر طاهری

خدمات ارائه شده توسط طراح

خدمات طراحی و کانسپت
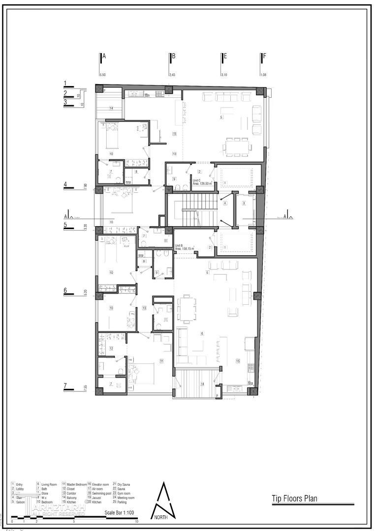
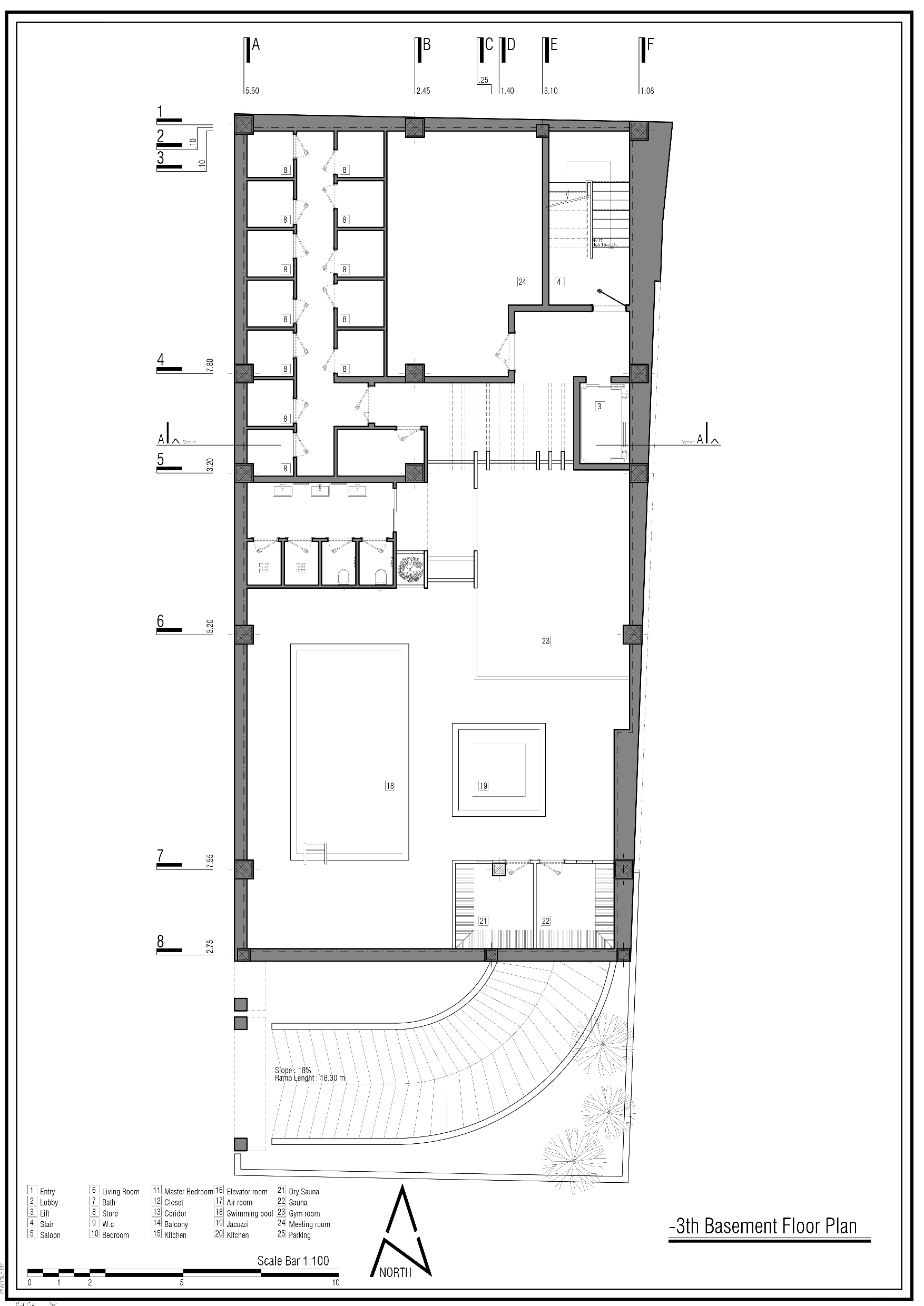
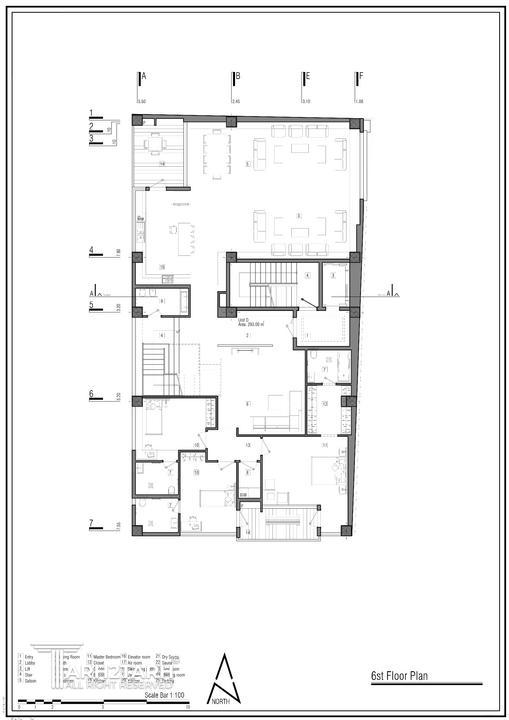
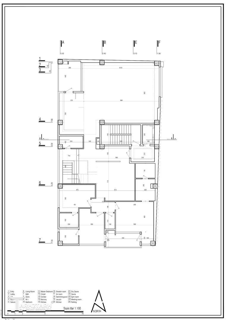
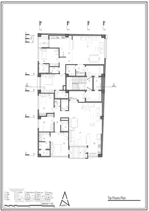
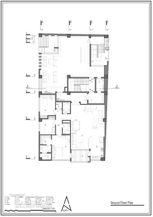
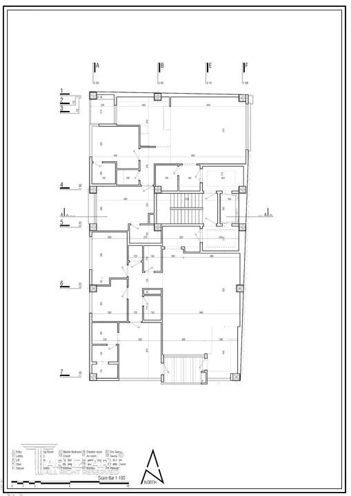
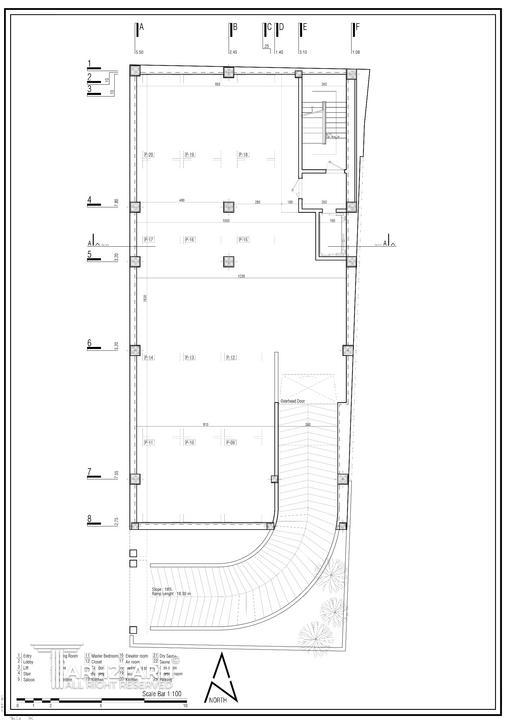
طراحی پلان (نقشه معماری) فاز 1

موقعیت مکانی پروژه

پیشنهاد و بازخورد