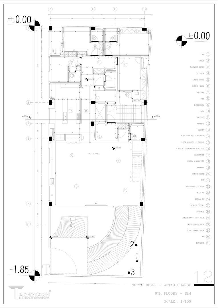
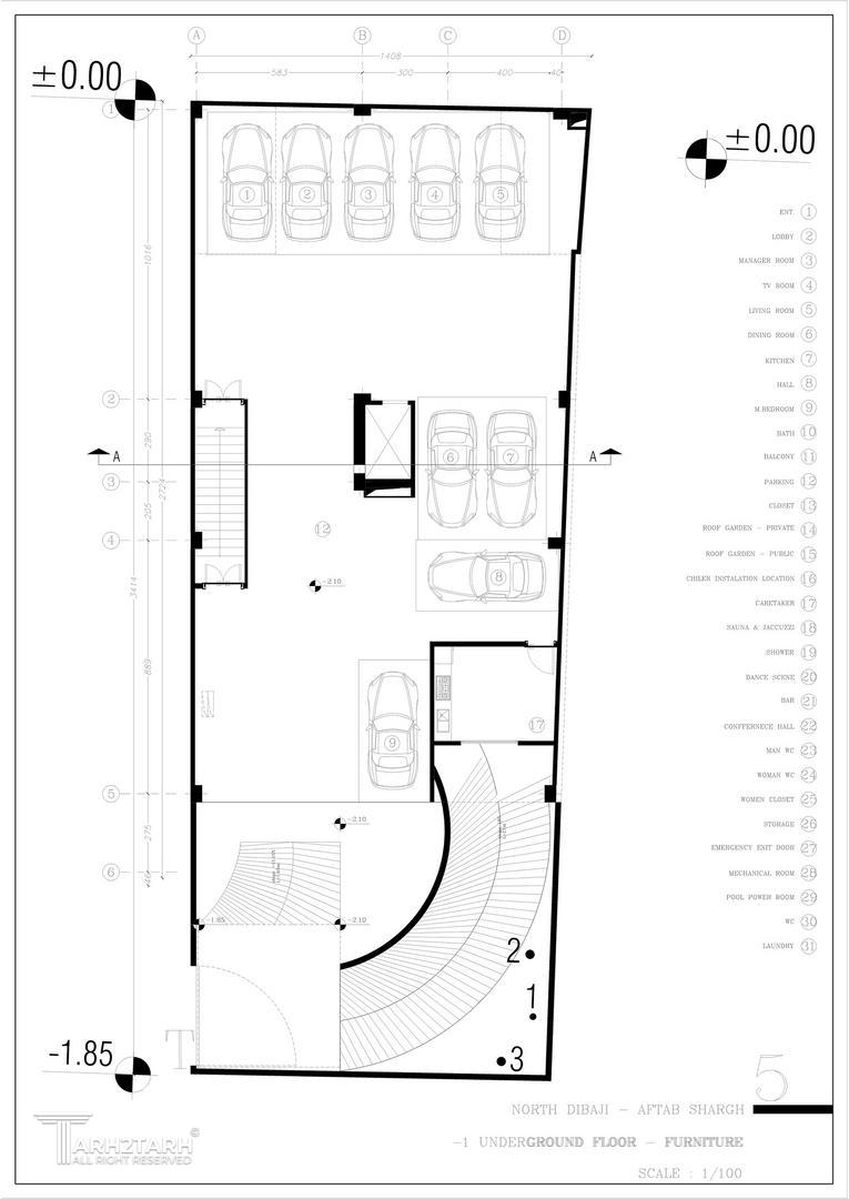
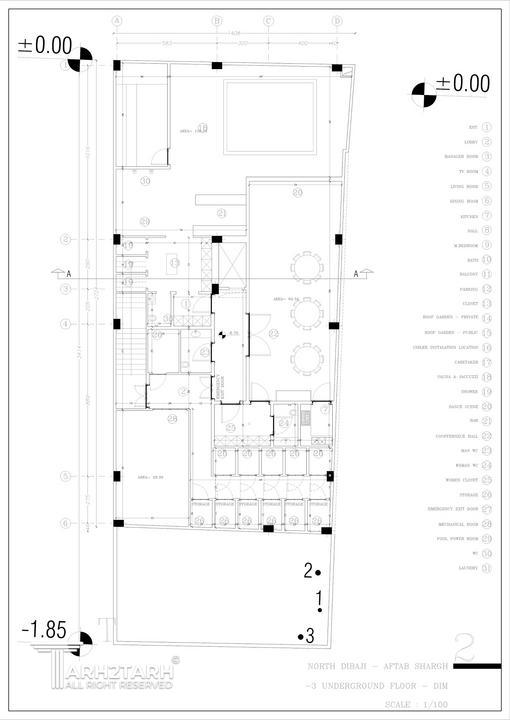
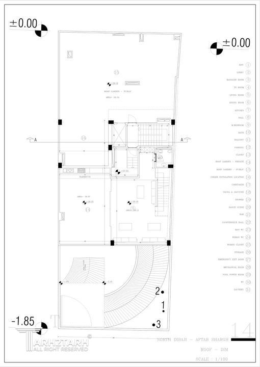
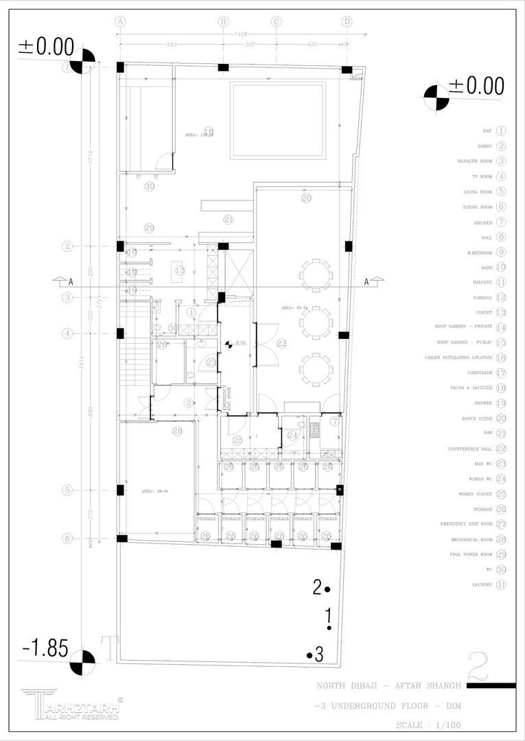
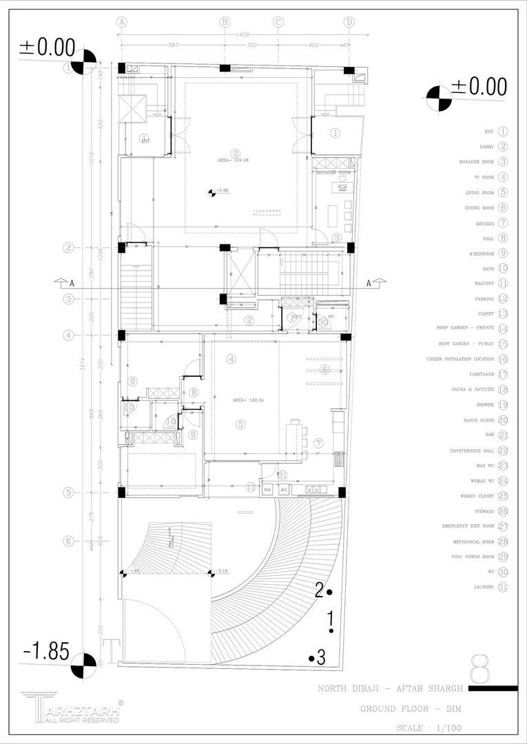
مسابقه طراحی پلان پروژه آفتاب شرق

0

اطلاعات پروژه

علی محمد حسن

نوع مسابقه: طراحی مسکونی
سال انجام پروژه : 1402
نقش: طراح
موقعیت : تهران
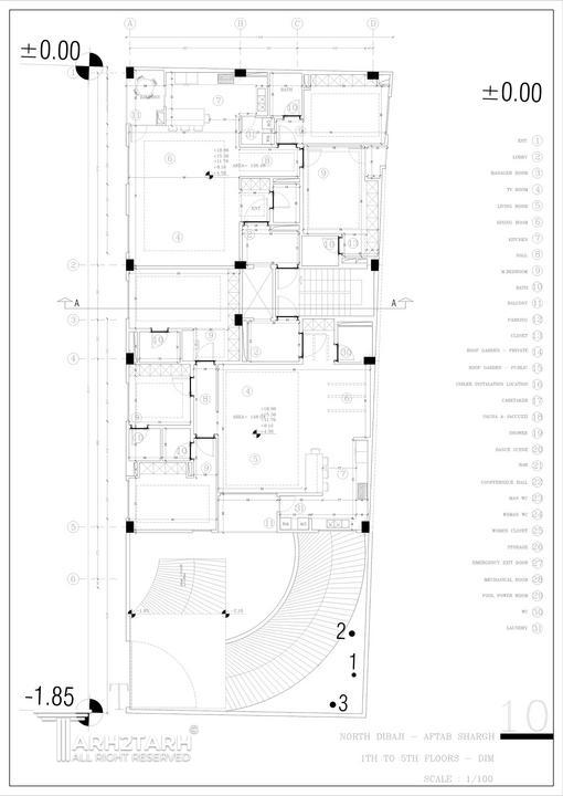
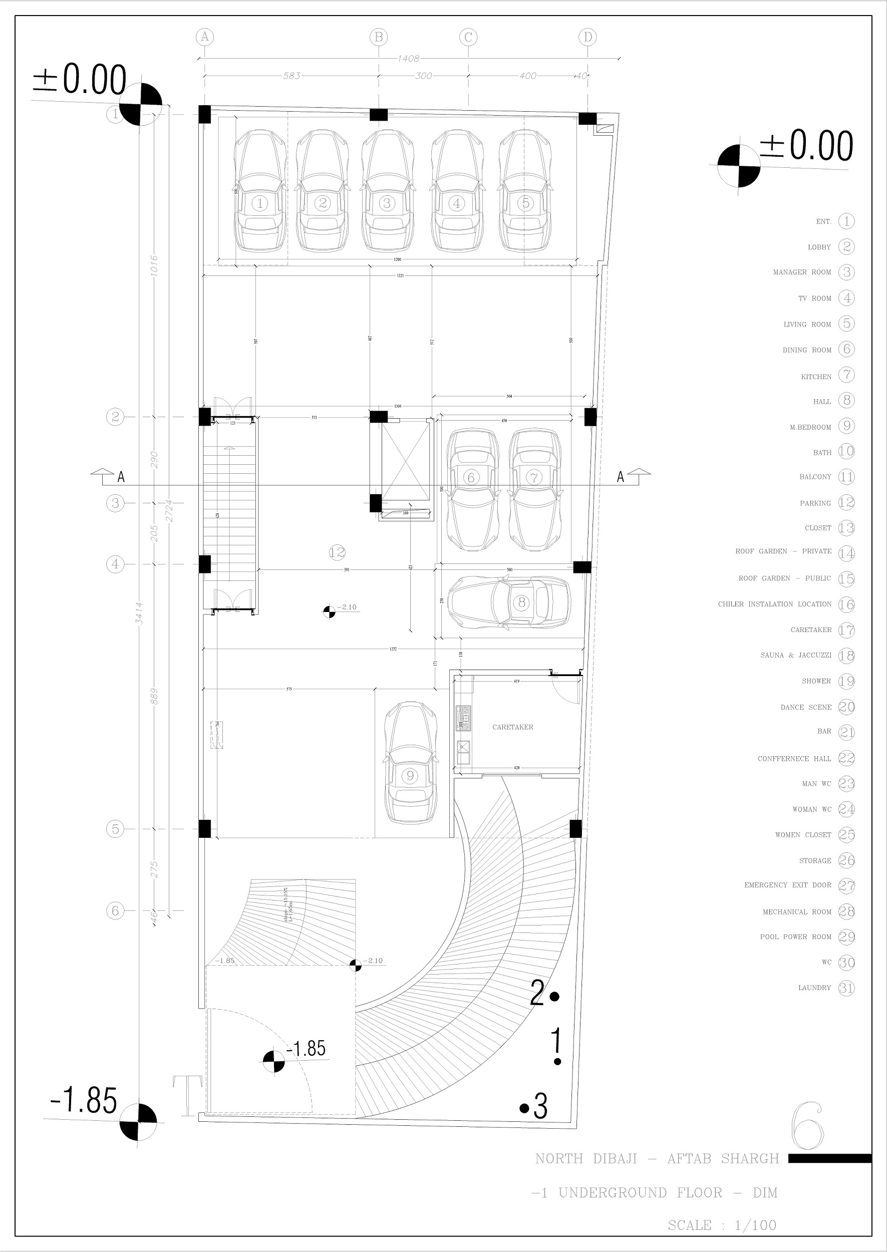
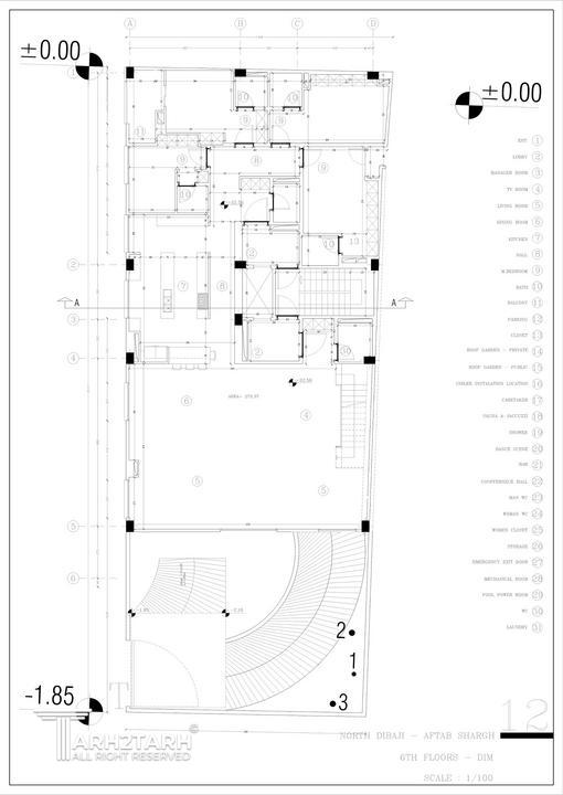
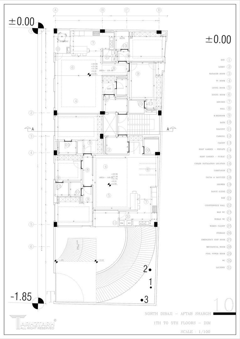
متراژ زیربنا : 3000
مساحت زمین : 455
کارفرما : جعفر طاهری

خدمات ارائه شده توسط طراح

خدمات طراحی و کانسپت
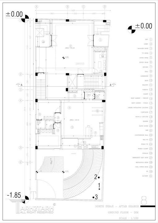
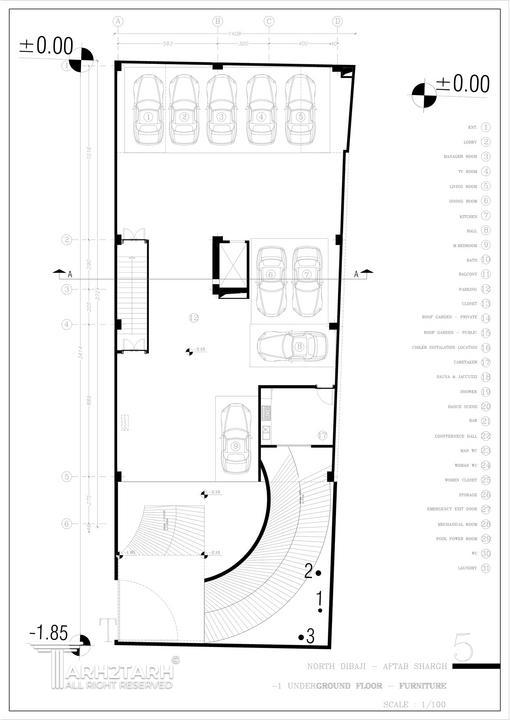
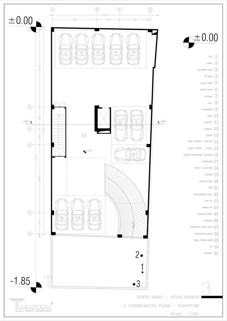
طراحی پلان (نقشه معماری) فاز 1

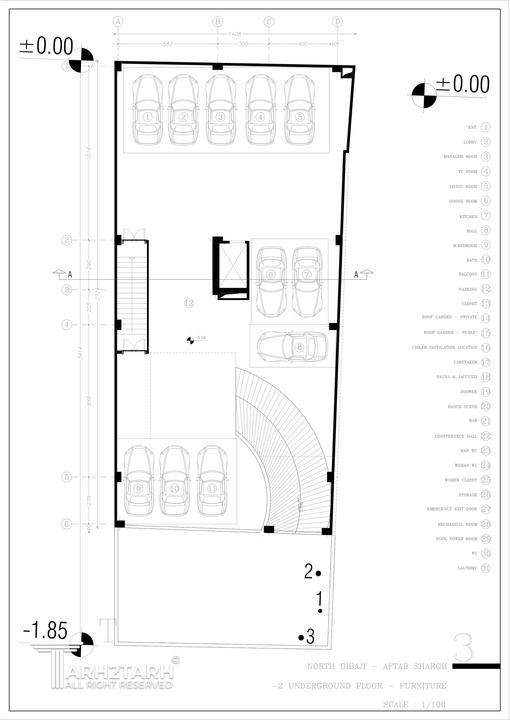
موقعیت مکانی پروژه

پیشنهاد و بازخورد