مسابقه طراحی پلان امیر صبوری 1

0

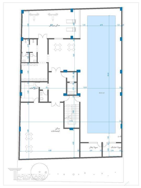
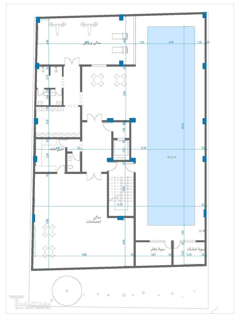
اطلاعات پروژه

kiani studio

نوع مسابقه: طراحی مسکونی
سال انجام پروژه : 1401
نقش: طراح
موقعیت : تهران
متراژ زیربنا : 3000
مساحت زمین : 550
کارفرما : امیر جعفری

خدمات ارائه شده توسط طراح

خدمات طراحی و کانسپت
طراحی پلان (نقشه معماری) فاز 1

موقعیت مکانی پروژه

پیشنهاد و بازخورد