مسابقه طراحی نما مجتمع مسکونی ارگ فرمانیه

0

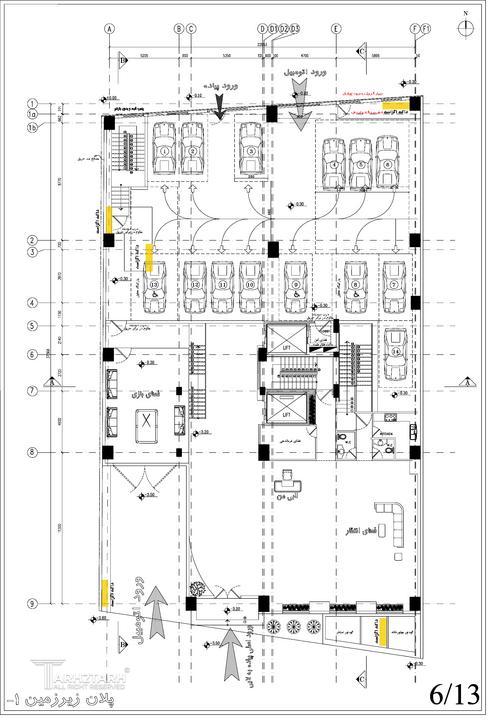
اطلاعات پروژه

استودیو یازده

نوع مسابقه: طراحی مسکونی
سال انجام پروژه : 1402
نقش: طراح
موقعیت : تهران
متراژ زیربنا : 8000
مساحت زمین : 1000
کارفرما : علی واحدی

خدمات ارائه شده توسط طراح

خدمات طراحی و کانسپت
طراحی نورپردازی
طراحی نما
طراحی داخلی

موقعیت مکانی پروژه

پیشنهاد و بازخورد