مسابقه طراحی ساختمان اداری ارمغان

0

اطلاعات پروژه

میم

نوع مسابقه: طراحی تجاری/ اداری
سال انجام پروژه : 1401
نقش: طراح
موقعیت : تهران
متراژ زیربنا : 5500
مساحت زمین : 600
کارفرما : علیرضا توکلی

خدمات ارائه شده توسط طراح

خدمات طراحی و کانسپت
طراحی نورپردازی
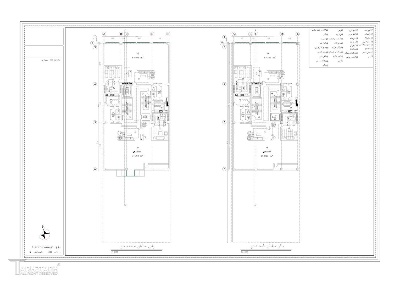
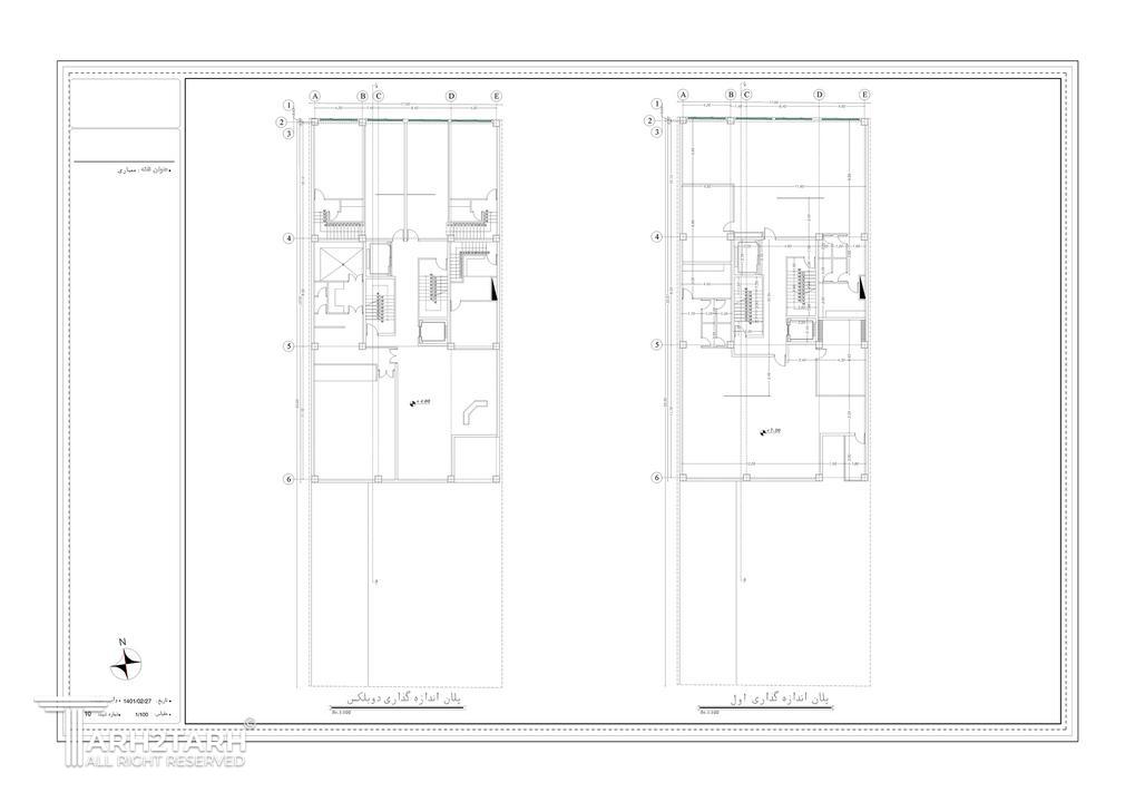
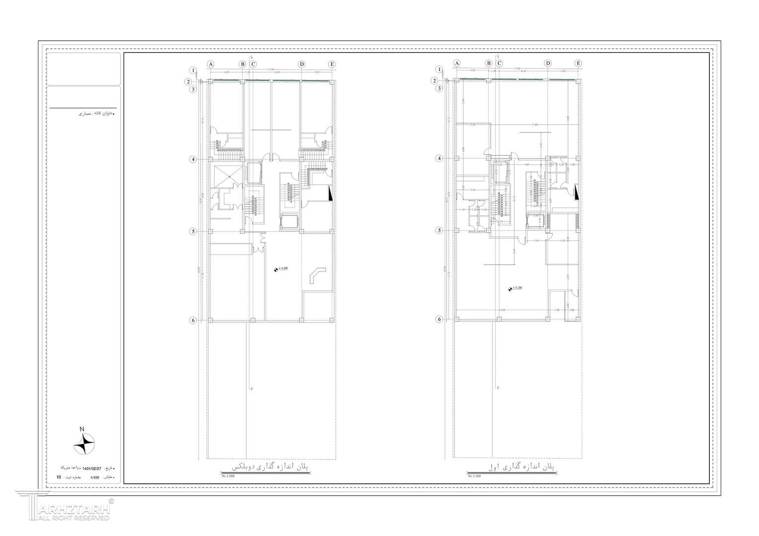
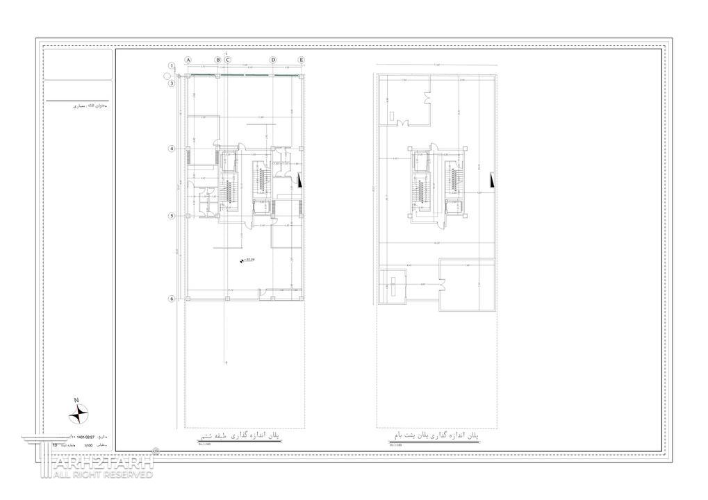
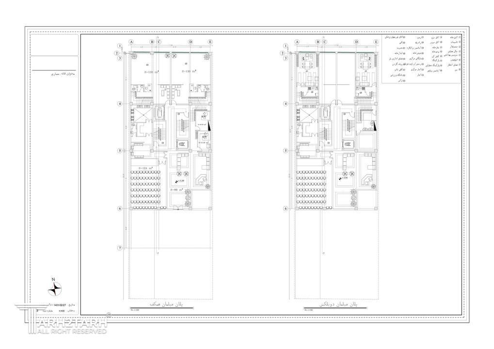
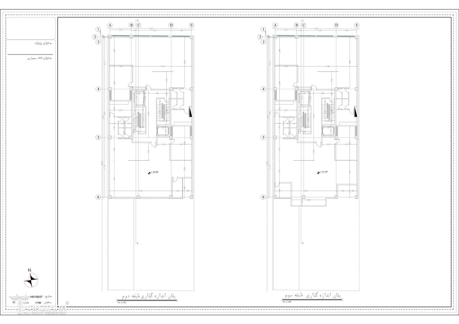
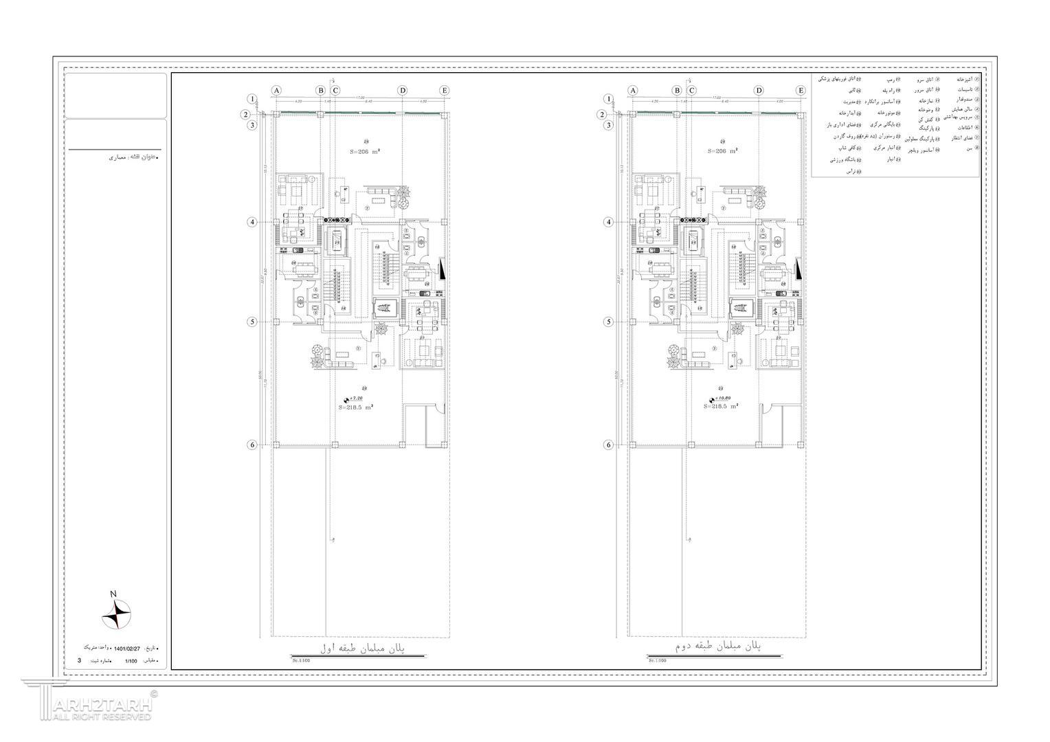
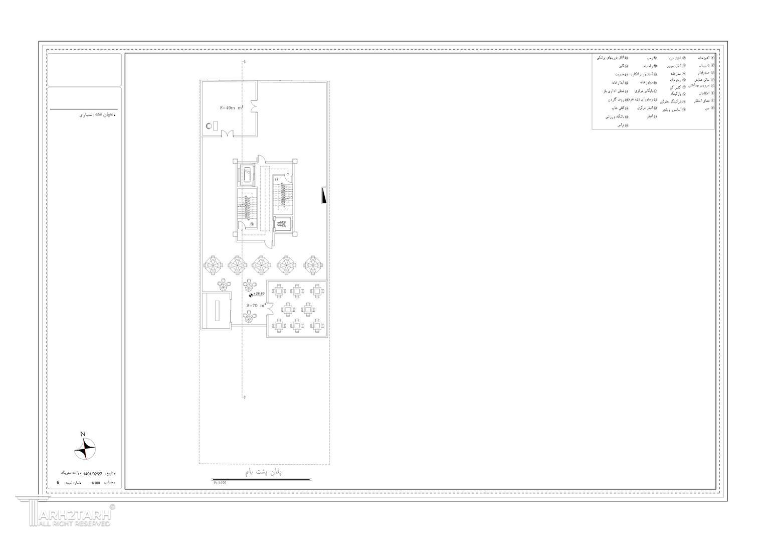
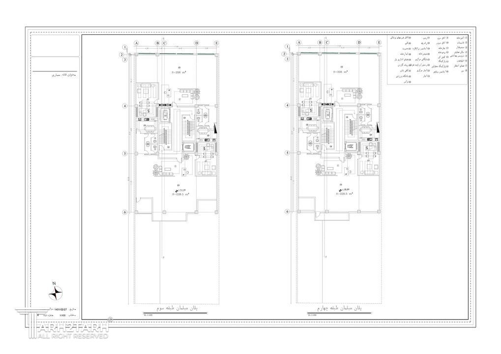
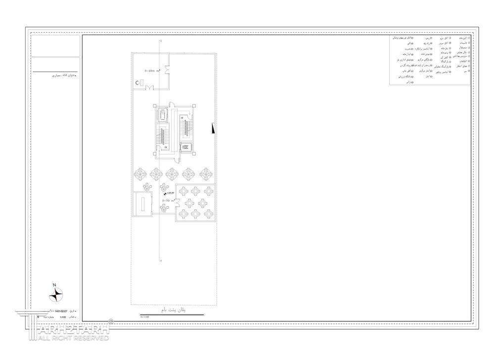
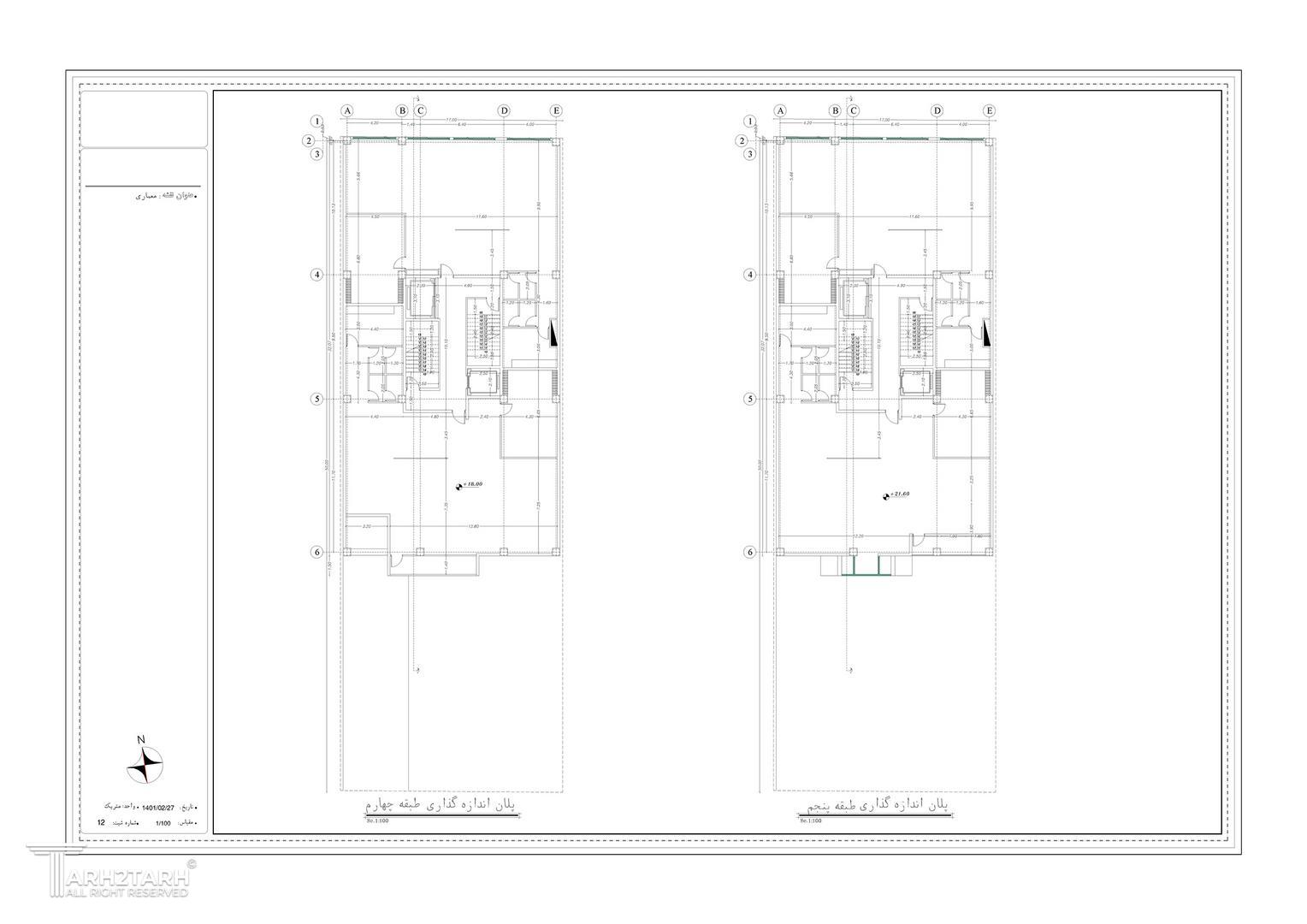
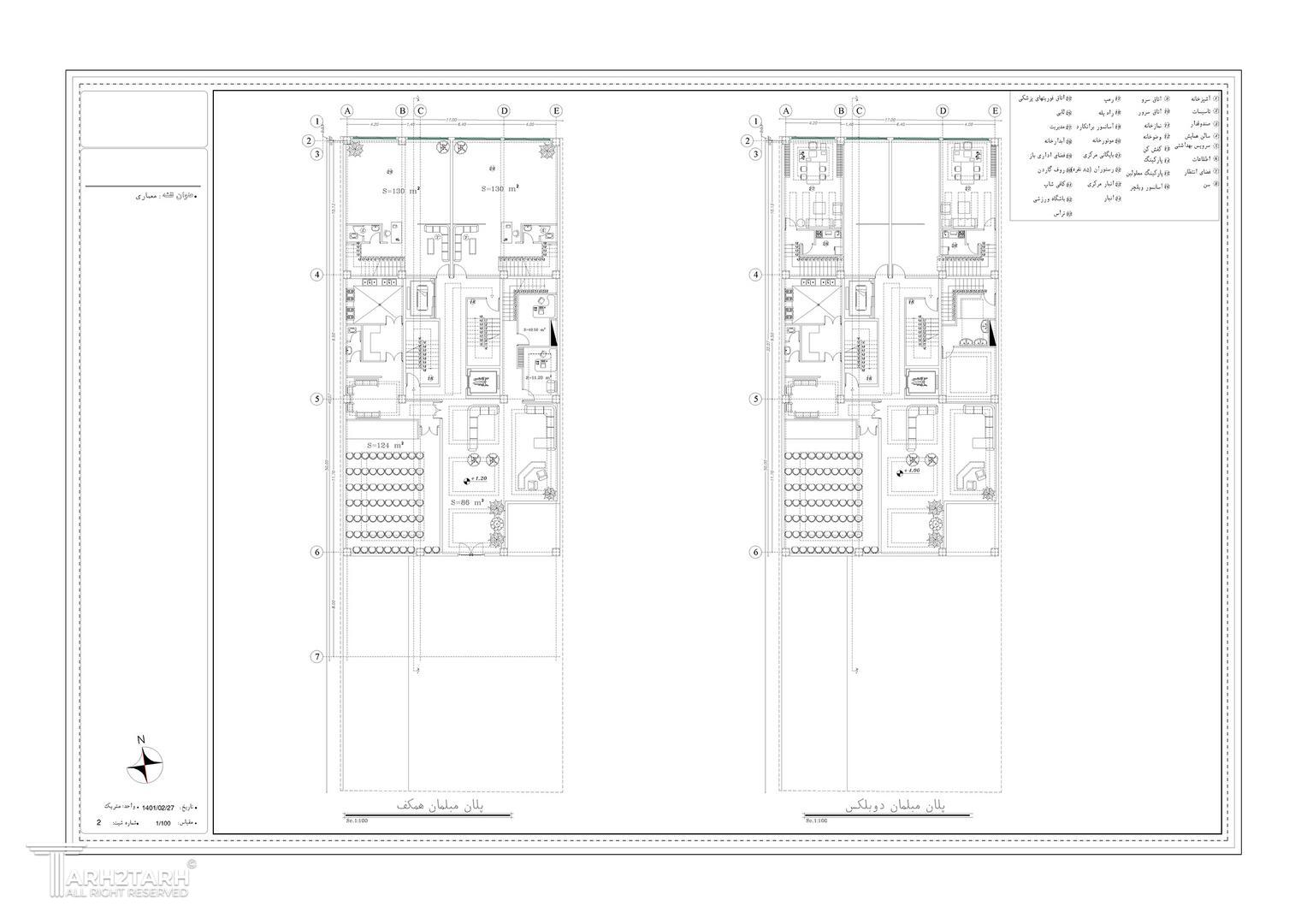
طراحی پلان (نقشه معماری) فاز 1
طراحی نما

موقعیت مکانی پروژه

پیشنهاد و بازخورد