مسابقه طراحی ساختمان مسکونی آرسا (مطهری)

0

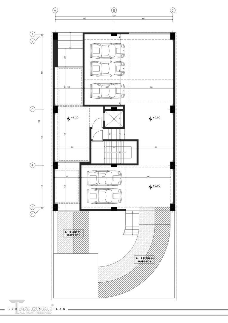
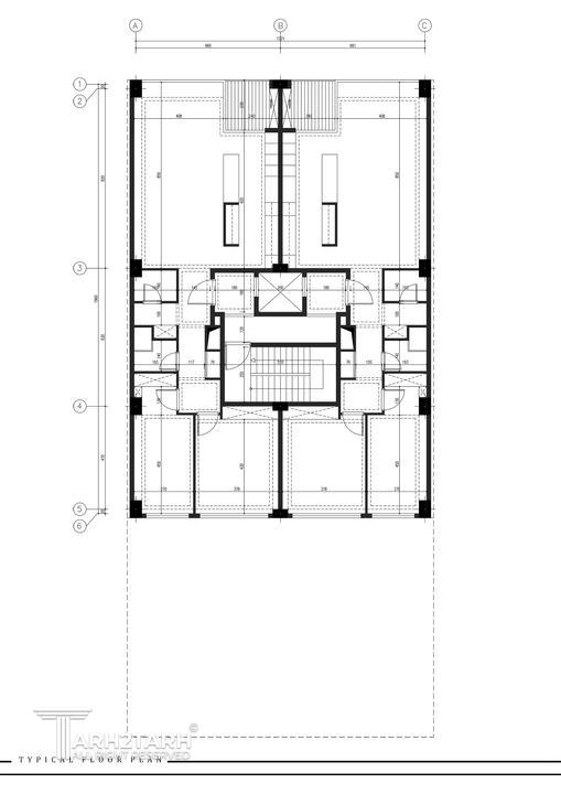
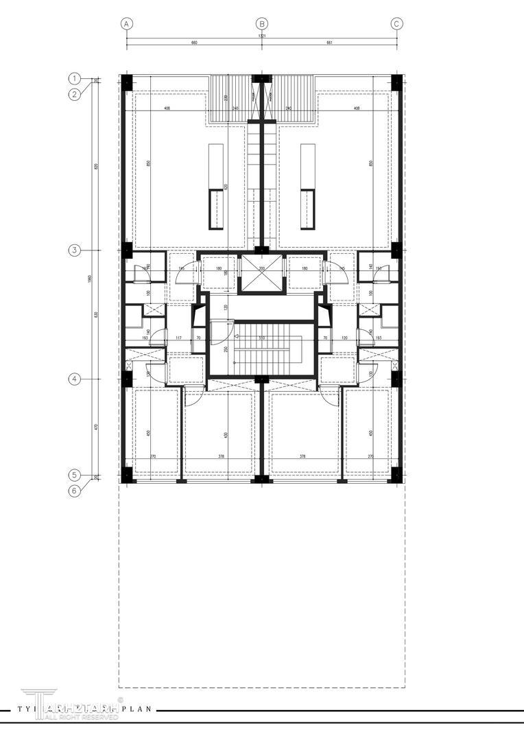
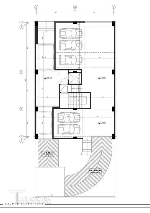
اطلاعات پروژه

امیرعلی ماهوتچیان اصل

نوع مسابقه: طراحی مسکونی
سال انجام پروژه : 1404
نقش: طراح
موقعیت : تهران
متراژ زیربنا : 1930
مساحت زمین : 420
کارفرما : سعیدعبدالرحیم زاده

خدمات ارائه شده توسط طراح

خدمات طراحی و کانسپت
طراحی پلان (نقشه معماری) فاز 1
طراحی نما
طراحی منظر، فضای سبز، لند اسکیپ، روف گاردن و محوطه
طراحی نورپردازی

موقعیت مکانی پروژه

پیشنهاد و بازخورد