مسابقه طراحی نما و داخلی ساختمان مسکونی سبز آرتمیس

0

اطلاعات پروژه

abnaa.design

نوع مسابقه: طراحی مسکونی
سال انجام پروژه : 1404
نقش: طراح
موقعیت : بندر گناوه
متراژ زیربنا : 970
مساحت زمین : 250
کارفرما : حمیده خدری

خدمات ارائه شده توسط طراح

خدمات طراحی و کانسپت
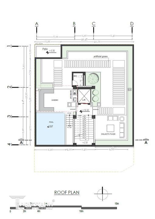
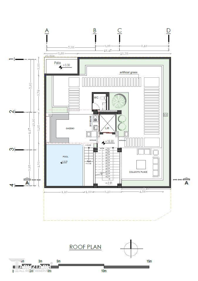
طراحی منظر، فضای سبز، لند اسکیپ، روف گاردن و محوطه
طراحی نورپردازی
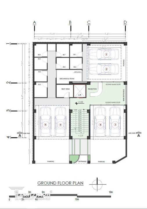
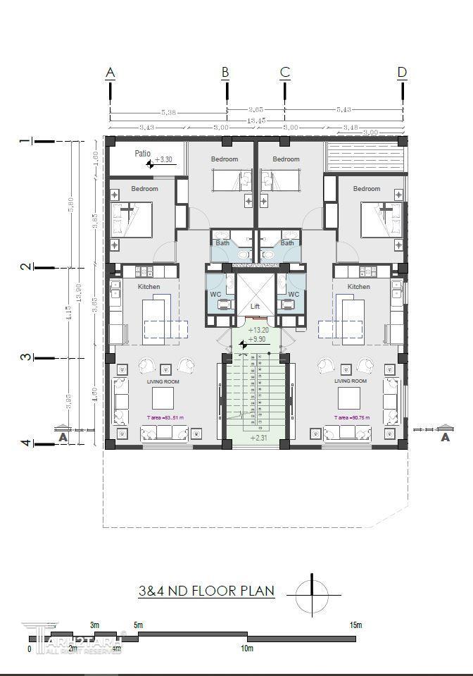
طراحی پلان (نقشه معماری) فاز 1
طراحی نما
طراحی داخلی

موقعیت مکانی پروژه

پیشنهاد و بازخورد