مسابقه طراحی ساختمان اداری ورزشی آوان (با امتیاز دو برابر)

0

اطلاعات پروژه

جلیله‌وند_رئوف سرشت

نوع مسابقه: طراحی تجاری/ اداری
سال انجام پروژه : 1403
نقش: طراح
موقعیت : تهران
متراژ زیربنا : 6000
مساحت زمین : 838
کارفرما : سید حسین حسینی نژاد

خدمات ارائه شده توسط طراح

خدمات طراحی و کانسپت
طراحی نورپردازی
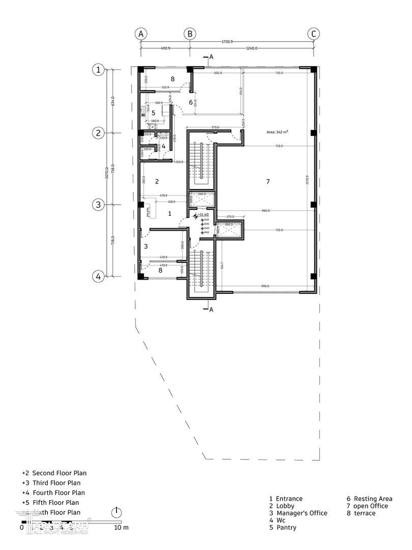
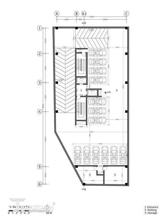
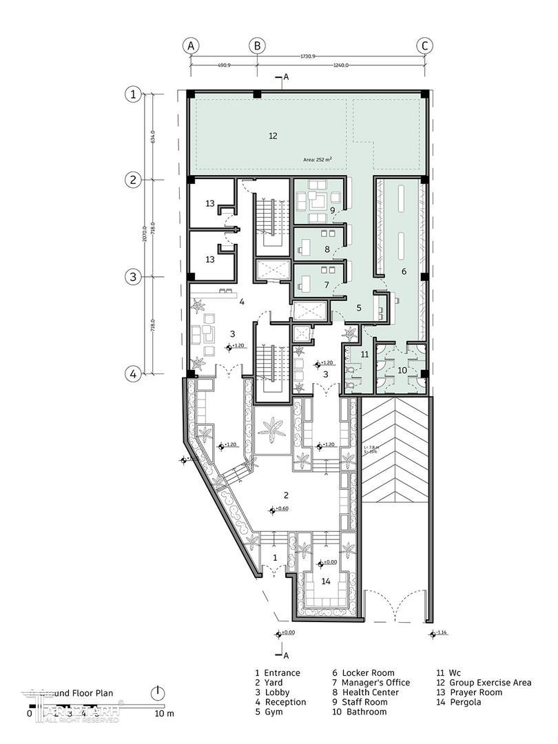
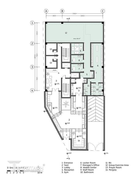
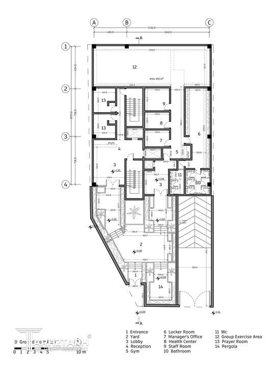
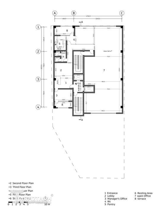
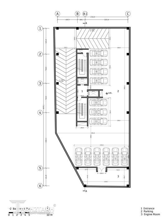
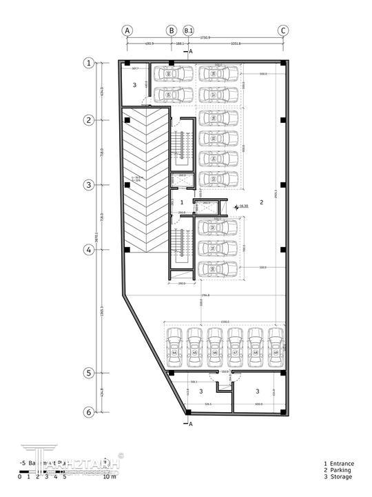
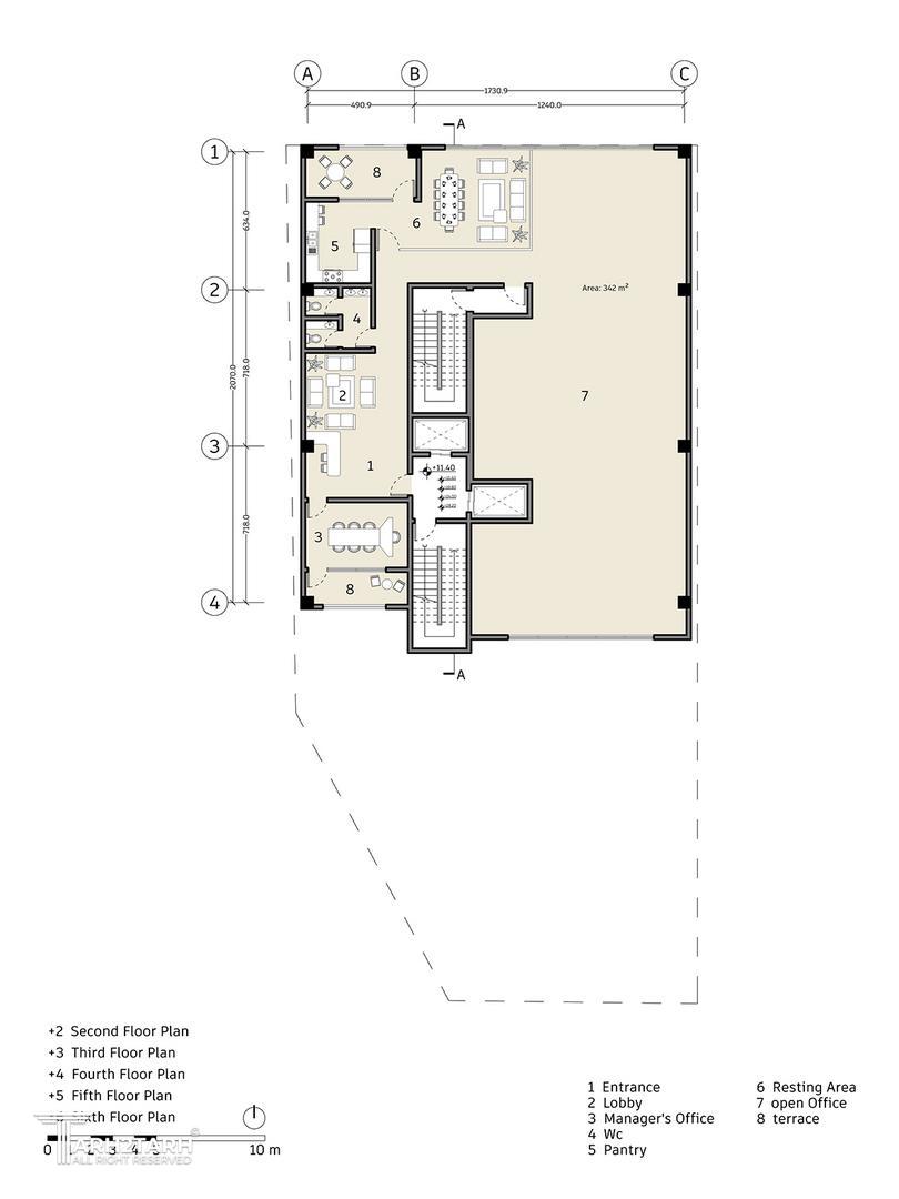
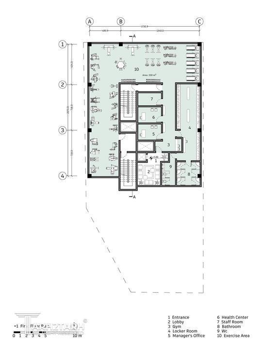
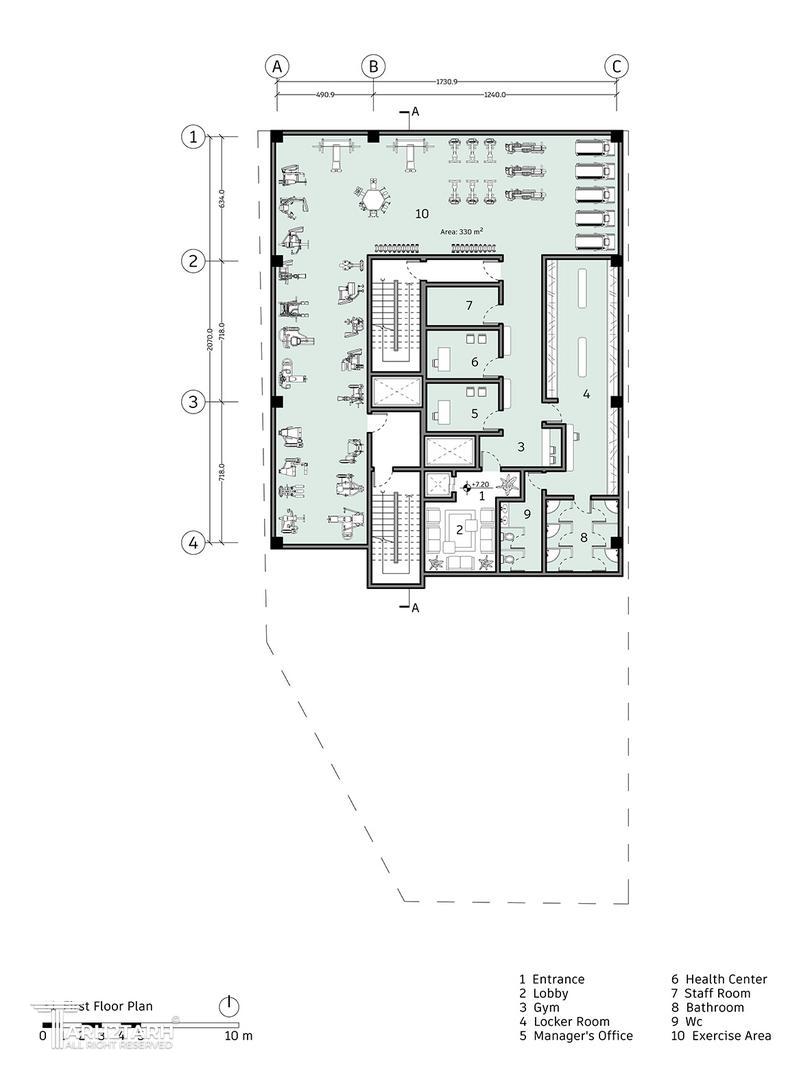
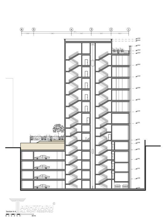
طراحی پلان (نقشه معماری) فاز 1
طراحی نما

موقعیت مکانی پروژه

پیشنهاد و بازخورد