اطلاعات پروژه

نقش : طراح ارشد
کارفرما : جناب آقای رضائی
نوع پروژه : طرح اجرایی
وضعیت : اجرا شده
کاربری : ساختمان اداری ساختمان تجاری
متراژ زمین : 388
متراژ زیربنا : 2898
سبک‌های طراحی: یونانی کلاسیک

خدمات ارائه شده توسط طراح

خدمات طراحی و کانسپت
مدلسازی
طراحی پلان (نقشه معماری) فاز 1
طراحی نما
طراحی نقشه فاز دو معماری
طراحی داخلی
طراحی نورپردازی
طراحی نقشه سازه
طراحی نقشه تأسیسات مکانیکی
طراحی نقشه تأسیسات الکتریکی
طراحی کانسپت (معماری)
خدمات مشاوره و امکانسنجی
مشاوره تحلیل سایت پروژه
مشاوره فاز صفر و امکان‌سنجی پروژه
مشاوره و برنامه‌ریزی تعیین کاربری پروژه
مشاوره و تجزیه و تحلیل فنی و اصلاحات نقشه‌ها برای تطبیق با ضوابط ارگانهای ذیربط
مشاوره طراحی اقلیمی
مشاوره انتخاب مصالح و تکنولوژی‌های نوین ساختمانی
مشاوره‌های مرتبط با مجوزات (ضوابط تراکم، سطح اشغال، پروانه ساختمان، ماده 5، کمیسیون های شهرداری، پایان کار و …)
مشاوره آتش‌نشانی
مشاوره برندسازی و هویت پروژه
مشاوره تهیه طرح تفصیلی
خدمات فنی و مهندسی
اخذ تاییدیه نقشه پلان
اخذ تاییدیه نما
تهیه نقشه فاز دو شهرداری
تهیه نقشه فاز دو نظام مهندسی
تهیه طرح توجیهی و امکانسنجی(جهت ارائه به کمیسیون ماده 5 و ...)
رندرینگ و خدمات فنی
مدل سازی
انجام تغییرات نقشه معماری
ارائه برگه تعهد تهیه نقشه سازه
ارائه برگه تعهد تهیه نقشه تاسیسات مکانیکی
ارائه برگه تعهد تهیه نقشه تاسیسات الکتریکی
ارائه گزارش مکانیک خاک
تهیه نقشه معماری فاز دو جهت ارائه به سازمان نظام مهندسی
تهیه نقشه سازه فاز دو جهت ارائه به سازمان نظام مهندسی
تهیه نقشه تاسیسات برقی فاز دو جهت ارائه به سازمان نظام مهندسی
تهیه نقشه تاسیسات مکانیکی فاز دو جهت ارائه به سازمان نظام مهندسی
تهیه نقشه معماری فاز دو اجرایی
تهیه نقشه سازه فاز دو اجرایی
خدمات دیگر
رندرینگ

توضیحات پروژه

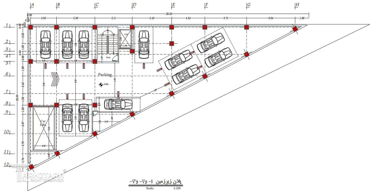
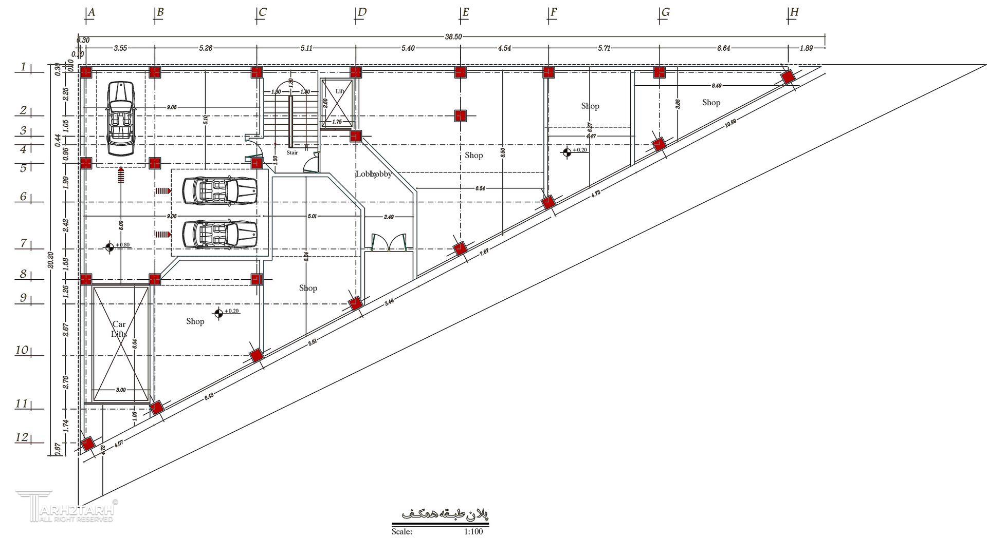
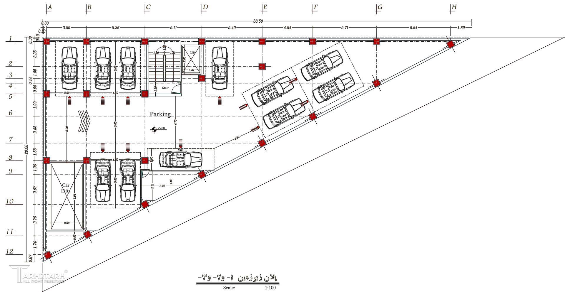
قطعه زمین که از مرکز آن یک بلوار 55 متری گذر کرد و دوتکه شمالی و جنوبی با هنسه ای نا منظم به وجود آمد که سعی بر آن شد ساختمانی منظم و بدون پرتی طراحی شود.

موقعیت مکانی پروژه

نظرات
پیشنهاد و بازخورد