اطلاعات پروژه

نقش : طراح ارشد
کارفرما : جناب آقای رضائی
نوع پروژه : طرح اجرایی
وضعیت : اجرا شده
کاربری : ساختمان اداری ساختمان تجاری
متراژ زمین : 1171
متراژ زیربنا : 6400
سبک‌های طراحی: یونانی کلاسیک

خدمات ارائه شده توسط طراح

خدمات طراحی و کانسپت
مدل‌سازی سه‌بعدی معماری
طراحی نقشه سازه فولادی
طراحی نقشه تأسیسات مکانیکی
طراحی نقشه تأسیسات الکتریکی
طراحی کانسپت (معماری)
طراحی نقشه فاز دو معماری
طراحی پلان (نقشه معماری) فاز 1
طراحی نما
طراحی داخلی
خدمات مشاوره و امکانسنجی
مشاوره تحلیل سایت پروژه
مشاوره فاز صفر و امکان‌سنجی پروژه
مشاوره و برنامه‌ریزی تعیین کاربری پروژه
مشاوره و تجزیه و تحلیل فنی و اصلاحات نقشه‌ها برای تطبیق با ضوابط ارگانهای ذیربط
مشاوره طراحی اقلیمی
مشاوره انتخاب مصالح و تکنولوژی‌های نوین ساختمانی
مشاوره آتش‌نشانی
مشاوره تهیه طرح تفصیلی
خدمات فنی و مهندسی
اخذ تاییدیه نقشه پلان
تهیه نقشه فاز دو شهرداری
تهیه نقشه فاز دو نظام مهندسی
تهیه طرح توجیهی و امکانسنجی(جهت ارائه به کمیسیون ماده 5 و ...)
رندرینگ و خدمات فنی
مدل سازی
انجام تغییرات نقشه معماری
ارائه برگه تعهد تهیه نقشه سازه
ارائه برگه تعهد تهیه نقشه تاسیسات مکانیکی
ارائه برگه تعهد تهیه نقشه تاسیسات الکتریکی
ارائه گزارش مکانیک خاک
کنترل و اصلاح نقشه‌های معماری، سازه و ...
تهیه نقشه معماری فاز دو جهت ارائه به سازمان نظام مهندسی
تهیه نقشه سازه فاز دو جهت ارائه به سازمان نظام مهندسی
تهیه نقشه تاسیسات برقی فاز دو جهت ارائه به سازمان نظام مهندسی
تهیه نقشه تاسیسات مکانیکی فاز دو جهت ارائه به سازمان نظام مهندسی
تهیه نقشه معماری فاز دو اجرایی
تهیه نقشه سازه فاز دو اجرایی
تهیه نقشه تاسیسات مکانیکی فاز دو اجرایی
تهیه نقشه تاسیسات برقی فاز دو اجرایی
اخذ پروانه (جواز) تخریب و نوسازی شهرداری
تهیه نقشه‌های اجرایی پروژه برای دریافت مجوزهای لازم (شهرداری، نظام مهندسی و …)
خدمات دیگر
رندرینگ

توضیحات پروژه

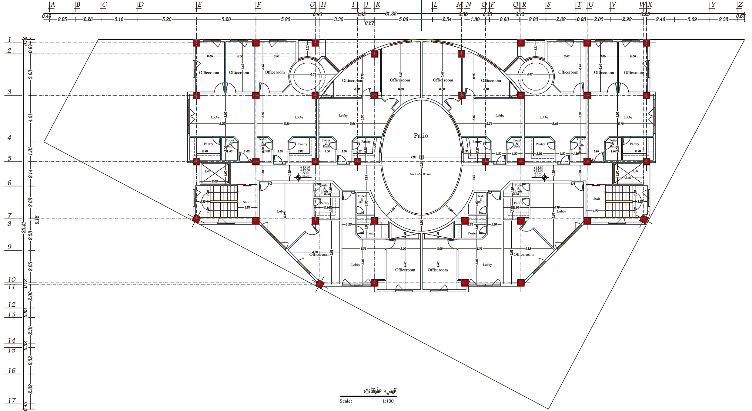
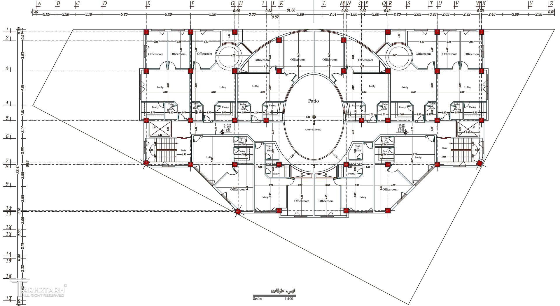
قطعه زمین که از مرکز آن یک بلوار 55 متری گذر کرد و دوتکه شمالی و جنوبی با هنسه ای نا منظم به وجود آمد که سعی بر آن شد ساختمانی منظم و بدون پرتی طراحی شود.

موقعیت مکانی پروژه

نظرات
پیشنهاد و بازخورد