نوشهر
1400
0

اطلاعات پروژه

نقش : طراح ارشد
نوع پروژه : طرح اجرایی
وضعیت : اجرا نشده
کاربری : ویلا
متراژ زمین : 250
متراژ زیربنا : 340
سبک‌های طراحی: مدرن

خدمات ارائه شده توسط طراح

خدمات طراحی و کانسپت
طراحی منظر، فضای سبز، لند اسکیپ، روف گاردن و محوطه
طراحی کانسپت (معماری)
طراحی پلان (نقشه معماری) فاز 1
طراحی نما
خدمات مشاوره و امکانسنجی
مشاوره تحلیل سایت پروژه
مشاوره فاز صفر و امکان‌سنجی پروژه
مشاوره انتخاب مصالح و تکنولوژی‌های نوین ساختمانی
خدمات دیگر
رندرینگ

توضیحات پروژه

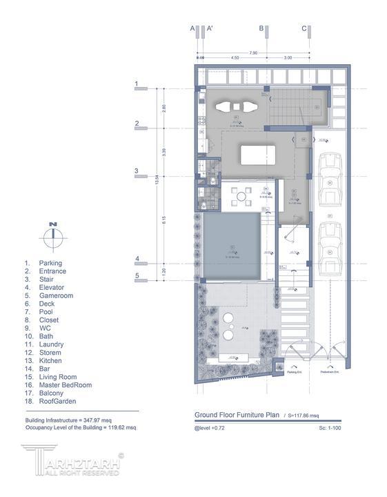
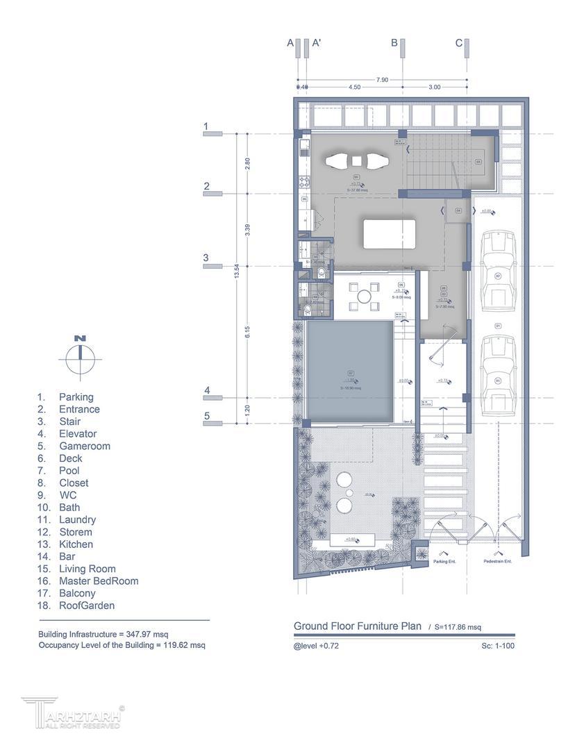
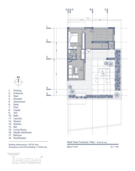
پروژه ویلای آبی در زمینی به مساحت 250 مترمربع در شهرکی در اطراف نوشهر تعریف شده است که تنها از ضلع جنوب به گذر است و جداره های دیگر همسایگی است ، به طوری که در شهرک حدود ساخت هر زمین می تواند به 90 درصد هم برسد.

موقعیت مکانی پروژه

نظرات
پیشنهاد و بازخورد