استودیو معماری نو موفق به کسب جایزه بینالمللی A DESIGN برای طراحی رقابت دروازه ورودی چابهار در پلتفرم طرح تو طرح شد.
ورود | ثبت نام
Fahime-Mohammadi-LowQ-40.jpg
Fahime-Mohammadi-LowQ-41.jpg
Fahime-Mohammadi-LowQ-42.jpg
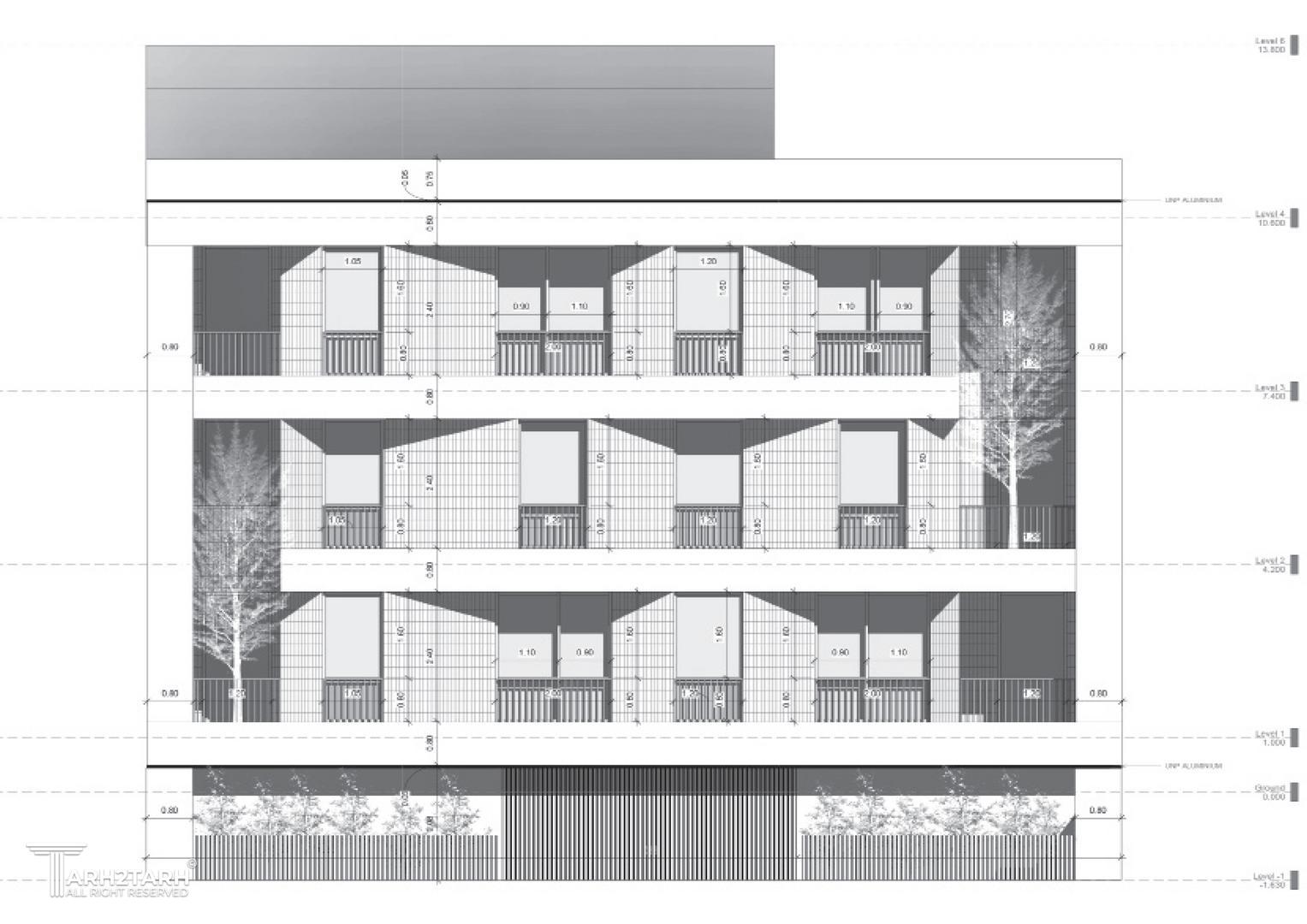
Fahime-Mohammadi-LowQ-43.jpg
نظرات