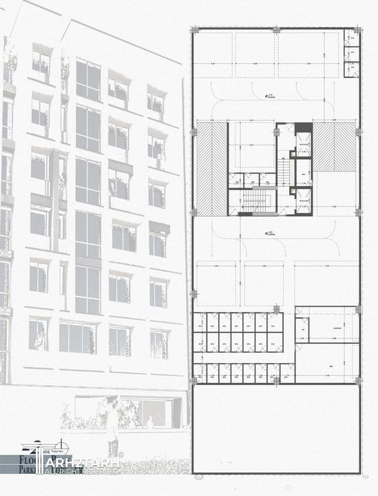
نفر دوم مسابقه طراحی ساختمان مسکونی بلانش (سعادت آباد)

0

اطلاعات پروژه

توسعه پایدار هزاره سوم

نوع مسابقه: طراحی مسکونی
سال انجام پروژه : 1404
نقش: طراح
موقعیت : تهران
متراژ زیربنا : 5500
مساحت زمین : 1000
کارفرما : پیام پالیزیان

خدمات ارائه شده توسط طراح

خدمات طراحی و کانسپت
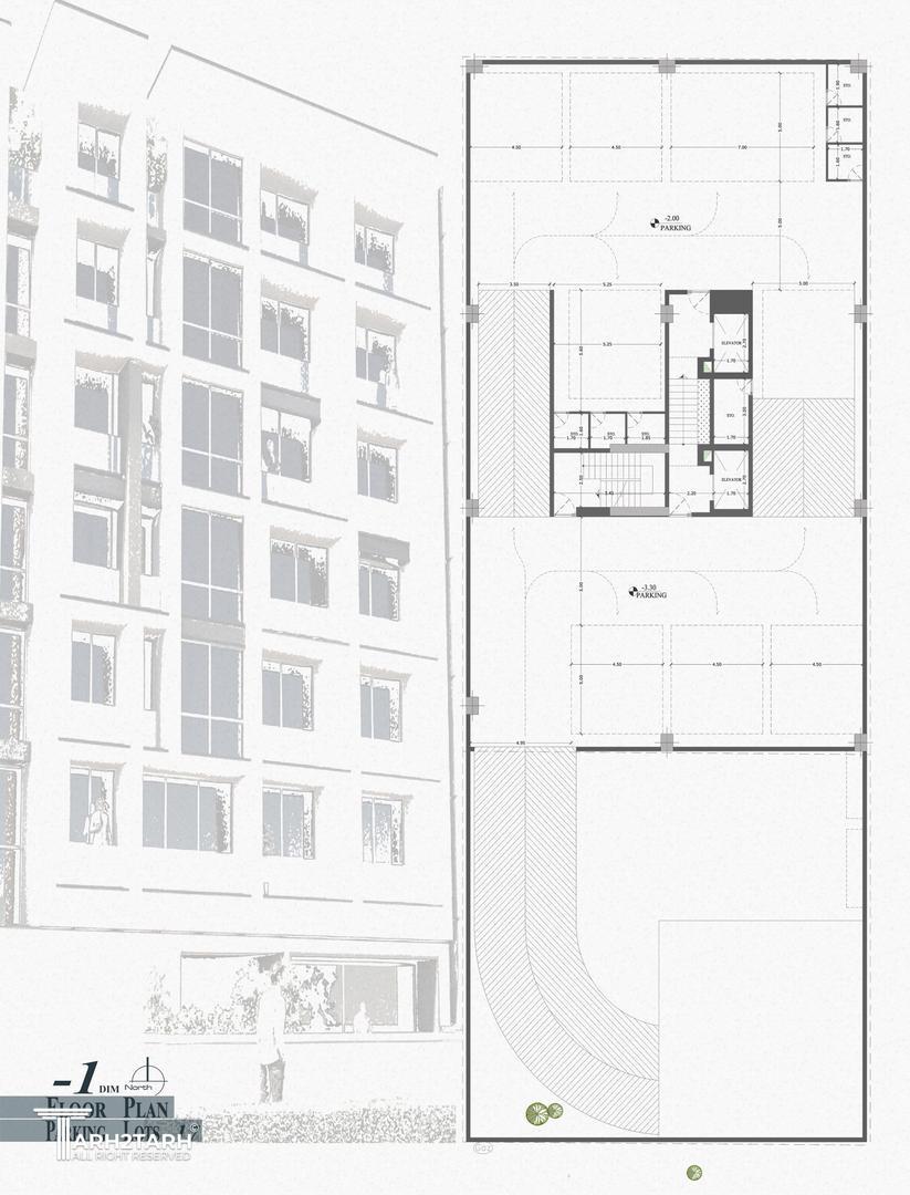
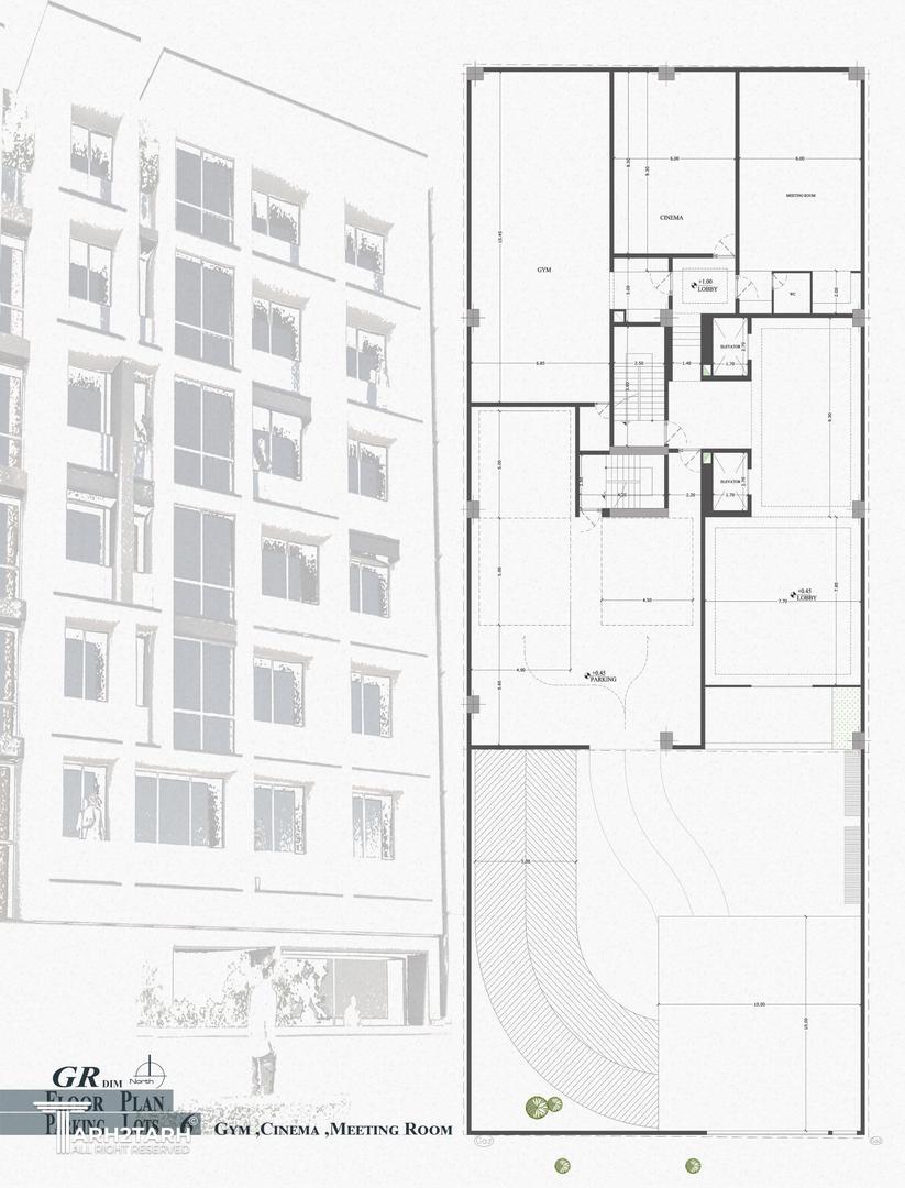
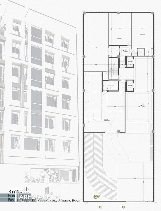
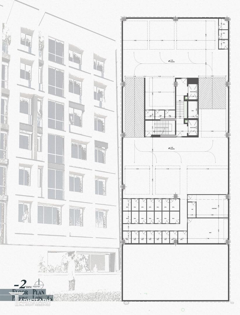
طراحی پلان (نقشه معماری) فاز 1
طراحی نما
طراحی منظر، فضای سبز، لند اسکیپ، روف گاردن و محوطه
طراحی نورپردازی

موقعیت مکانی پروژه

پیشنهاد و بازخورد