مسابقه طراحی پلان امیرکبیر

0

اطلاعات پروژه

بهاره نیازی

نوع مسابقه: طراحی مسکونی
سال انجام پروژه : 1399
نقش: طراح
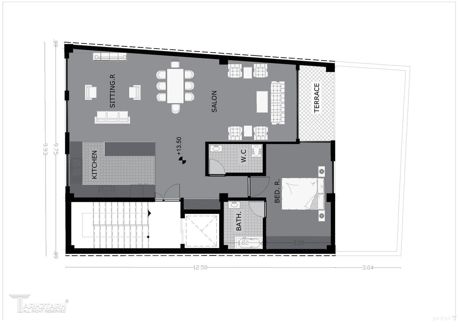
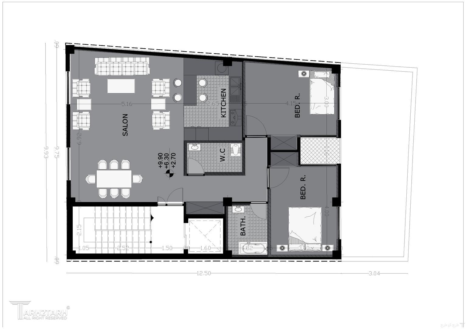
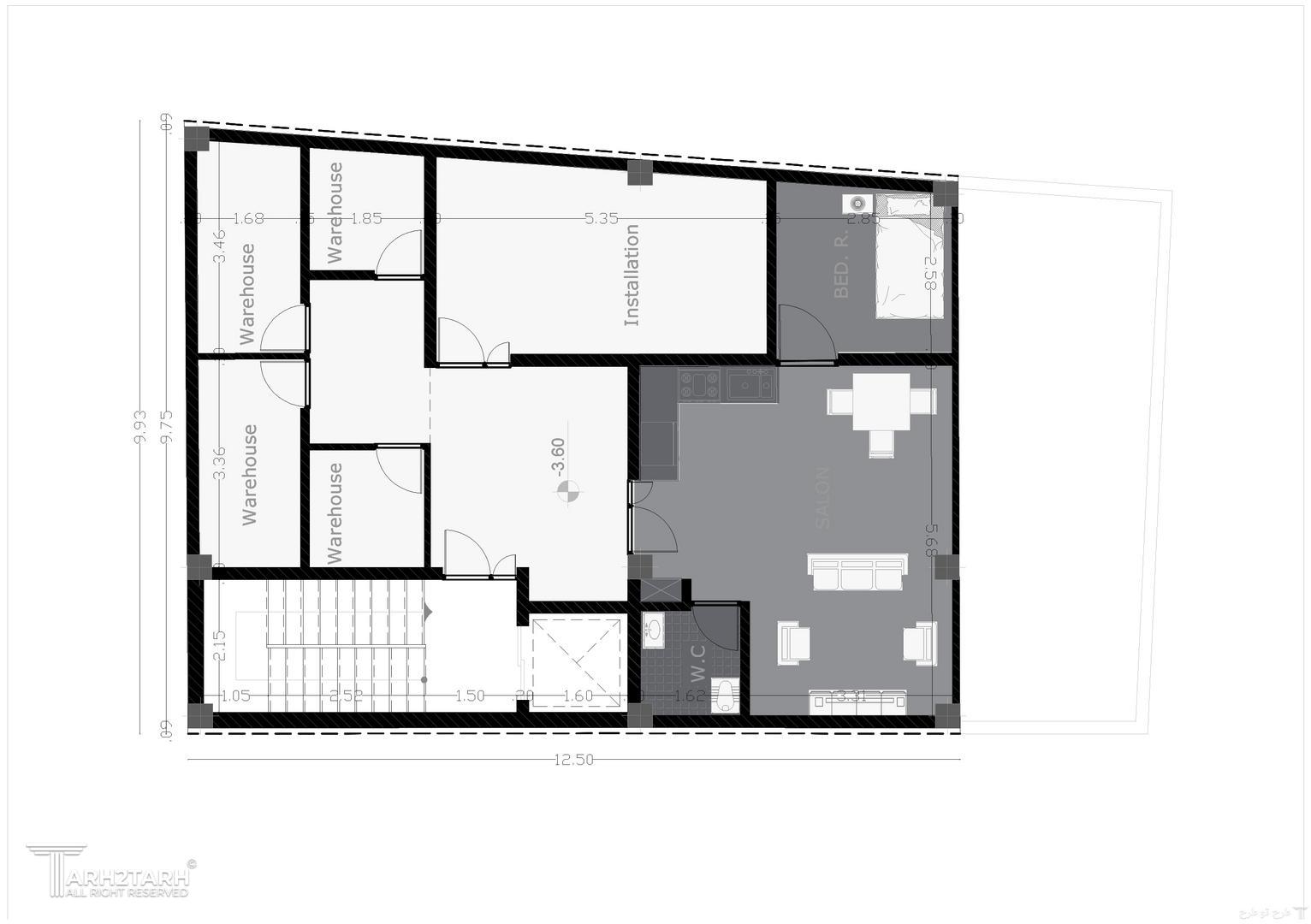
متراژ زیربنا : 720
کارفرما :
پیشنهاد و بازخورد