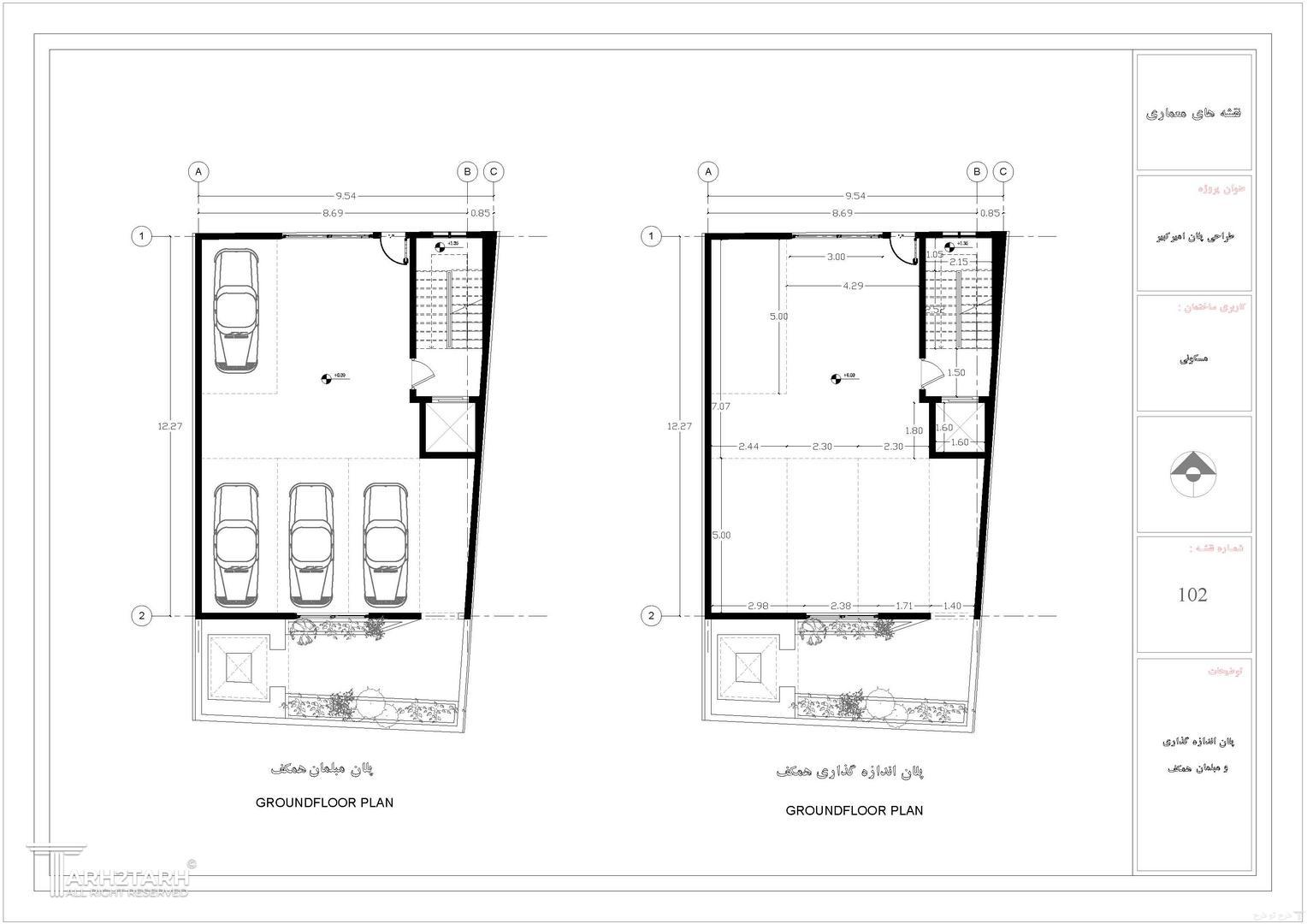
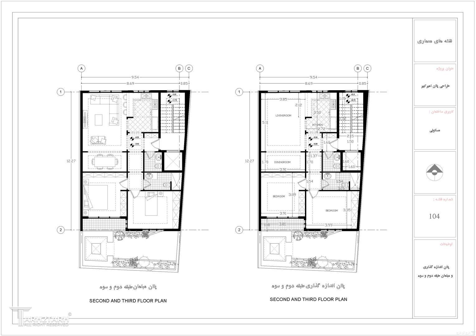
مسابقه طراحی پلان امیرکبیر

0

اطلاعات پروژه

نرگس صمدی

نوع مسابقه: طراحی مسکونی
سال انجام پروژه : 1399
نقش: طراح
متراژ زیربنا : 720
کارفرما :
پیشنهاد و بازخورد