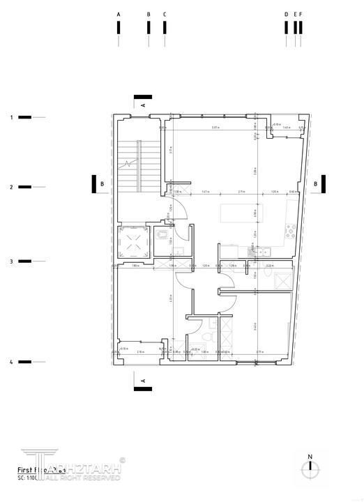
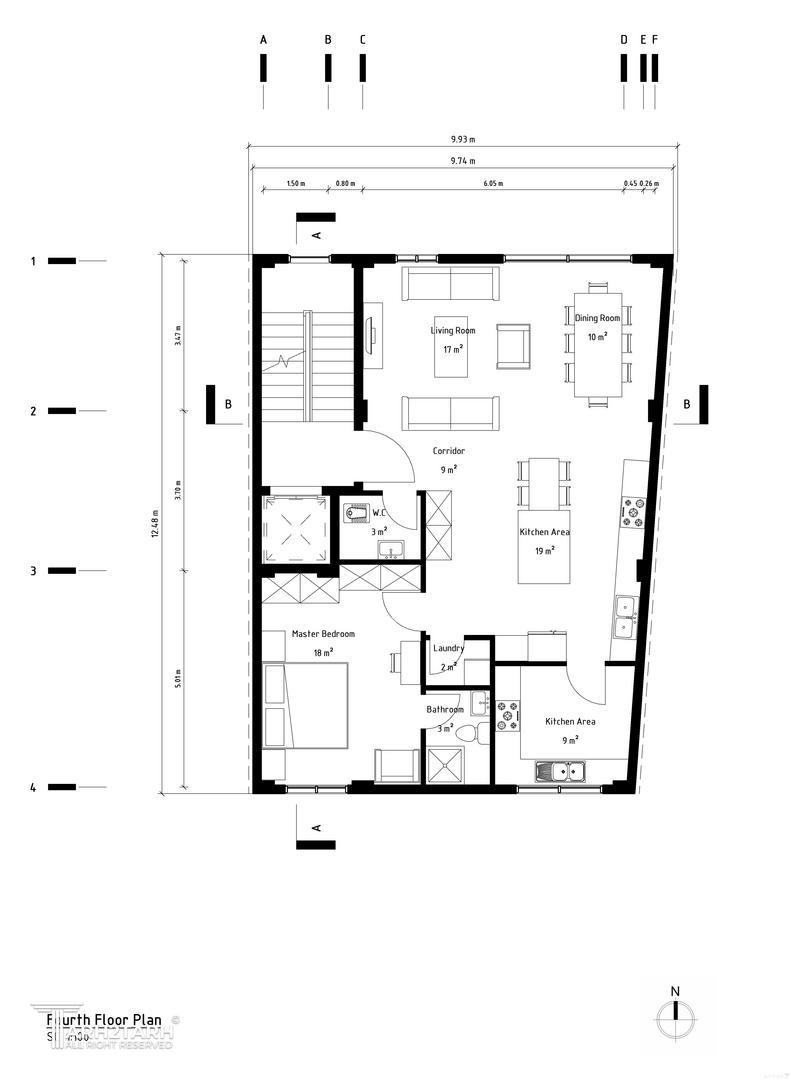
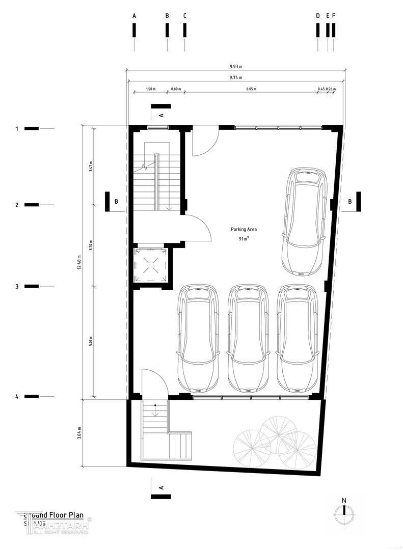
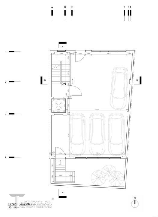
مسابقه طراحی پلان امیرکبیر

0

اطلاعات پروژه

دفتر طراحی سکویا

نوع مسابقه: طراحی مسکونی
سال انجام پروژه : 1399
نقش: طراح
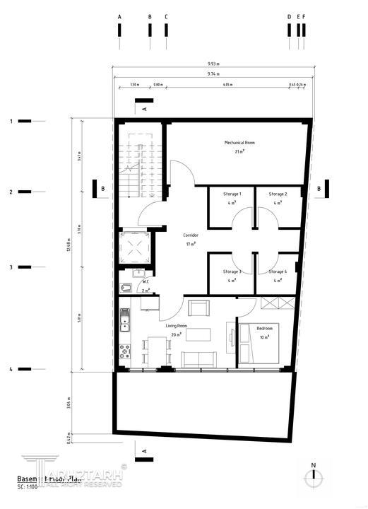
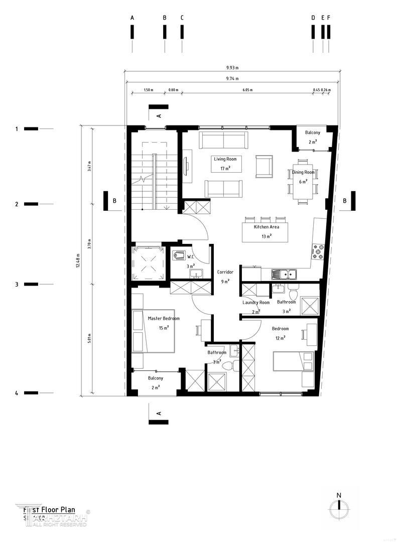
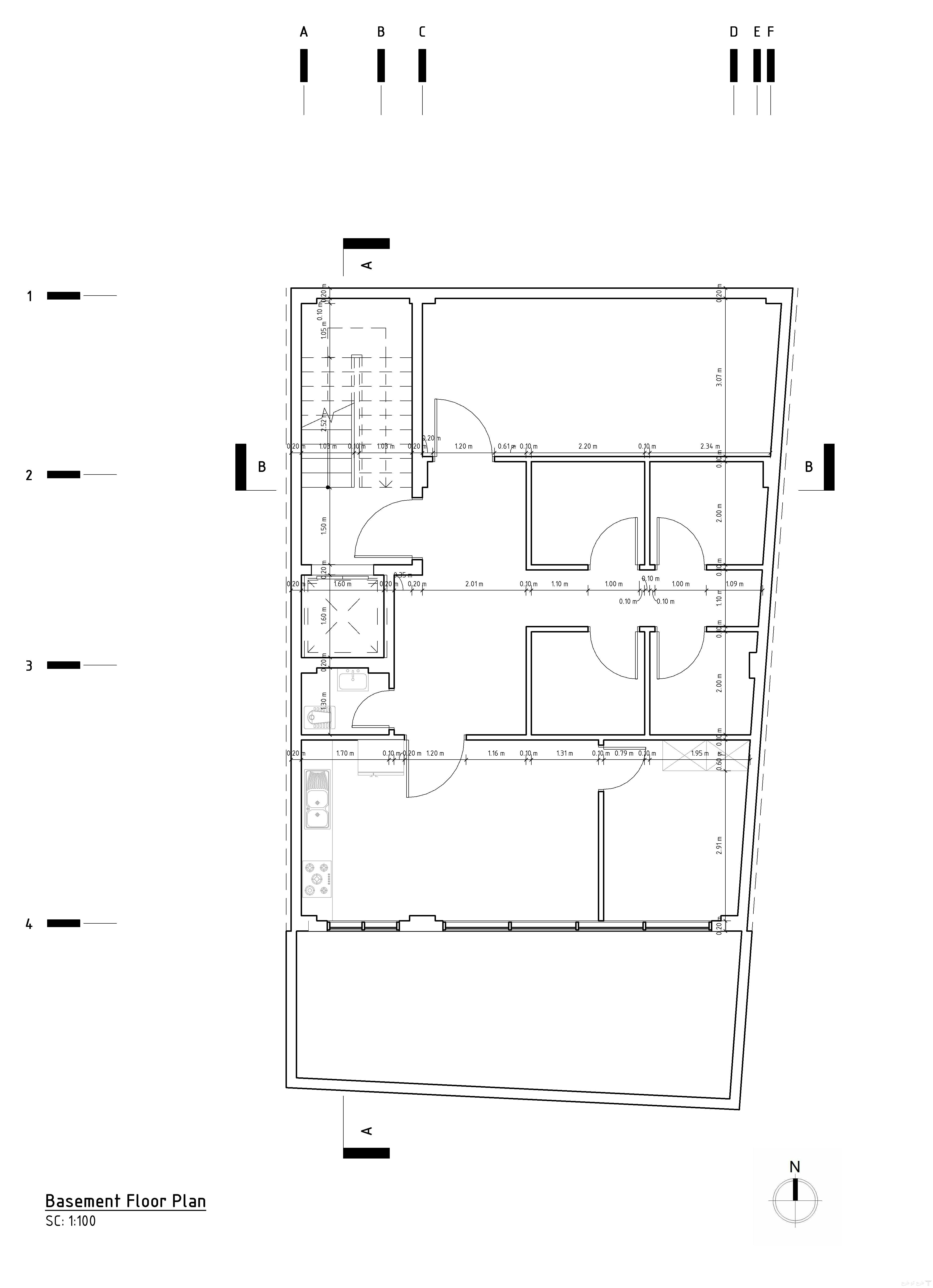
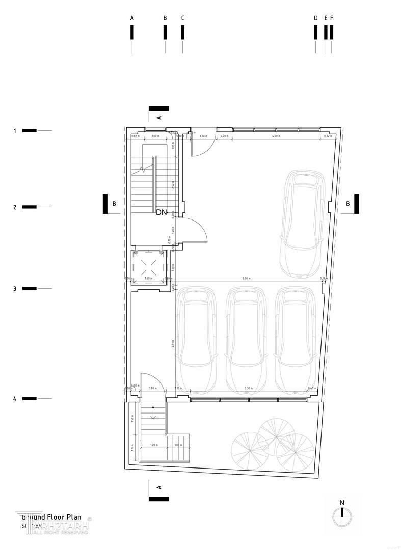
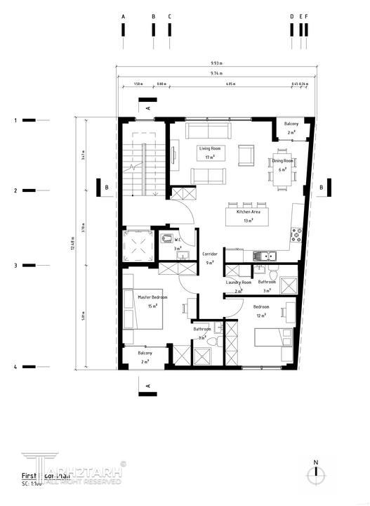
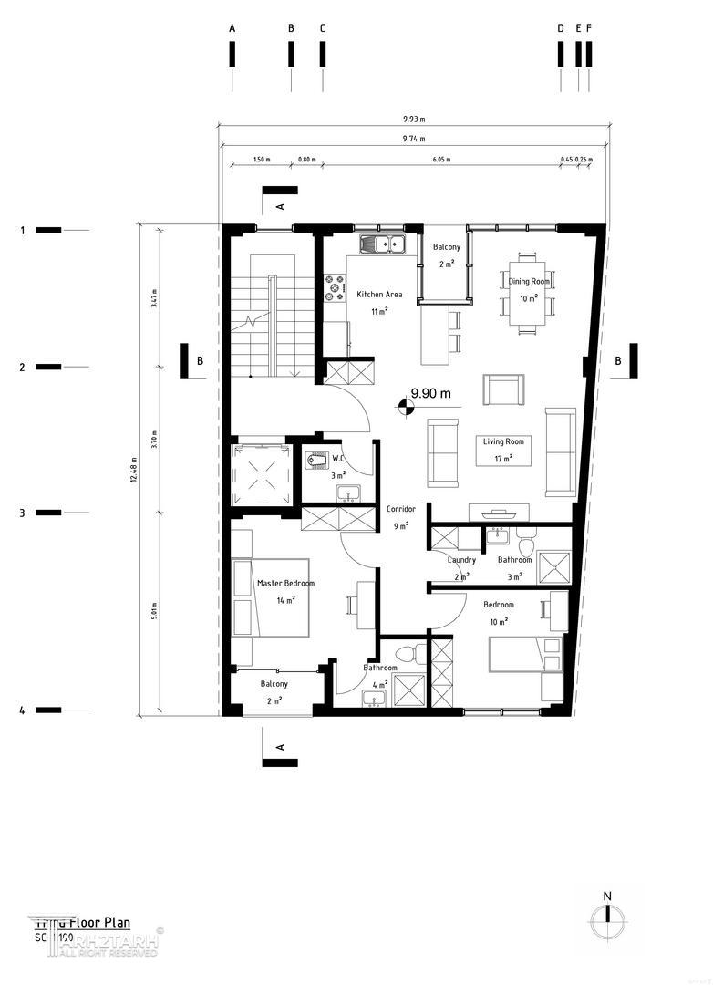
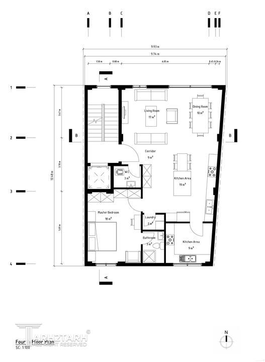
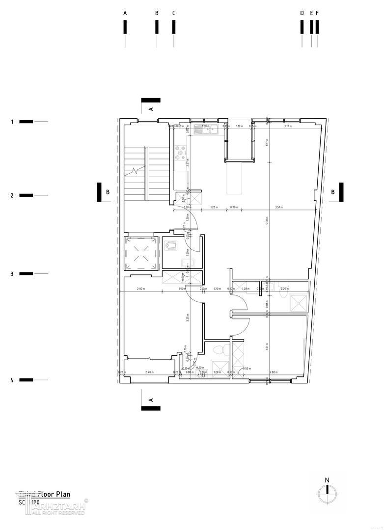
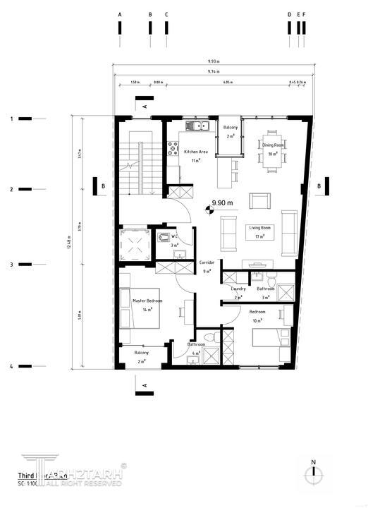
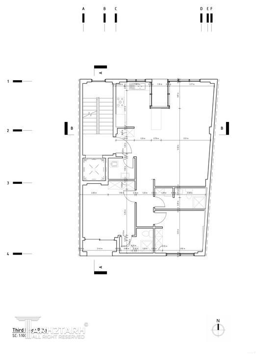
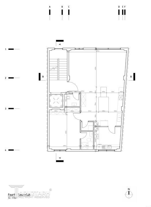
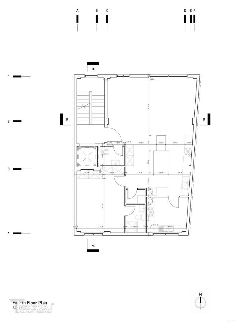
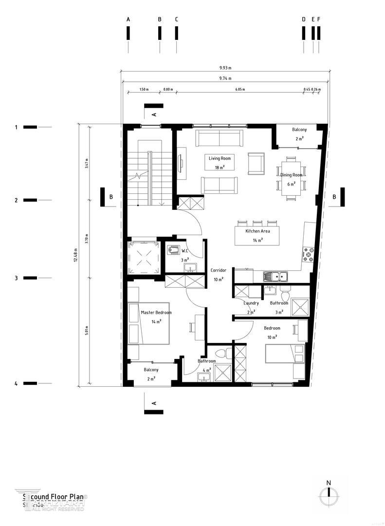
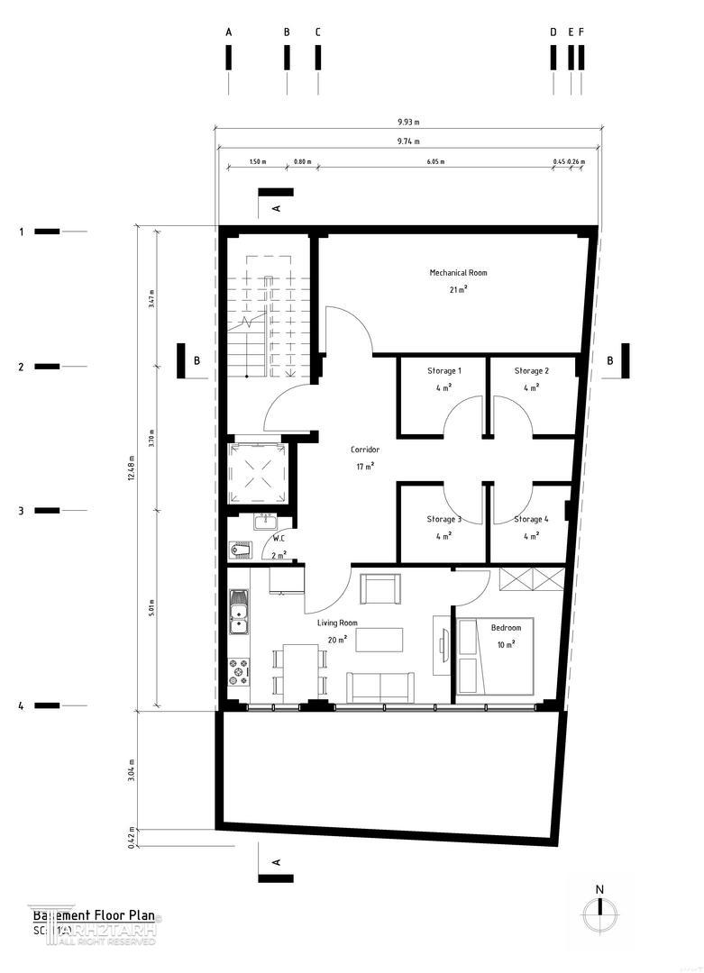
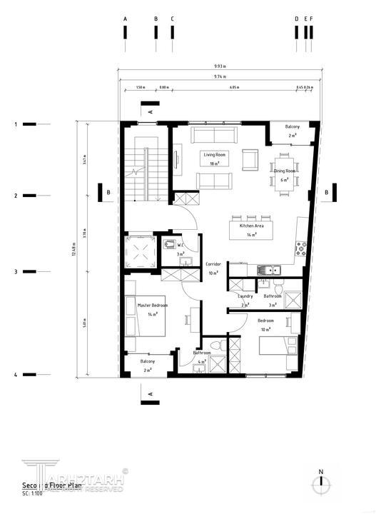
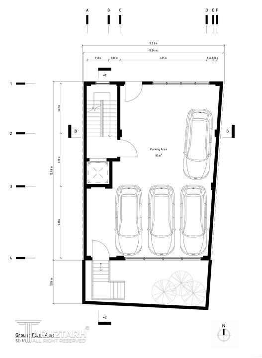
متراژ زیربنا : 720
کارفرما :
پیشنهاد و بازخورد