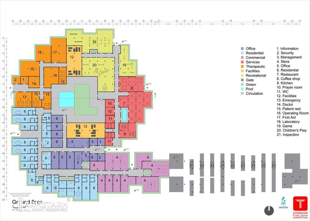
مسابقه طراحی دروازه ورودی منطقه آزاد و مجتمع خدماتی رفاهی چابهار (با امتیاز دو برابر)

0

اطلاعات پروژه

Hadi AkbarAshrafi

نوع مسابقه: طراحی المان
سال انجام پروژه : 1404
نقش: طراح
موقعیت : چابهار
متراژ زیربنا : 31000
مساحت زمین : 670000000
کارفرما : عبدالحکیم آصفی

خدمات ارائه شده توسط طراح

خدمات طراحی و کانسپت
طراحی منظر، فضای سبز، لند اسکیپ، روف گاردن و محوطه
طراحی نورپردازی
طراحی کانسپت (معماری)
طراحی پلان (نقشه معماری) فاز 1
طراحی نما

موقعیت مکانی پروژه

پیشنهاد و بازخورد