مسابقه طراحی پلان و نما و روف گاردن چناران

0

اطلاعات پروژه

اتابک محمدی

نوع مسابقه: طراحی مسکونی
سال انجام پروژه : 1402
نقش: طراح
موقعیت : تهران
متراژ زیربنا : 4400
مساحت زمین : 650
کارفرما : محمدرضا کارگران

خدمات ارائه شده توسط طراح

خدمات طراحی و کانسپت
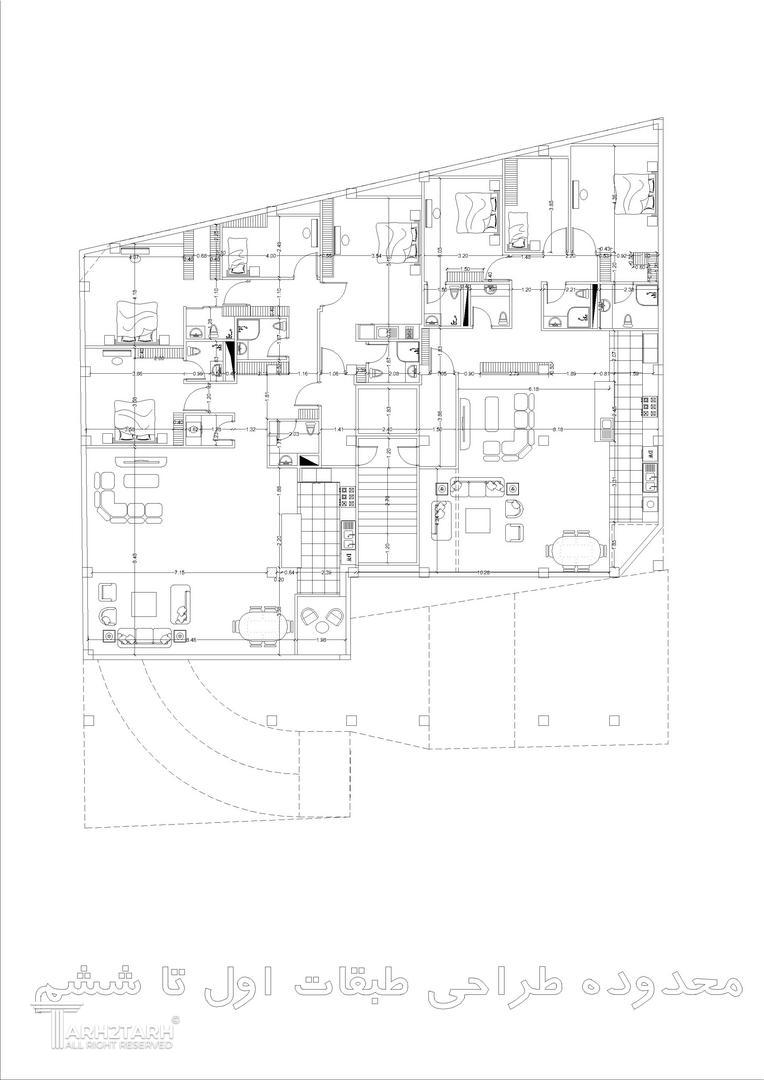
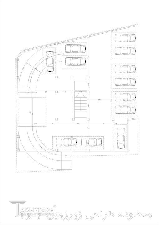
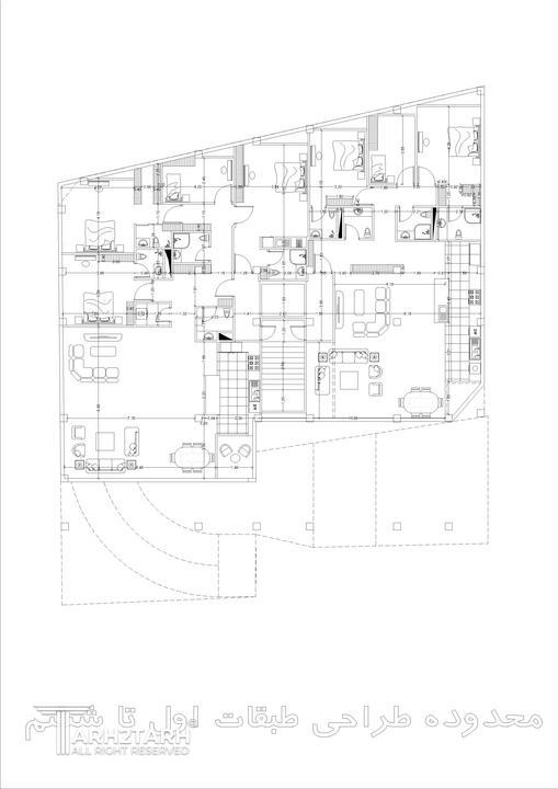
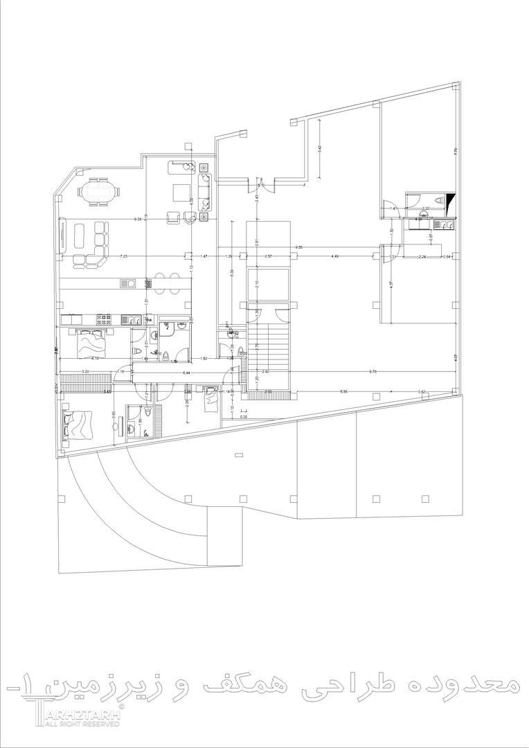
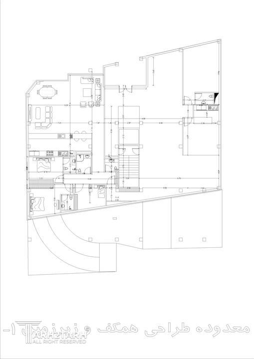
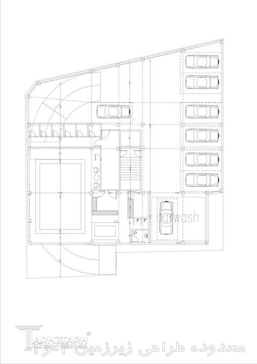
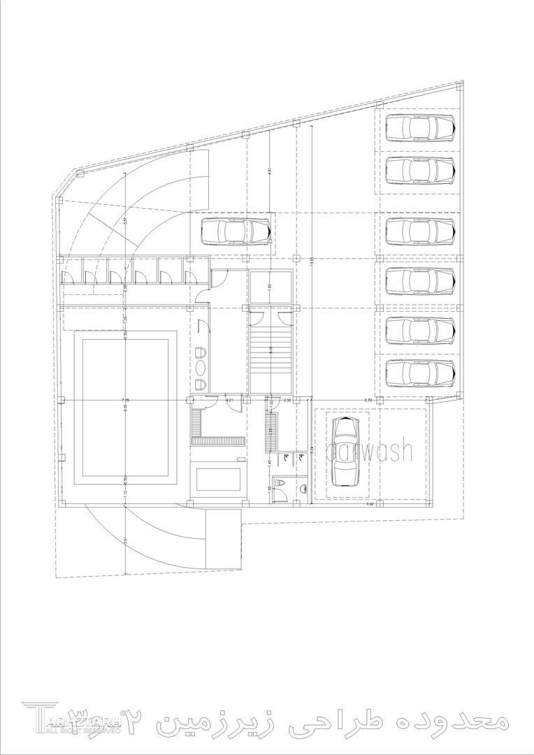
طراحی پلان (نقشه معماری) فاز 1
طراحی نما
طراحی منظر، فضای سبز، لند اسکیپ، روف گاردن و محوطه
طراحی نورپردازی

موقعیت مکانی پروژه

پیشنهاد و بازخورد