نفر دوم مسابقه طراحی ساختمان تجاری اداری مادای (اکباتان)

0

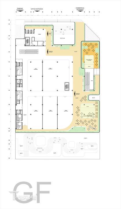
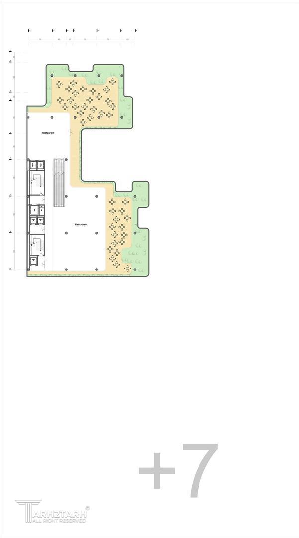
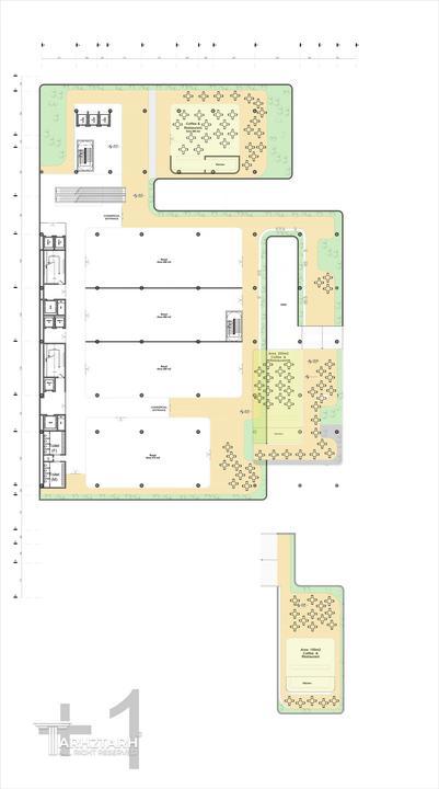
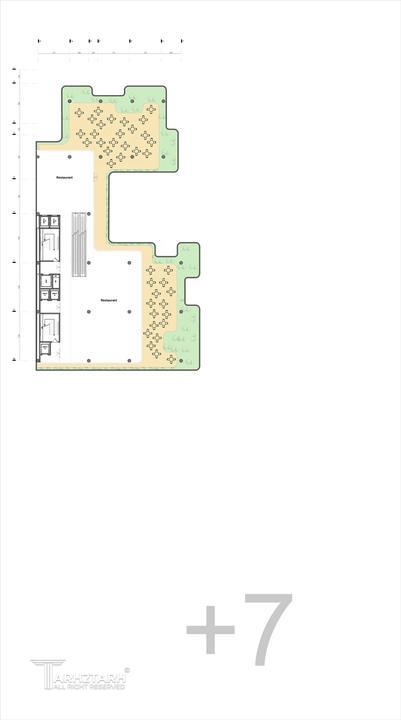
اطلاعات پروژه

نوآوران

نوع مسابقه: طراحی تجاری/ اداری
سال انجام پروژه : 1404
نقش: طراح
موقعیت : تهران
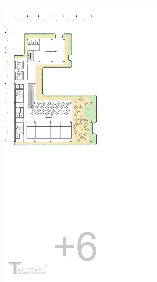
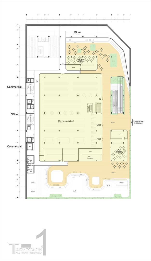
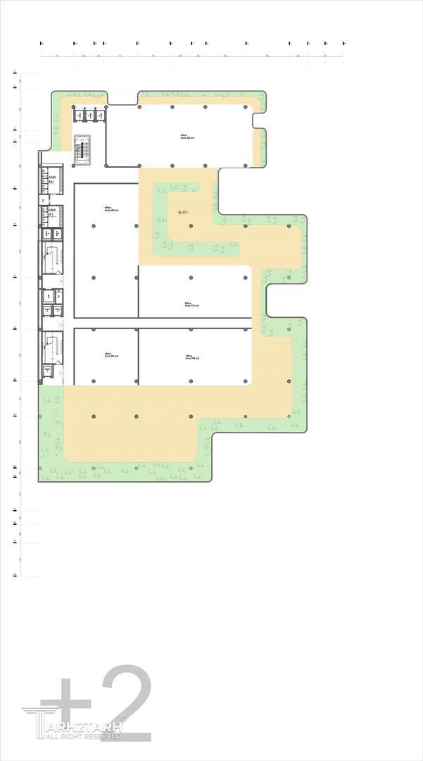
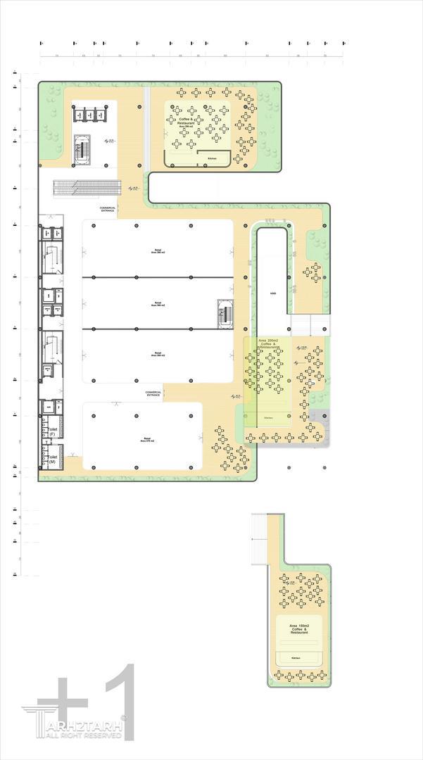
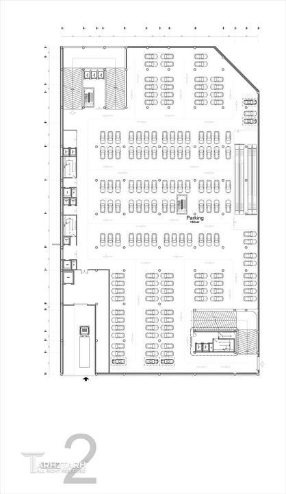
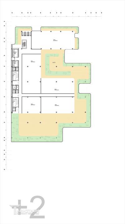
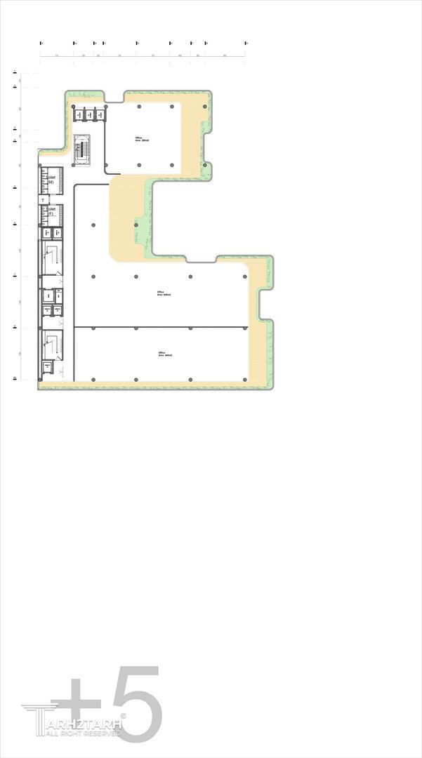
متراژ زیربنا : 58100
مساحت زمین : 7020
کارفرما : حامد شیدا

موقعیت مکانی پروژه

پیشنهاد و بازخورد