اطلاعات پروژه

نقش : طراح ارشد
کارفرما : آقای حیدری
نوع پروژه : طرح اجرایی
وضعیت : اجرا شده
کاربری : ساختمان مسکونی
متراژ زمین : 236
متراژ زیربنا : 1300
سبک‌های طراحی: مدرن

خدمات ارائه شده توسط طراح

خدمات طراحی و کانسپت
مدل‌سازی سه‌بعدی معماری
طراحی نورپردازی
طراحی نقشه سازه بتنی
طراحی سازه نگهبان
طراحی نقشه سازه فولادی
طراحی نقشه تأسیسات مکانیکی
طراحی نقشه تأسیسات الکتریکی
طراحی سیستم برق اضطراری و تابلو برق
طراحی سیستم‌های گرمایش، سرمایش، تهویه
طراحی درب
طراحی نقشه فاز دو معماری
طراحی پلان (نقشه معماری) فاز 1
طراحی نما
خدمات مشاوره و امکانسنجی
مشاوره تحلیل سایت پروژه
مشاوره فاز صفر و امکان‌سنجی پروژه
مشاوره و برنامه‌ریزی تعیین کاربری پروژه
مشاوره و تجزیه و تحلیل فنی و اصلاحات نقشه‌ها برای تطبیق با ضوابط ارگانهای ذیربط
مشاوره طراحی اقلیمی
مشاوره در زمینه توسعه پایدار
مشاوره انتخاب مصالح و تکنولوژی‌های نوین ساختمانی
مشاوره مالی و بودجه‌ای
مشاوره آتش‌نشانی
مشاوره و تهیه شناسنامه فنی و ملکی پروژه
تطبیق نقشه‌ها با ضوابط شهرداری
خدمات اجرایی و نظارتی
نظارت عالیه بر اجرا
نظارت بر اجرای معماری (نظام مهندسی)
خدمات فنی و مهندسی
اخذ تاییدیه نقشه پلان
اخذ تاییدیه نما
تهیه آلبوم نمای شهرداری
تهیه نقشه فاز دو شهرداری
تهیه نقشه فاز دو نظام مهندسی
رندرینگ و خدمات فنی
ارائه برگه تعهد تهیه نقشه سازه
ارائه برگه تعهد تهیه نقشه تاسیسات مکانیکی
ارائه برگه تعهد تهیه نقشه تاسیسات الکتریکی
تهیه نقشه معماری فاز دو جهت ارائه به سازمان نظام مهندسی
تهیه نقشه سازه فاز دو جهت ارائه به سازمان نظام مهندسی
تهیه نقشه تاسیسات برقی فاز دو جهت ارائه به سازمان نظام مهندسی
تهیه نقشه تاسیسات مکانیکی فاز دو جهت ارائه به سازمان نظام مهندسی
تهیه نقشه معماری فاز دو اجرایی
تهیه نقشه سازه فاز دو اجرایی
تهیه نقشه تاسیسات مکانیکی فاز دو اجرایی
تهیه نقشه تاسیسات برقی فاز دو اجرایی
تهیه نقشه‌های اجرایی پروژه برای دریافت مجوزهای لازم (شهرداری، نظام مهندسی و …)

توضیحات پروژه

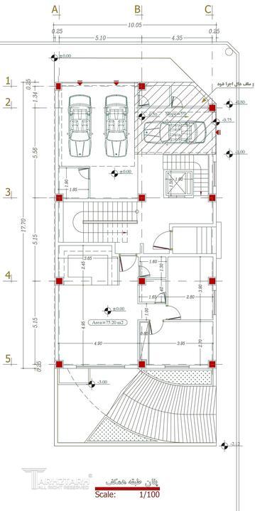
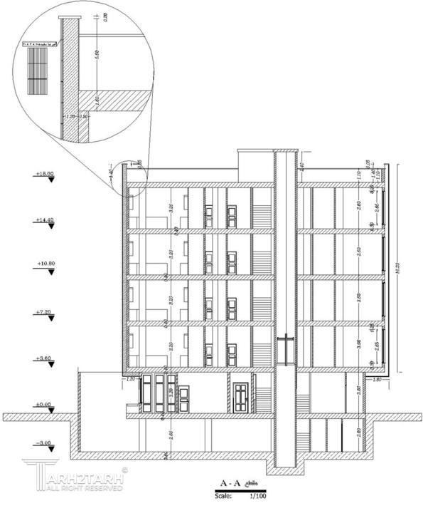
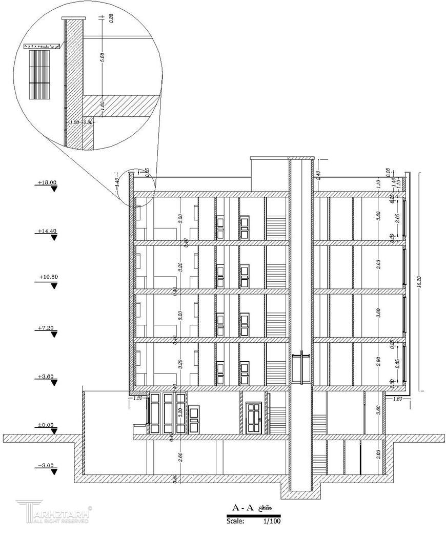
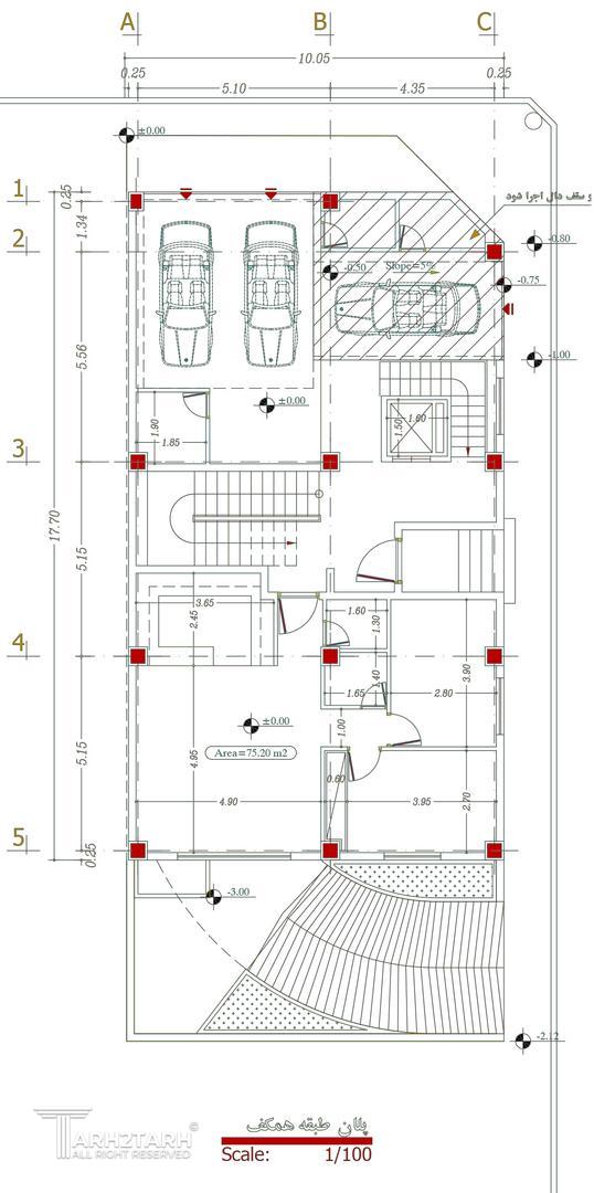
آپارتمان ۴ طبقه روی همکف با زیرزمین پارکینگ؛ هر طبقه ۲ واحد شمالی و جنوبی. نورگیری فراوان از شمال، شرق و جنوب؛ پلان باز با بالکن‌های خطی. نمای مدرن با آجر سفید و شاموتی گرم، ترکیب زیبایی و اصالت. ✨ فضایی روشن، آرام و دلنشین که حس خوب زندگی روزمره را در خود جاری می‌کند

موقعیت مکانی پروژه

نظرات
پیشنهاد و بازخورد