اطلاعات پروژه

نقش : طراح ارشد
کارفرما : آقای ثباتی
نوع پروژه : طرح اجرایی
وضعیت : در حال اجرا
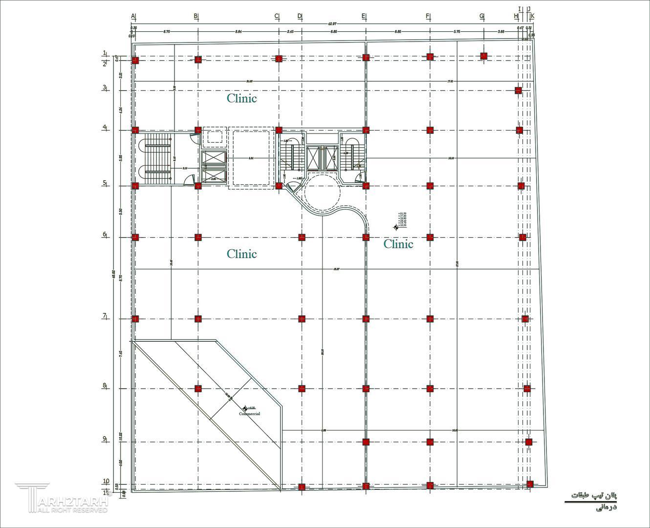
کاربری : کلینیک
متراژ زمین : 1965
متراژ زیربنا : 23121
سبک‌های طراحی: مدرن

خدمات ارائه شده توسط طراح

خدمات طراحی و کانسپت
طراحی پلان (نقشه معماری) فاز 1
طراحی نما
طراحی نقشه فاز دو معماری
طراحی داخلی
دکوراسیون داخلی
طراحی نقشه سازه
طراحی نقشه تأسیسات مکانیکی
طراحی نقشه تأسیسات الکتریکی
خدمات مشاوره و امکانسنجی
مشاوره تحلیل سایت پروژه
مشاوره فاز صفر و امکان‌سنجی پروژه
مشاوره و برنامه‌ریزی تعیین کاربری پروژه
مشاوره و تجزیه و تحلیل فنی و اصلاحات نقشه‌ها برای تطبیق با ضوابط ارگانهای ذیربط
مشاوره طراحی اقلیمی
مشاوره در زمینه توسعه پایدار
مشاوره انتخاب مصالح و تکنولوژی‌های نوین ساختمانی
مشاوره‌های مرتبط با مجوزات (ضوابط تراکم، سطح اشغال، پروانه ساختمان، ماده 5، کمیسیون های شهرداری، پایان کار و …)
مشاوره مالی و بودجه‌ای
مشاوره آتش‌نشانی
مشاوره برندسازی و هویت پروژه
مشاوره تغییر کاربری
مشاوره و تهیه شناسنامه فنی و ملکی پروژه
تطبیق نقشه‌ها با ضوابط شهرداری
خدمات اجرایی و نظارتی
نظارت بر اجرای معماری (نظام مهندسی)
خدمات فنی و مهندسی
اخذ تاییدیه نقشه پلان
اخذ تاییدیه نما
تهیه آلبوم نمای شهرداری
تهیه نقشه‌های اجرایی پروژه برای دریافت مجوزهای لازم (شهرداری، نظام مهندسی و …)
تهیه نقشه فاز دو شهرداری
تهیه نقشه فاز دو نظام مهندسی
تهیه طرح توجیهی و امکانسنجی(جهت ارائه به کمیسیون ماده 5 و ...)
ارائه برگه تعهد تهیه نقشه معماری
رندرینگ و خدمات فنی
مدل سازی
انجام تغییرات نقشه معماری
خدمات دیگر
رندرینگ

توضیحات پروژه

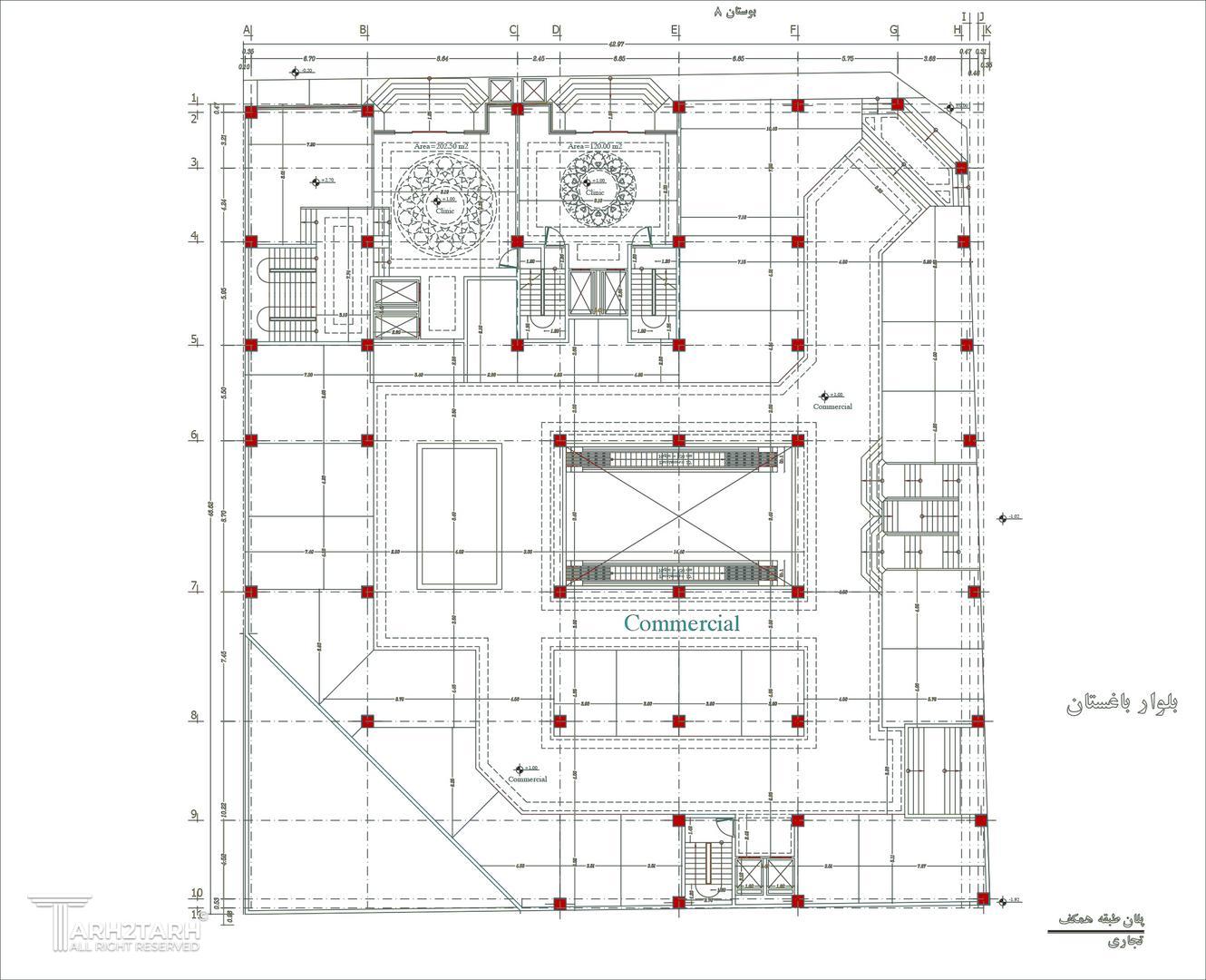
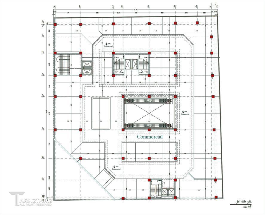
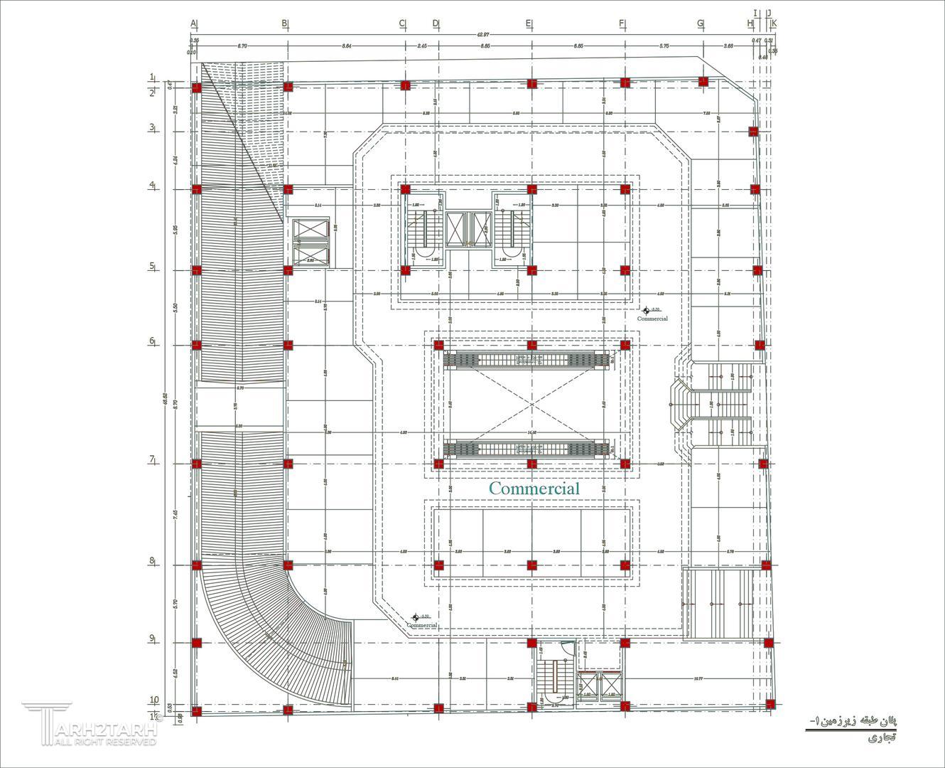
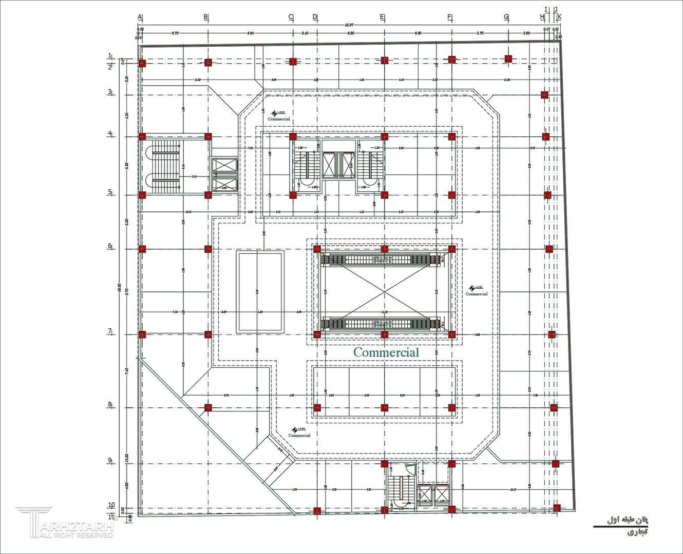
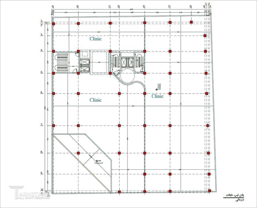
طبقات زیرین (پارکینگ) - پارکینگ چندطبقه با دسترسی مستقیم به آسانسورهای کلینیک و پاساژ. - رمپ‌های باز برای تهویه طبیعی و نورگیری. - بخش ویژه برای بیماران اورژانسی و افراد کم‌توان. - سه طبقه پایین (پاساژ) - فروشگاه‌های متنوع: پوشاک، لوازم خانگی، کتاب و کافه‌ها. - فضای مرکزی با سقف بلند و نورگیر شیشه‌ای، شبیه به «حیاط باغ» که مردم را گرد هم می‌آورد. - مسیرهای پیاده‌روی داخلی با کف‌سازی الهام‌گرفته از باغ‌های ایرانی. - فضاهای فرهنگی کوچک (گالری یا سالن نمایشگاه) برای هویت محلی. - طبقات بالا (کلینیک) - مطب‌های پزشکان با نور طبیعی و دید به بلوار باغستان. - سالن‌های انتظار با طراحی آرامش‌بخش: گیاهان داخلی، آب‌نما، نور سقفی. - بخش‌های تخصصی (رادیولوژی، آزمایشگاه، درمانگاه) با دسترسی آسان و تفکیک مسیرها.

موقعیت مکانی پروژه

نظرات
پیشنهاد و بازخورد