آبگرم
1397
0

اطلاعات پروژه

نقش : طراح ارشد
کارفرما : آقای مهندس میناخانی
نوع پروژه : طرح اجرایی
وضعیت : در حال اجرا
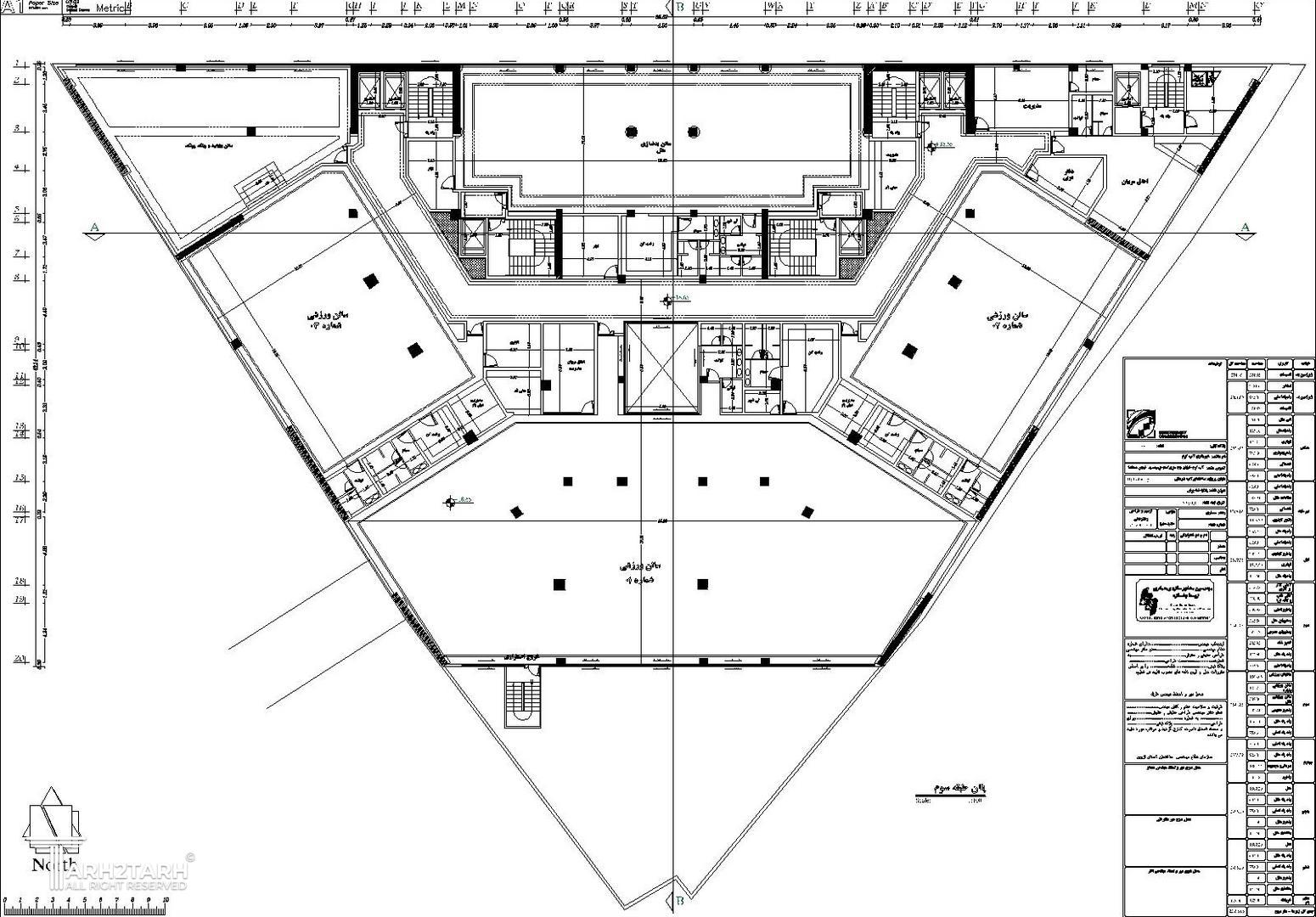
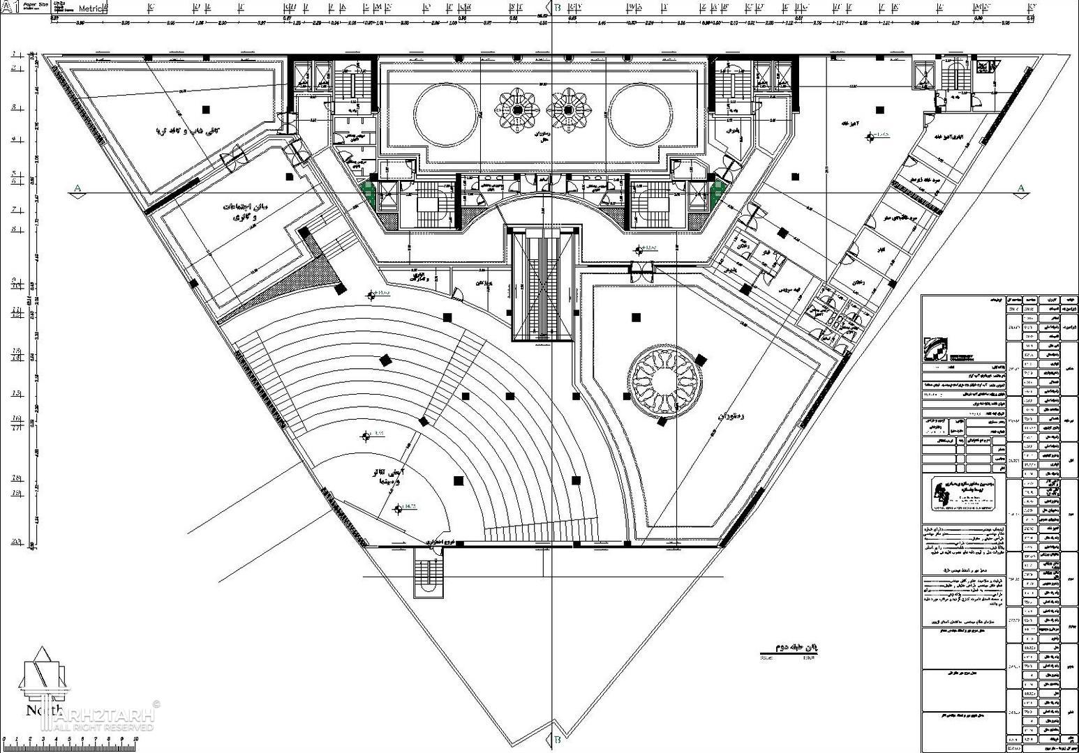
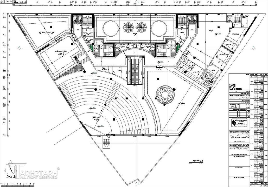
کاربری : ساختمان تجاری مرکز خرید پاساژ بازار کافه رستوران هتل کاروانسرا خوابگاه مهمان‌خانه خدمات جاده‌ای اقامتگاه تفریحی محل اقامت مرکز درمانی مرکز فرهنگی کتابخانه سالن کنفرانس تئاتر مرکز اجتماعی آمفی‌تئاتر گالری سینما غرفه فضای سبز مرکز تفریحی فروشگاه اقامتگاه بوم‌گردی مجتمع اقامتی رستوران پانوراما
متراژ زمین : 1441
متراژ زیربنا : 23500
سبک‌های طراحی: یونانی کلاسیک

خدمات ارائه شده توسط طراح

خدمات طراحی و کانسپت
مدلسازی
طراحی پلان (نقشه معماری) فاز 1
طراحی نما
طراحی نقشه فاز دو معماری
طراحی داخلی
دکوراسیون داخلی
طراحی نقشه سازه
طراحی نقشه تأسیسات مکانیکی
طراحی نقشه تأسیسات الکتریکی
طراحی سیستم برق اضطراری و تابلو برق
طراحی سیستم‌های گرمایش، سرمایش، تهویه
طراحی و تهیه طرح تفکیکی و کاربری زمین
طراحی سردرب
طراحی درب
طراحی سیستم سولار
طراحی طرح تفصیلی
طراحی پایدار
طراحی کانسپت (معماری)
خدمات مشاوره و امکانسنجی
مشاوره تحلیل سایت پروژه
مشاوره فاز صفر و امکان‌سنجی پروژه
مشاوره و برنامه‌ریزی تعیین کاربری پروژه
مشاوره طراحی اقلیمی
مشاوره انتخاب مصالح و تکنولوژی‌های نوین ساختمانی
مشاوره‌های مرتبط با مجوزات (ضوابط تراکم، سطح اشغال، پروانه ساختمان، ماده 5، کمیسیون های شهرداری، پایان کار و …)
مشاوره آتش‌نشانی
خدمات اجرایی و نظارتی
نظارت بر اجرای معماری (نظام مهندسی)
خدمات فنی و مهندسی
اخذ تاییدیه نقشه پلان
تهیه نقشه‌های اجرایی پروژه برای دریافت مجوزهای لازم (شهرداری، نظام مهندسی و …)
رندرینگ و خدمات فنی
مدل سازی
انجام تغییرات نقشه معماری
تهیه نقشه معماری فاز دو جهت ارائه به سازمان نظام مهندسی
تهیه نقشه سازه فاز دو جهت ارائه به سازمان نظام مهندسی
تهیه نقشه تاسیسات برقی فاز دو جهت ارائه به سازمان نظام مهندسی
تهیه نقشه تاسیسات مکانیکی فاز دو جهت ارائه به سازمان نظام مهندسی
تهیه نقشه معماری فاز دو اجرایی
تهیه نقشه سازه فاز دو اجرایی
تهیه نقشه تاسیسات مکانیکی فاز دو اجرایی
تهیه نقشه تاسیسات برقی فاز دو اجرایی
خدمات دیگر
رندرینگ

توضیحات پروژه

هتل 5 ستاره با تمام امکانات رفاهی و اقامتی و تفریحی

موقعیت مکانی پروژه

نظرات
پیشنهاد و بازخورد