اطلاعات پروژه

کارفرما : آقای ثباتی
نوع پروژه : طرح اجرایی
وضعیت : در حال اجرا
کاربری : مرکز درمانی ساختمان پزشکان
متراژ زمین : 1027
متراژ زیربنا : 11478
سبک‌های طراحی: مدرن

خدمات ارائه شده توسط طراح

خدمات طراحی و کانسپت
مدلسازی
طراحی پلان (نقشه معماری) فاز 1
طراحی نقشه فاز دو معماری
خدمات مشاوره و امکانسنجی
مشاوره تحلیل سایت پروژه
مشاوره فاز صفر و امکان‌سنجی پروژه
مشاوره و برنامه‌ریزی تعیین کاربری پروژه
مشاوره طراحی اقلیمی
مشاوره در زمینه توسعه پایدار
مشاوره‌های مرتبط با مجوزات (ضوابط تراکم، سطح اشغال، پروانه ساختمان، ماده 5، کمیسیون های شهرداری، پایان کار و …)
تطبیق نقشه‌ها با ضوابط شهرداری
خدمات اجرایی و نظارتی
نظارت بر اجرای معماری (نظام مهندسی)
خدمات فنی و مهندسی
اخذ تاییدیه نقشه پلان
اخذ تاییدیه نما
تهیه نقشه فاز دو شهرداری
تهیه نقشه فاز دو نظام مهندسی

توضیحات پروژه

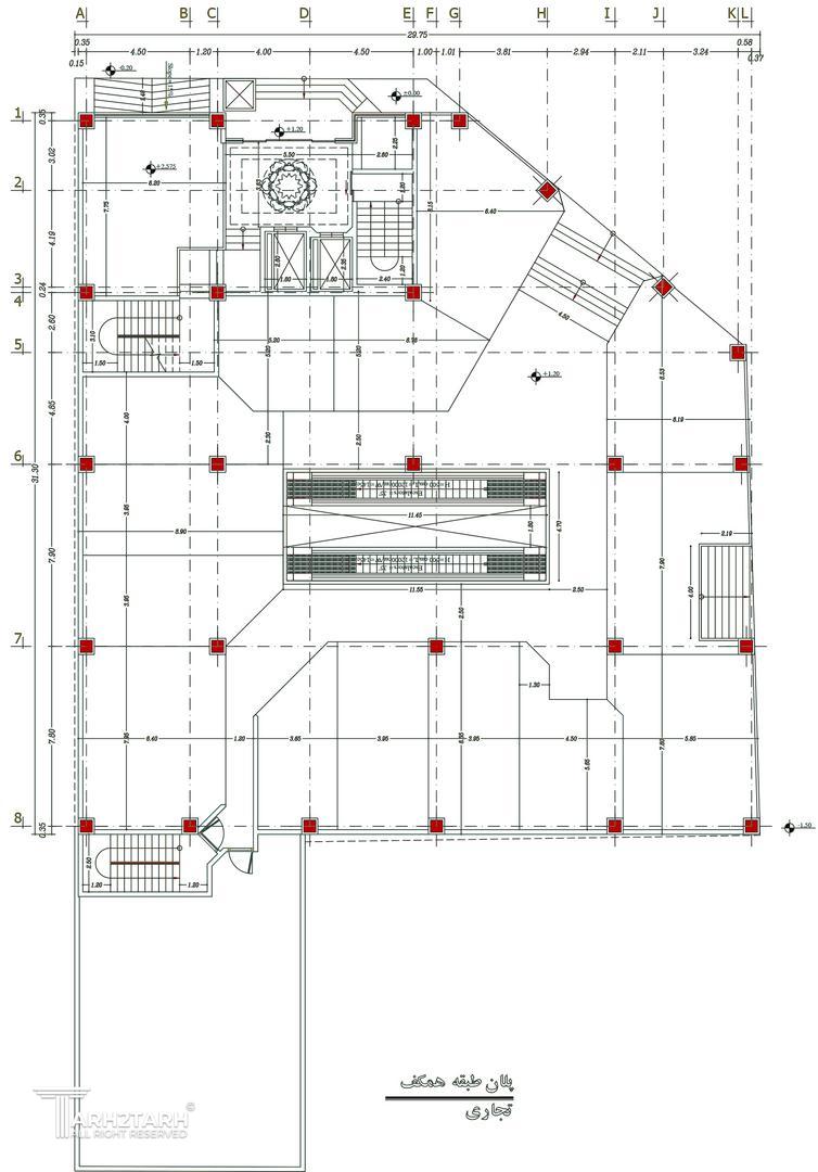
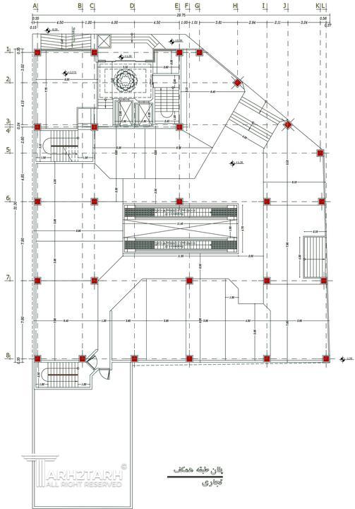
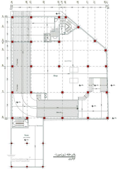
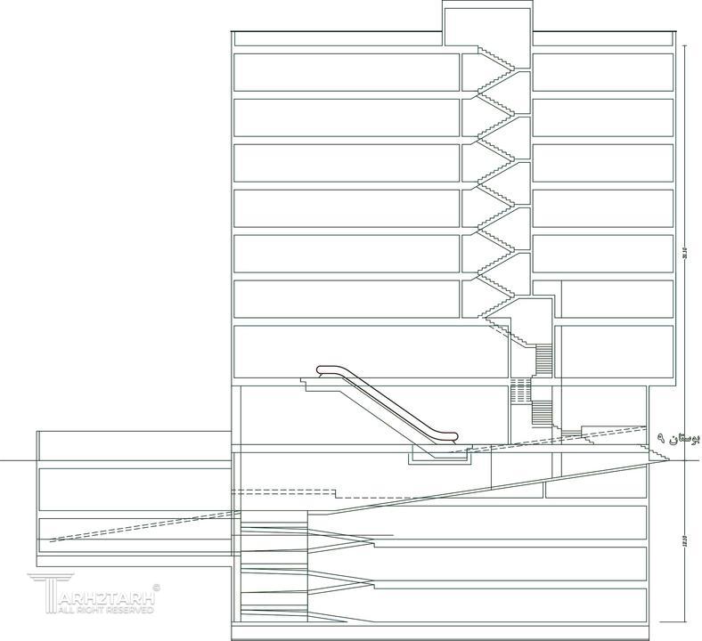
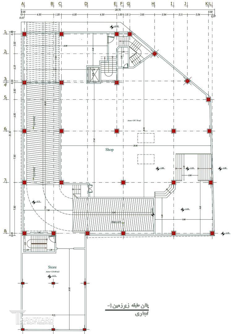
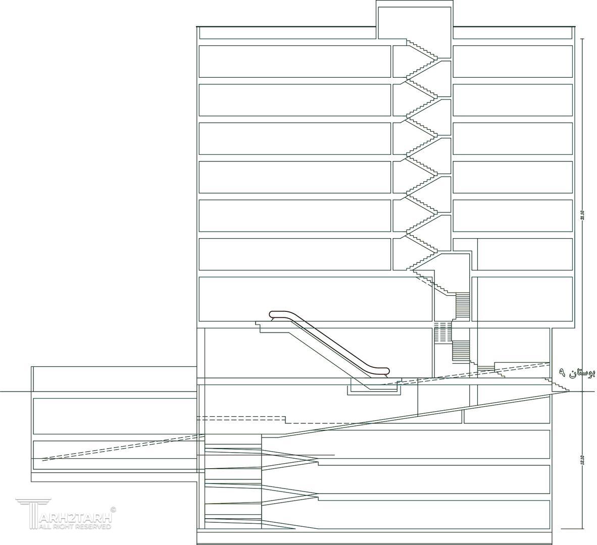
سلامت و زندگی شهری: ساختمان به‌عنوان پلی میان خدمات درمانی و نیازهای روزمره جامعه. - شفافیت و اعتماد: طراحی با نور طبیعی، شیشه‌های بزرگ و فضاهای باز برای ایجاد حس اعتماد و آرامش. - تفکیک کاربری‌ها: هر طبقه هویت خاص خود را دارد، اما در کل یک روایت واحد از «سلامت + زندگی» شکل می‌گیرد. --- 2. روایت فضایی - طبقه همکف (تجاری) - فروشگاه‌های دارویی، تجهیزات پزشکی، کافه سلامت و خدمات روزمره. - طراحی ویترین‌ها با شفافیت و نورپردازی ملایم برای جذب مخاطب. - لابی ورودی مجزا برای پزشکان، با دسترسی مستقیم به آسانسورها و پله‌ها. - طبقات بالایی (پزشکان) - مطب‌ها با پلان‌های انعطاف‌پذیر، نور طبیعی و دید به محوطه سبز. - سالن انتظار مشترک با طراحی آرامش‌بخش (آب‌نما، گیاهان داخلی، نور سقفی). - مسیرهای حرکتی واضح و جدا از بخش تجاری برای حفظ آرامش بیماران. - زیرزمین (پارکینگ) - پارکینگ وسیع با دسترسی مستقیم به آسانسورهای پزشکان و ورودی تجاری. - بخش ویژه برای بیماران اورژانسی یا افراد کم‌توان.

موقعیت مکانی پروژه

نظرات
پیشنهاد و بازخورد