اطلاعات پروژه

نقش : طراح ارشد
کارفرما : جناب آقای رشیدی
نوع پروژه : طرح اجرایی
وضعیت : اجرا شده
کاربری : ساختمان مسکونی ساختمان تجاری
متراژ زمین : 183
متراژ زیربنا : 1025
سبک‌های طراحی: ایرانی سنتی

خدمات ارائه شده توسط طراح

خدمات طراحی و کانسپت
مدلسازی
طراحی نورپردازی
طراحی مقاوم‌سازی ساختمان
طراحی نقشه سازه
طراحی نقشه تأسیسات مکانیکی
طراحی نقشه تأسیسات الکتریکی
طراحی سیستم برق اضطراری و تابلو برق
طراحی سیستم‌های گرمایش، سرمایش، تهویه
طراحی درب
طراحی نقشه فاز دو معماری
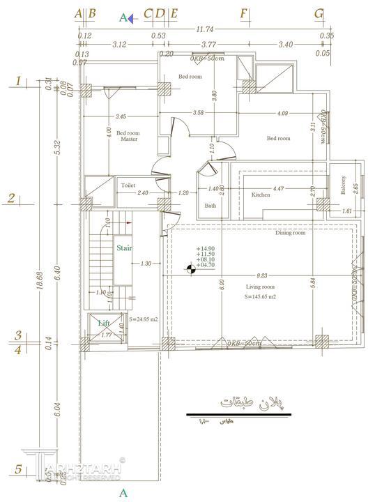
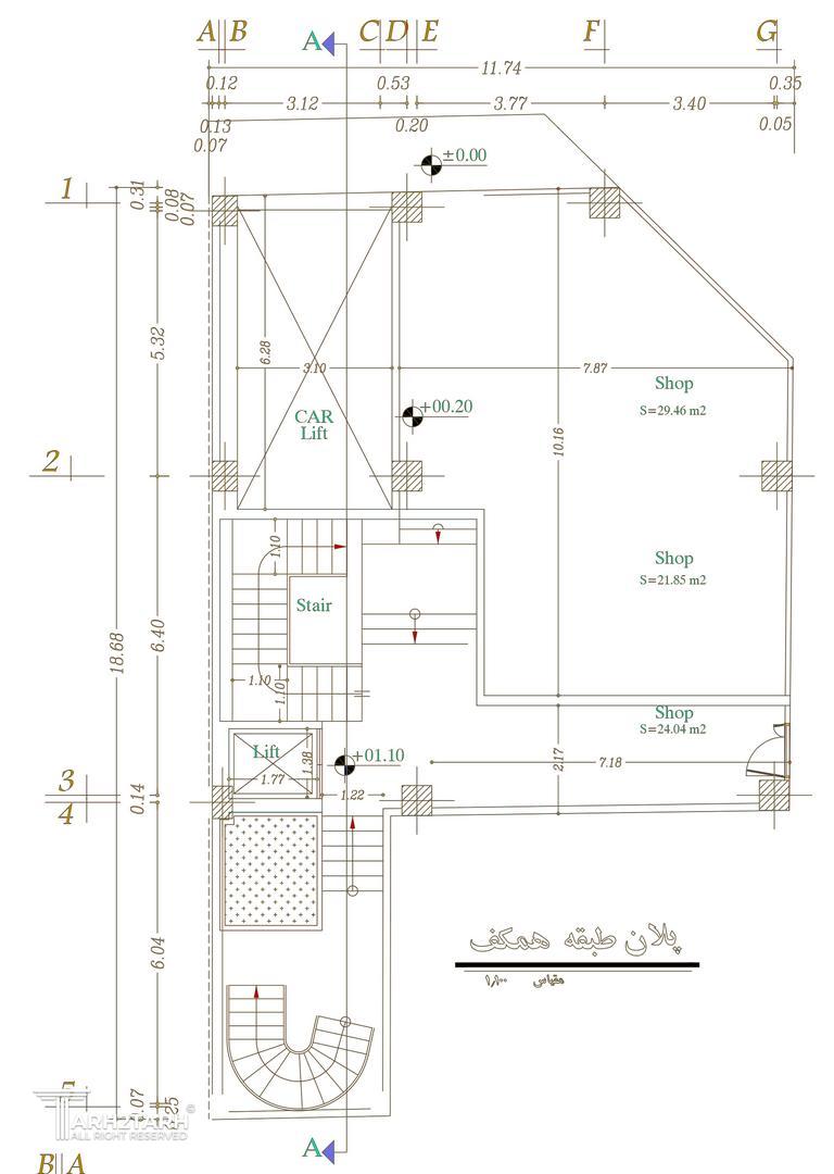
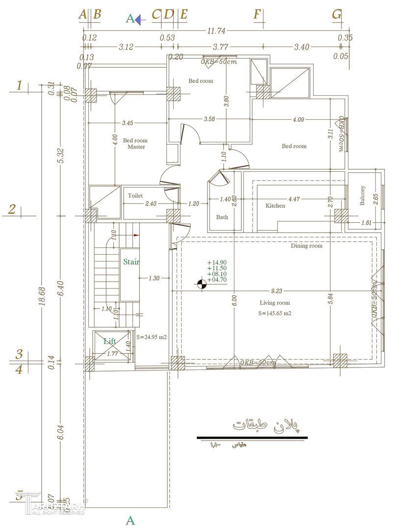
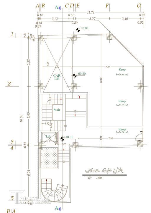
طراحی پلان (نقشه معماری) فاز 1
طراحی نما
طراحی داخلی
خدمات مشاوره و امکانسنجی
مشاوره تحلیل سایت پروژه
مشاوره فاز صفر و امکان‌سنجی پروژه
مشاوره و برنامه‌ریزی تعیین کاربری پروژه
مشاوره و تجزیه و تحلیل فنی و اصلاحات نقشه‌ها برای تطبیق با ضوابط ارگانهای ذیربط
مشاوره طراحی اقلیمی
مشاوره در زمینه توسعه پایدار
مشاوره انتخاب مصالح و تکنولوژی‌های نوین ساختمانی
مشاوره‌های مرتبط با مجوزات (ضوابط تراکم، سطح اشغال، پروانه ساختمان، ماده 5، کمیسیون های شهرداری، پایان کار و …)
مشاوره مالی و بودجه‌ای
مشاوره آتش‌نشانی
مشاوره برندسازی و هویت پروژه
مشاوره و تهیه شناسنامه فنی و ملکی پروژه
تطبیق نقشه‌ها با ضوابط شهرداری
خدمات فنی و مهندسی
اخذ تاییدیه نقشه پلان
رندرینگ و خدمات فنی
انجام تغییرات نقشه معماری
ارائه برگه تعهد تهیه نقشه سازه
ارائه برگه تعهد تهیه نقشه تاسیسات مکانیکی
ارائه برگه تعهد تهیه نقشه تاسیسات الکتریکی
ارائه گزارش مکانیک خاک
محاسبه عوارض تخریب و نوسازی شهرداری و دیگر ارگانها
تهیه نقشه معماری فاز دو جهت ارائه به سازمان نظام مهندسی
تهیه نقشه سازه فاز دو جهت ارائه به سازمان نظام مهندسی
تهیه نقشه تاسیسات برقی فاز دو جهت ارائه به سازمان نظام مهندسی
تهیه نقشه تاسیسات مکانیکی فاز دو جهت ارائه به سازمان نظام مهندسی
تهیه نقشه معماری فاز دو اجرایی
تهیه نقشه سازه فاز دو اجرایی
تهیه نقشه تاسیسات مکانیکی فاز دو اجرایی
تهیه نقشه تاسیسات برقی فاز دو اجرایی
اخذ پروانه تخریب و نوسازی شهرداری
ارائه برگه تعهد تهیه نقشه معماری
خدمات دیگر
رندرینگ

توضیحات پروژه

ساختمانی سراسر نور با معماری سنتی و حس پویایی و زندگی

موقعیت مکانی پروژه

نظرات
پیشنهاد و بازخورد