اطلاعات پروژه

نقش : طراح ارشد
نوع پروژه : طرح اجرایی
وضعیت : در حال اجرا
کاربری : ساختمان مسکونی
متراژ زمین : 450
متراژ زیربنا : 3500
سبک‌های طراحی: مدرن

خدمات ارائه شده توسط طراح

خدمات طراحی و کانسپت
مدلسازی
طراحی پلان (نقشه معماری) فاز 1
طراحی نما
طراحی نقشه فاز دو معماری
طراحی داخلی
دکوراسیون داخلی
طراحی نورپردازی
طراحی سیستم‌های هوشمند ساختمان (BMS)
طراحی مبلمان سفارشی
طراحی نقشه سازه
طراحی نقشه تأسیسات مکانیکی
طراحی نقشه تأسیسات الکتریکی
طراحی سیستم برق اضطراری و تابلو برق
طراحی سیستم‌های گرمایش، سرمایش، تهویه
طراحی کابینت
طراحی درب
طراحی دکوراسیون چوبی
طراحی کانسپت (معماری)
خدمات مشاوره و امکانسنجی
مشاوره فاز صفر و امکان‌سنجی پروژه
مشاوره و برنامه‌ریزی تعیین کاربری پروژه
مشاوره و تجزیه و تحلیل فنی و اصلاحات نقشه‌ها برای تطبیق با ضوابط ارگانهای ذیربط
مشاوره طراحی اقلیمی
مشاوره در زمینه توسعه پایدار
مشاوره انتخاب مصالح و تکنولوژی‌های نوین ساختمانی
مشاوره‌های مرتبط با مجوزات (ضوابط تراکم، سطح اشغال، پروانه ساختمان، ماده 5، کمیسیون های شهرداری، پایان کار و …)
مشاوره آتش‌نشانی
متره و برآورد هزینه ساخت پروژه
خدمات اجرایی و نظارتی
نظارت عالیه بر اجرا
مدیریت پیمان (پیمانکاری کلی پروژه)
مدیریت پروژه
مشارکت در ساخت (سرمایه‌گذاری و ساخت پروژه)
اجرای اسکلت فلزی
ساخت اسکلت فلزی (در کارخانه)
خاکبرداری
اجرای دیوارچینی
اجرای کاشی کاری
اجرای فونداسیون (پی‌سازی)
خدمات فنی و مهندسی
اخذ تاییدیه نقشه پلان
اخذ تاییدیه نما
تهیه آلبوم نمای شهرداری
تهیه نقشه‌های اجرایی پروژه برای دریافت مجوزهای لازم (شهرداری، نظام مهندسی و …)
تهیه نقشه فاز دو شهرداری
تهیه نقشه فاز دو نظام مهندسی
تهیه طرح توجیهی و امکانسنجی(جهت ارائه به کمیسیون ماده 5 و ...)
ارائه برگه تعهد تهیه نقشه معماری
رندرینگ و خدمات فنی
مدل سازی
انجام تغییرات نقشه معماری
ارائه برگه تعهد تهیه نقشه سازه
ارائه برگه تعهد تهیه نقشه تاسیسات مکانیکی
ارائه برگه تعهد تهیه نقشه تاسیسات الکتریکی
ارائه گزارش مکانیک خاک
محاسبه عوارض تخریب و نوسازی شهرداری و دیگر ارگانها
نقشه‌برداری و برداشت وضع موجود
تهیه نقشه‌های UTM و کروکی
تهیه دفترچه محاسبات
متره و برآورد هزینه ساخت پروژه
کنترل و اصلاح نقشه‌های معماری، سازه و ...
طراحی و مدلسازی BIM
تهیه طرح توجیهی و برآورد اقتصادی پروژه
تهیه نقشه معماری فاز دو جهت ارائه به سازمان نظام مهندسی
تهیه نقشه سازه فاز دو جهت ارائه به سازمان نظام مهندسی
تهیه نقشه تاسیسات برقی فاز دو جهت ارائه به سازمان نظام مهندسی
تهیه نقشه تاسیسات مکانیکی فاز دو جهت ارائه به سازمان نظام مهندسی
تهیه نقشه معماری فاز دو اجرایی
تهیه نقشه سازه فاز دو اجرایی
تهیه نقشه تاسیسات مکانیکی فاز دو اجرایی
تهیه نقشه تاسیسات برقی فاز دو اجرایی
اخذ پروانه تخریب و نوسازی شهرداری

توضیحات پروژه

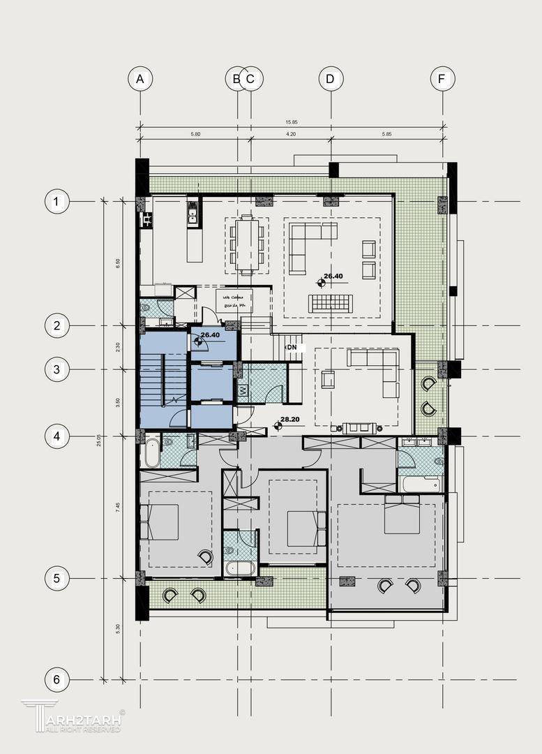
این پروژه یک ساختمان مسکونی هفت طبقه بوده که با کانسپت ویلا آپارتمان در منطقه متل قو در حال اجراست.با توجه به شرایط و محدودیت های این پروژه طراحی این ساختمان به جهت ایجاد ارزش افزوده به صورت خورحینی انجام شده است. صفر تا صد طراحی و اجرای این پروژه بر عهده دفتر معماری چکاد است.

موقعیت مکانی پروژه

نظرات
پیشنهاد و بازخورد