مسابقه طراحی نما و داخلی ساختمان مسکونی دانش

0

اطلاعات پروژه

مازیار گل طینتی

نوع مسابقه: طراحی مسکونی
سال انجام پروژه : 1402
نقش: طراح
موقعیت : تهران
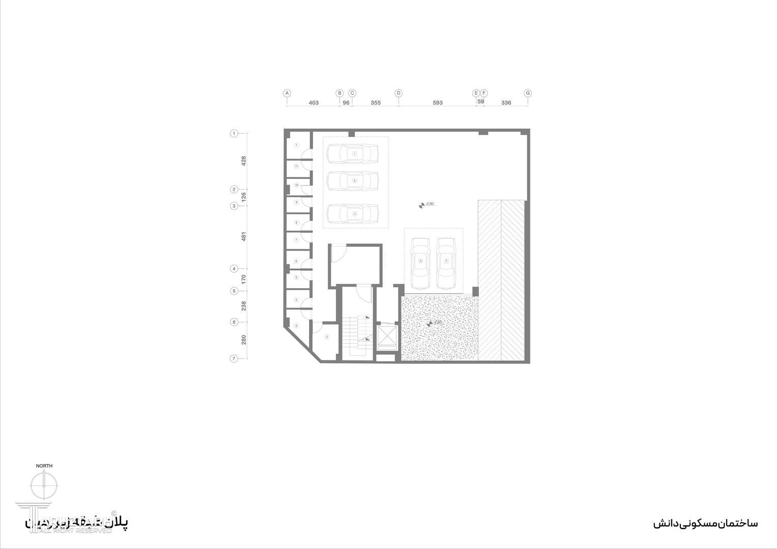
متراژ زیربنا : 2089
مساحت زمین : 400
کارفرما : محمود محمدی

خدمات ارائه شده توسط طراح

خدمات طراحی و کانسپت
طراحی نورپردازی
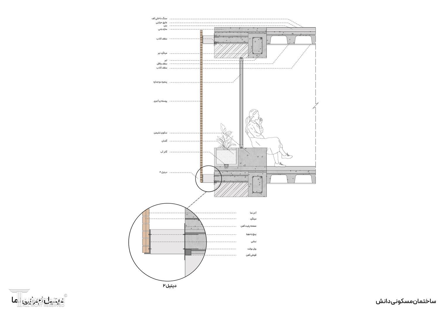
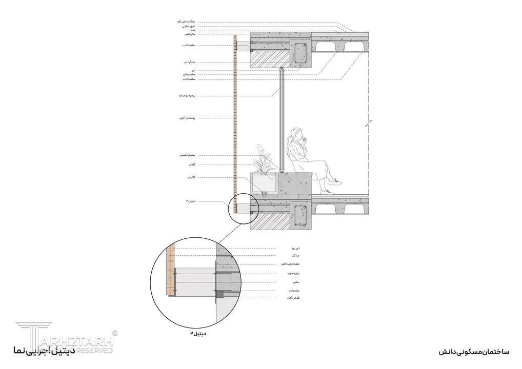
طراحی نما
طراحی داخلی

موقعیت مکانی پروژه

پیشنهاد و بازخورد