اطلاعات پروژه

نقش : طراح ارشد
کارفرما : دکتر سه دهزاده
نوع پروژه : طرح اجرایی
وضعیت : در حال اجرا
کاربری : ساختمان مسکونی
متراژ زمین : 5000
متراژ زیربنا : 28600
سبک‌های طراحی: مدرن

خدمات ارائه شده توسط طراح

خدمات طراحی و کانسپت
مدل‌سازی سه‌بعدی معماری
دکوراسیون داخلی
طراحی منظر، فضای سبز، لنداسکیپ، روف گاردن و محوطه
طراحی نورپردازی
طراحی سردرب
طراحی درب
طراحی طرح تفصیلی
طراحی پایدار
طراحی کانسپت (معماری)
طراحی نقشه فاز دو معماری
طراحی پلان (نقشه معماری) فاز 1
طراحی نما
طراحی داخلی
خدمات مشاوره و امکانسنجی
مشاوره تحلیل سایت پروژه
مشاوره فاز صفر و امکان‌سنجی پروژه
مشاوره و برنامه‌ریزی تعیین کاربری پروژه
مشاوره و تجزیه و تحلیل فنی و اصلاحات نقشه‌ها برای تطبیق با ضوابط ارگانهای ذیربط
مشاوره طراحی اقلیمی
مشاوره در زمینه توسعه پایدار
مشاوره انتخاب مصالح و تکنولوژی‌های نوین ساختمانی
مشاوره مالی و بودجه‌ای
مشاوره آتش‌نشانی
مشاوره برندسازی و هویت پروژه
تطبیق نقشه‌ها با ضوابط شهرداری
مشاوره تهیه طرح تفصیلی
خدمات فنی و مهندسی
اخذ تاییدیه نقشه پلان
اخذ تاییدیه نما
تهیه نقشه فاز دو شهرداری
تهیه نقشه فاز دو نظام مهندسی
رندرینگ و خدمات فنی
مدل سازی
انجام تغییرات نقشه معماری
تهیه نقشه معماری فاز دو جهت ارائه به سازمان نظام مهندسی
تهیه نقشه سازه فاز دو جهت ارائه به سازمان نظام مهندسی
تهیه نقشه معماری فاز دو اجرایی
تهیه نقشه‌های اجرایی پروژه برای دریافت مجوزهای لازم (شهرداری، نظام مهندسی و …)
خدمات دیگر
رندرینگ

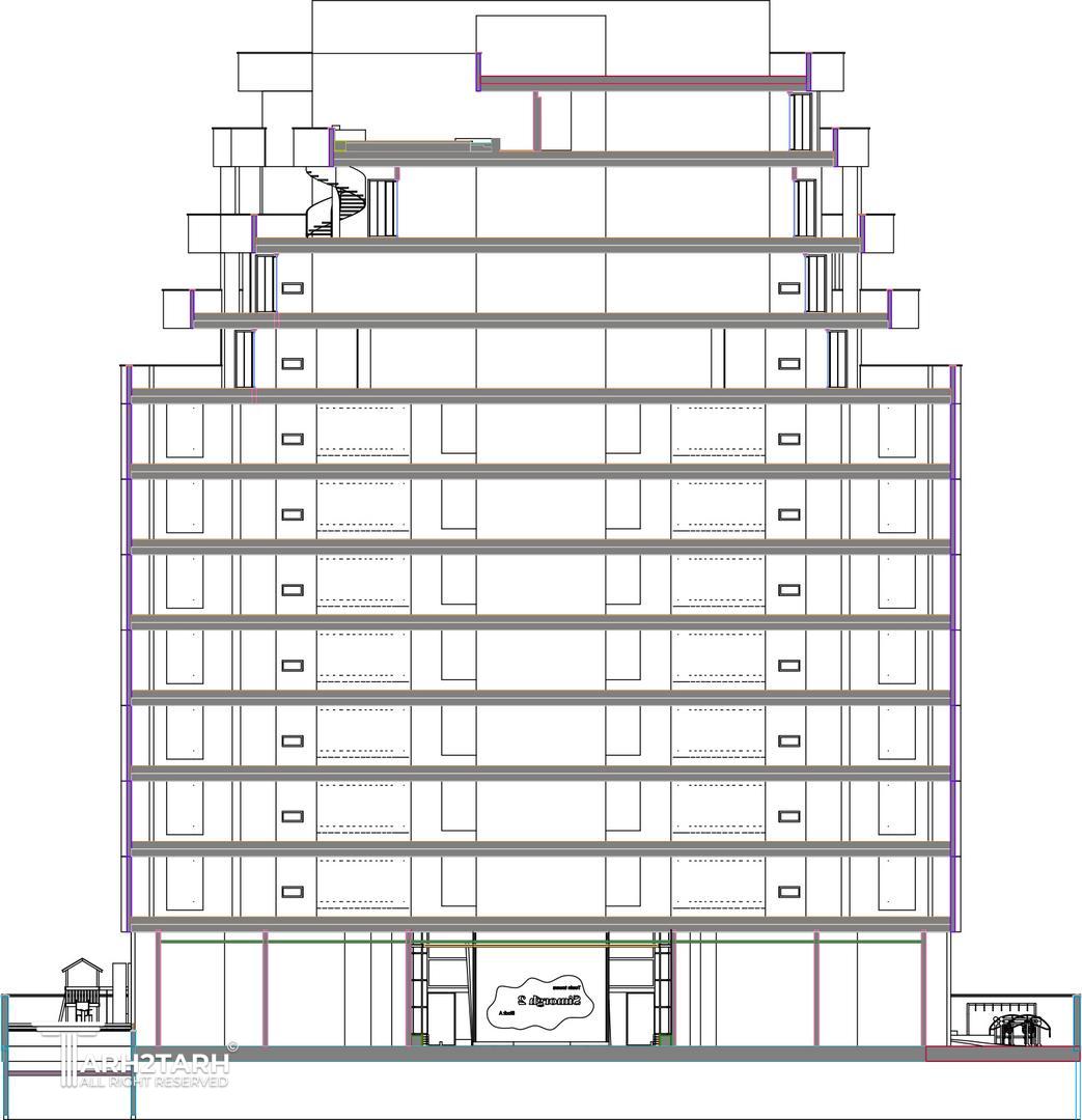
توضیحات پروژه

برج باغ دوقلوی سیمرغ با همدسه خاصی که دارد موجب نورگیری مناسب تمامی فضا شده است و تمامی فضا ها از دید مناسب برخوردار می باشند و از طرفی مشاعات کامل و قوی نیز دارد.

موقعیت مکانی پروژه

نظرات
پیشنهاد و بازخورد