اطلاعات پروژه

نقش : موارد دیگر
نوع پروژه : طرح اجرایی
وضعیت : در حال اجرا
کاربری : ساختمان مسکونی
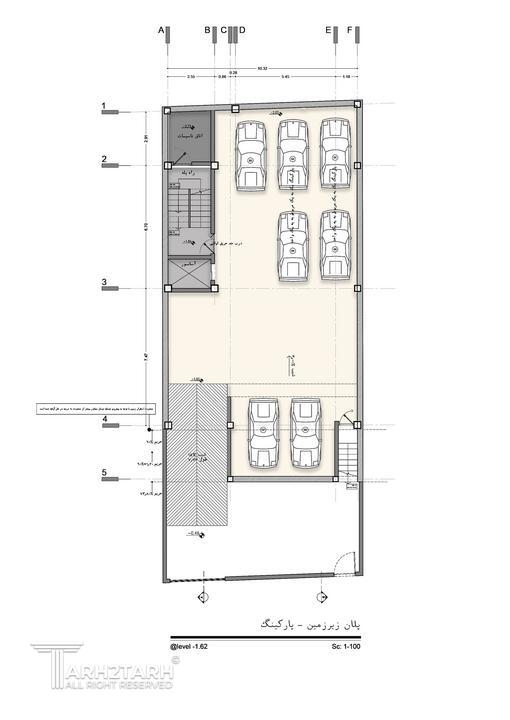
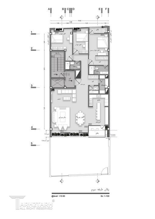
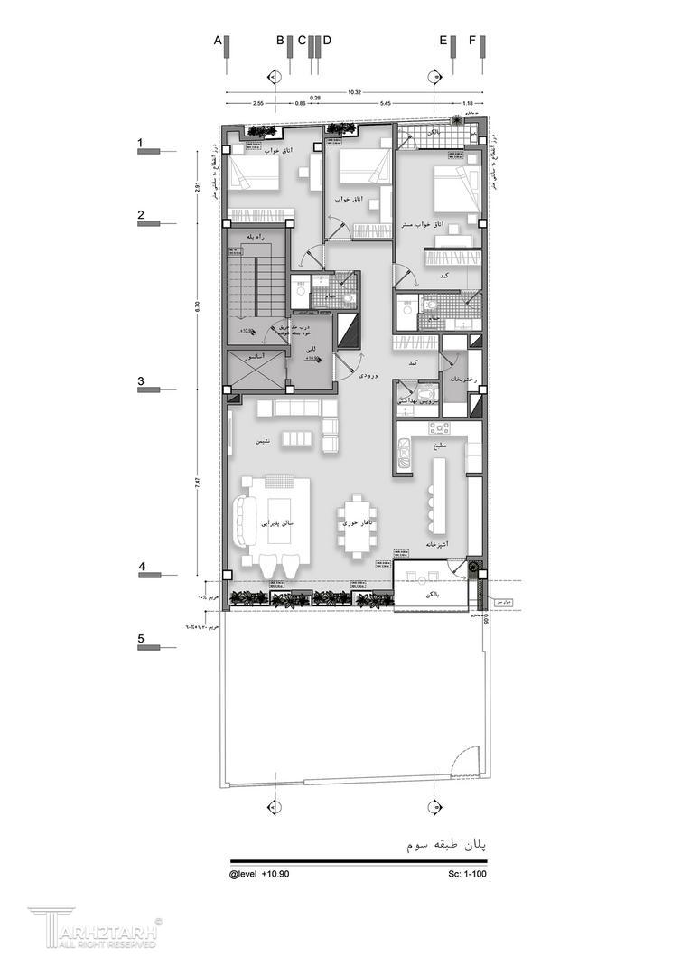
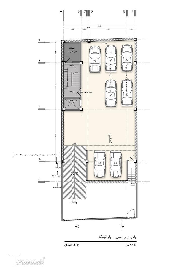
متراژ زمین : 283
متراژ زیربنا : 1200
سبک‌های طراحی: مدرن

خدمات ارائه شده توسط طراح

خدمات طراحی و کانسپت
طراحی کانسپت (معماری)
طراحی نقشه فاز دو معماری
طراحی پلان (نقشه معماری) فاز 1
طراحی نما

توضیحات پروژه

این پروژه مسکونی، در خیابان اصلی ارم که به باغ ارم‌منتهی می شود، در منطقه ۱ شهر شیراز تعریف شده است. در شروع پروژه، خیابان اصلی در راستای طرح شهرداری در دست نوسازی بود و بلوک های شهری زیادی در حال ساخت بودند. در این برهه کمبود فضاهای سبز به خصوص در واحدهای مسکونی در امتداد باغ ارم بسیار مشهود بود. از این رو طراحی در راستای برقراری یک "دیالوگ" سبز بین درون و‌بیرون نما و با منظر شهری پیش رفت. در این راستا به دنبال ایجاد تراسهایی عمیق در ضلع شرقی نمای جنوبی، یک دیوارسبز سر تا سری رو‌به خیابان اصلی، اولین "دیالوگ سبز" با شهر را برقرار می کند، در ادامه این سبزینگی عمودی در راستای افقی نیز در هر طبقه امتداد می یابد و با بازی شکستگی های نما، درون بنا نیز نفوذ می کند و این "دیالوگ" بین درون و بیرون نما نیز شکل می گیرد.

موقعیت مکانی پروژه

نظرات
پیشنهاد و بازخورد