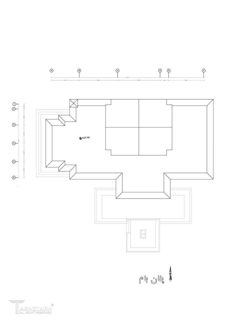
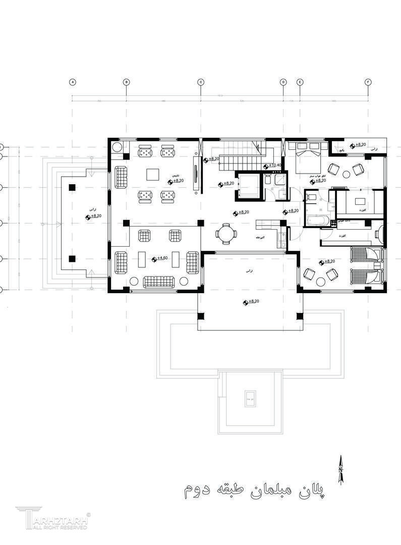
نفر سوم مسابقه طراحی ویلا چابکسر

0

اطلاعات پروژه

شیدا علیزاده -النازحسن نژاد

نوع مسابقه: طراحی ویلا
سال انجام پروژه : 1399
نقش: طراح
موقعیت : چابکسر
متراژ زیربنا : 1700
مساحت زمین : 500
کارفرما : محمد عابدینی

موقعیت مکانی پروژه

پیشنهاد و بازخورد