مسابقه طراحی ساختمان دزاشیب (گروه ساختمانی بنیان)

0

اطلاعات پروژه

شهاب گرجی

نوع مسابقه: طراحی مسکونی
سال انجام پروژه : 1404
نقش: طراح
موقعیت : تهران
متراژ زیربنا : 1225
مساحت زمین : 250
کارفرما : گروه ساختمانی بنیان

خدمات ارائه شده توسط طراح

خدمات طراحی و کانسپت
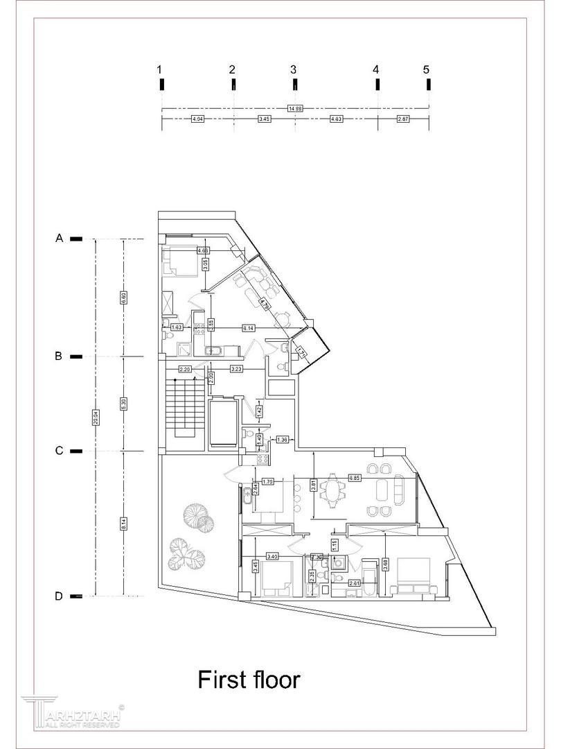
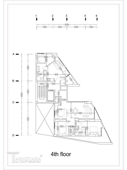
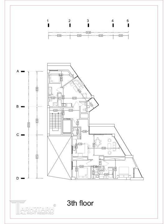
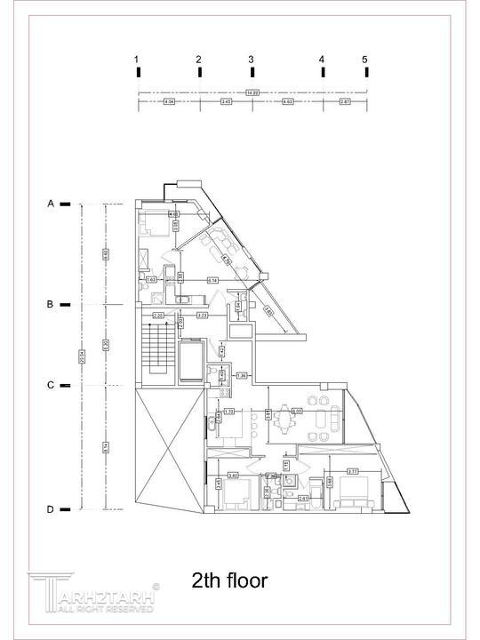
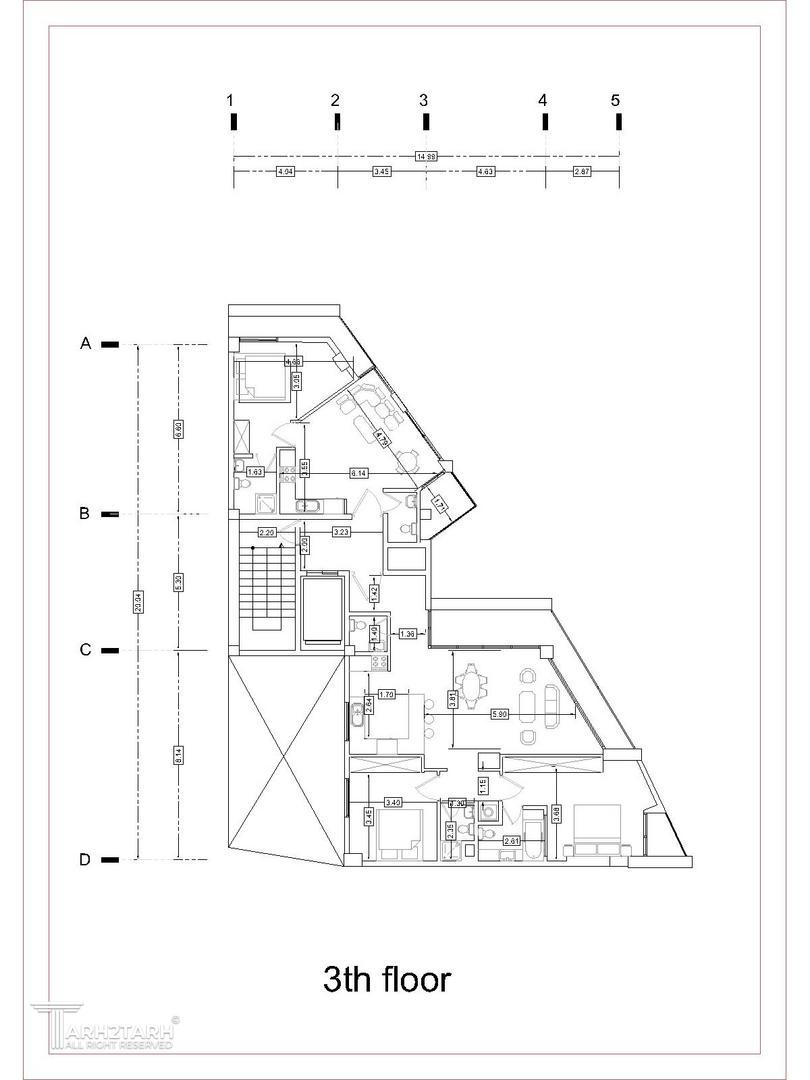
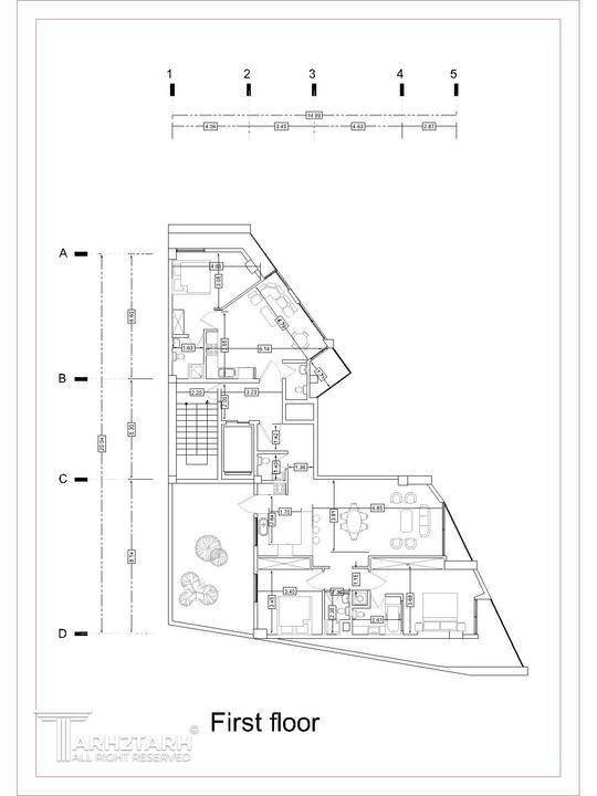
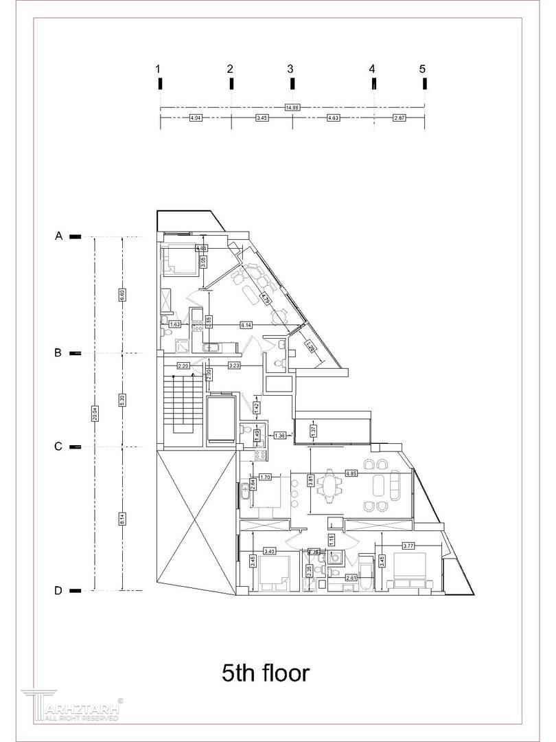
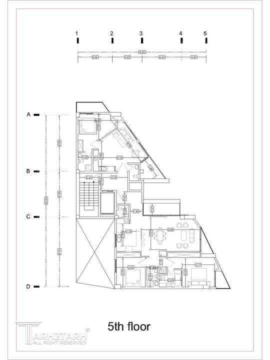
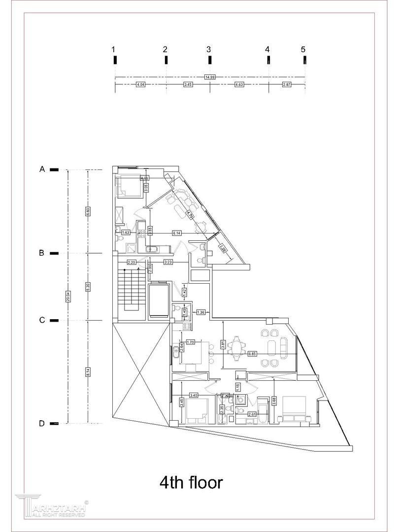
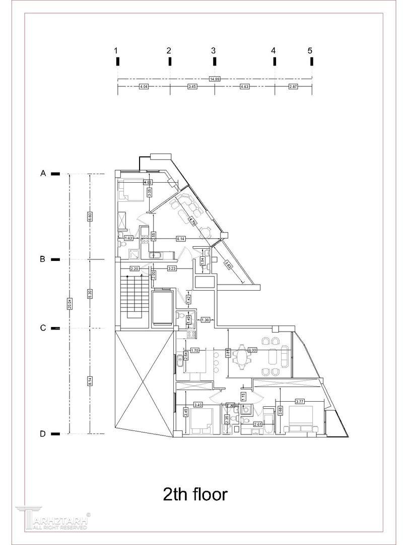
طراحی پلان (نقشه معماری) فاز 1
طراحی نما
طراحی نورپردازی

موقعیت مکانی پروژه

پیشنهاد و بازخورد