مسابقه طراحی پلان، نما و روف گاردن فراز کنگان

0

اطلاعات پروژه

فاطمه شعبانی

نوع مسابقه: طراحی مسکونی
سال انجام پروژه : 1399
نقش: طراح
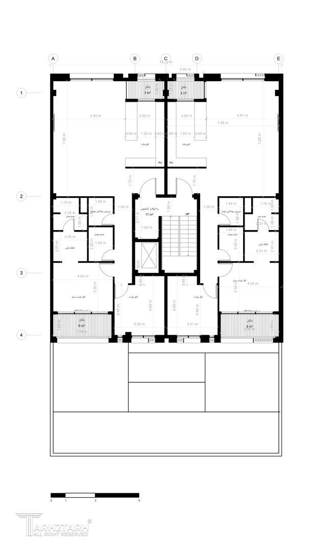
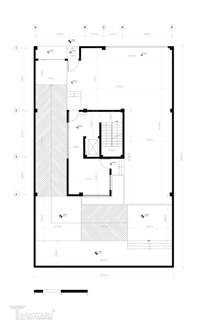
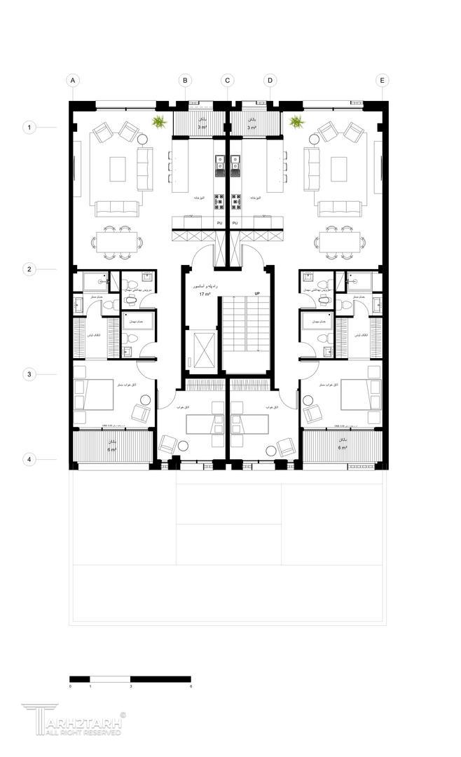
موقعیت : تهران
متراژ زیربنا : 2100
مساحت زمین : 400
کارفرما :

موقعیت مکانی پروژه

پیشنهاد و بازخورد