مسابقه طراحی پلان، نما و روف گاردن فراز کنگان

0

اطلاعات پروژه

غزاله حسینی

نوع مسابقه: طراحی مسکونی
سال انجام پروژه : 1399
نقش: طراح
موقعیت : تهران
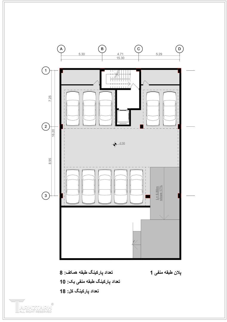
متراژ زیربنا : 2100
مساحت زمین : 400
کارفرما :

موقعیت مکانی پروژه

پیشنهاد و بازخورد