مسابقه طراحی پلان ساختمان مسکونی دولت-1

0

اطلاعات پروژه

استودیو آرکیفای

نوع مسابقه: طراحی مسکونی
سال انجام پروژه : 1401
نقش: طراح
موقعیت : تهران
متراژ زیربنا : 3000
مساحت زمین : 500
کارفرما : علی کاتوزیان

خدمات ارائه شده توسط طراح

خدمات طراحی و کانسپت
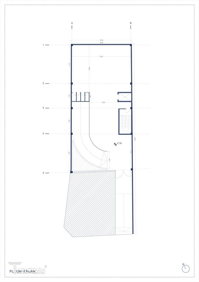
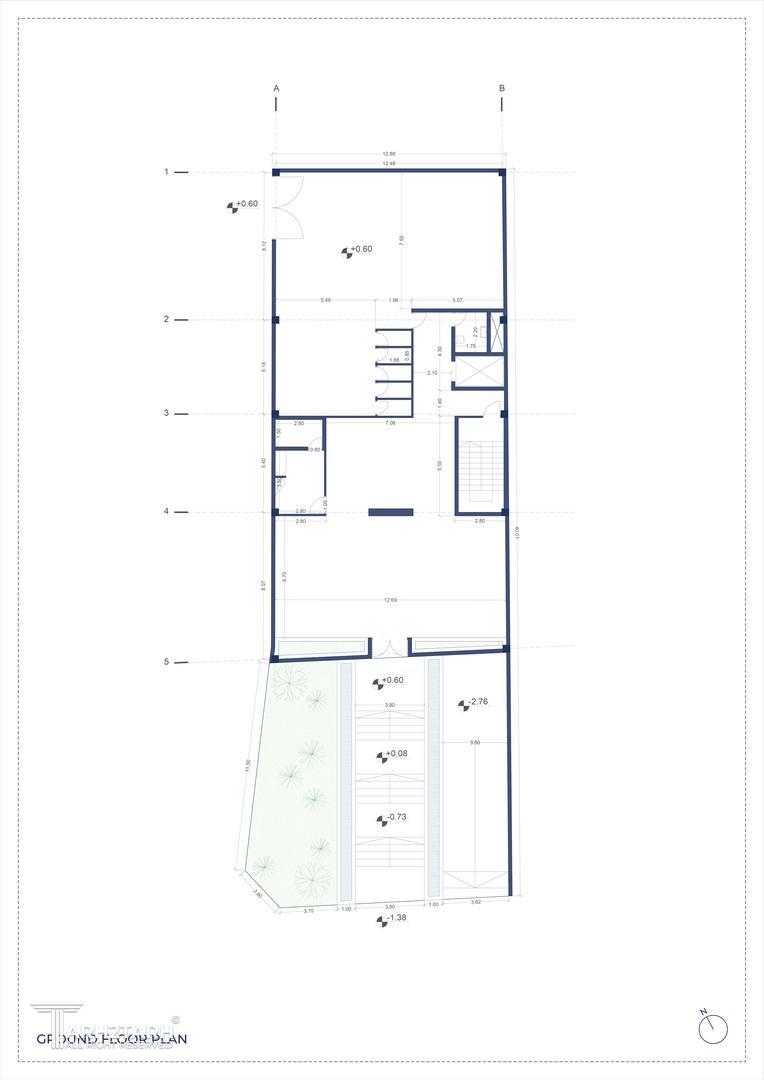
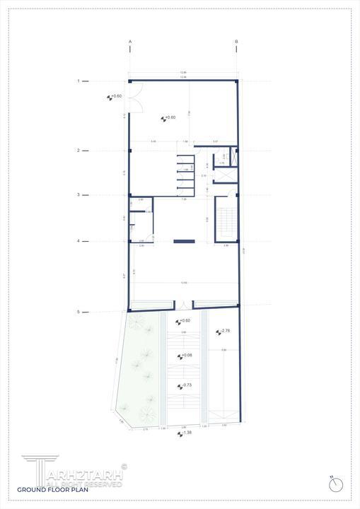
طراحی پلان (نقشه معماری) فاز 1

موقعیت مکانی پروژه

پیشنهاد و بازخورد