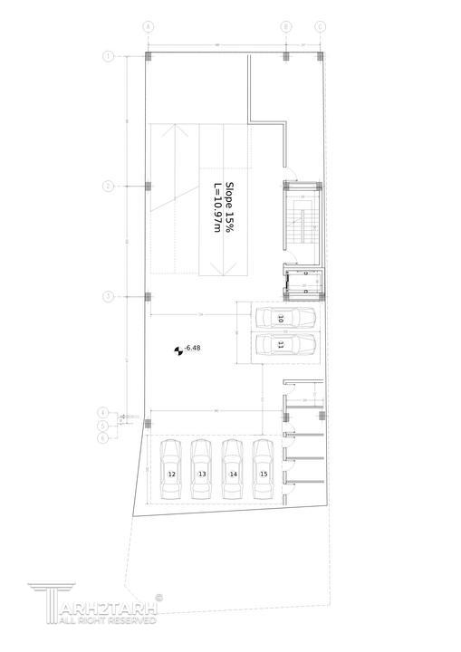
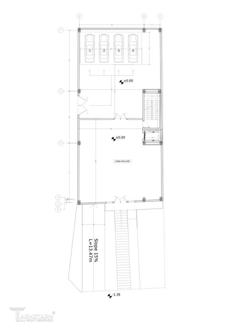
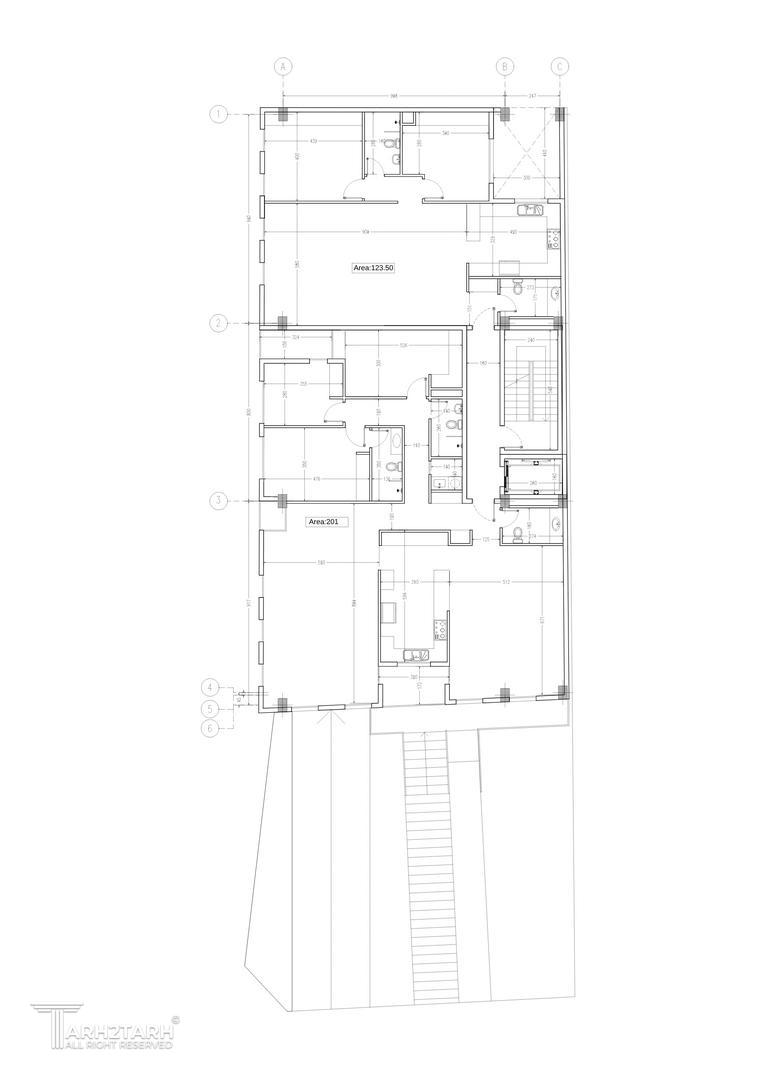
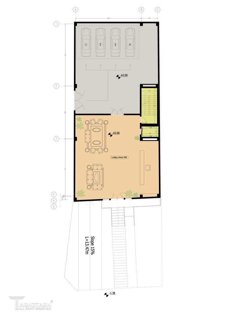
مسابقه طراحی پلان ساختمان مسکونی دولت-1

0

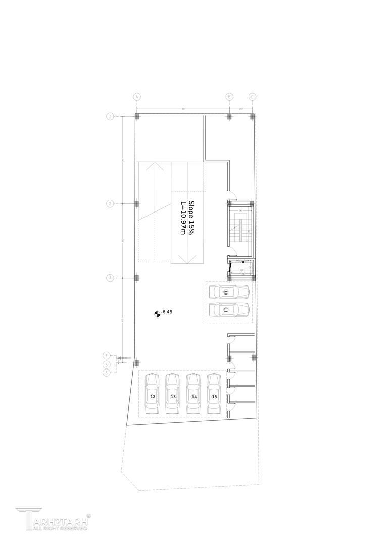
اطلاعات پروژه

کاربر حذف شده

نوع مسابقه: طراحی مسکونی
سال انجام پروژه : 1401
نقش: طراح
موقعیت : تهران
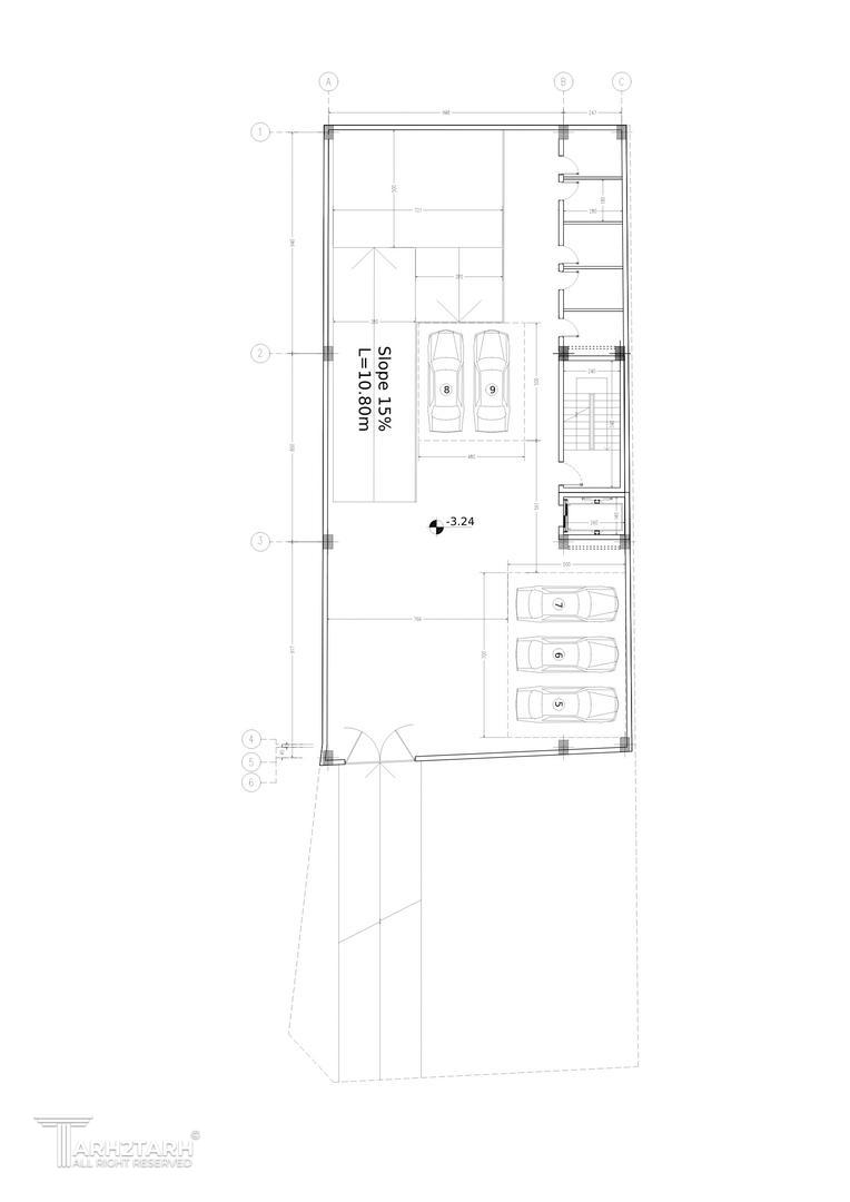
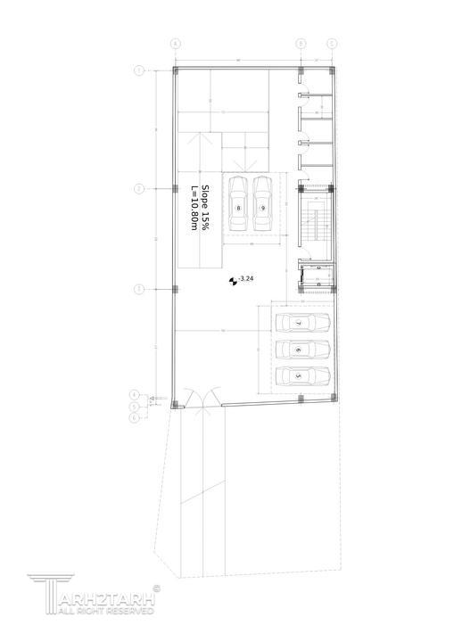
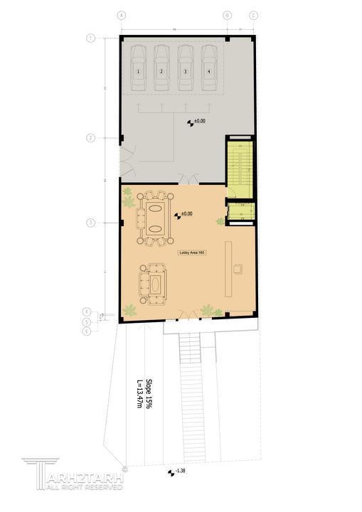
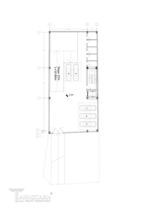
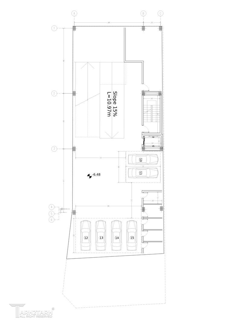
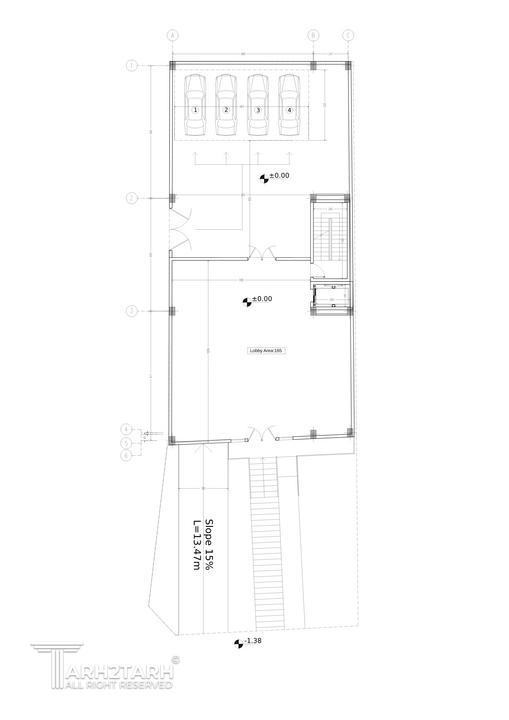
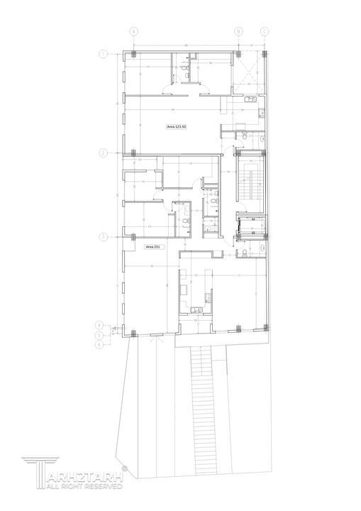
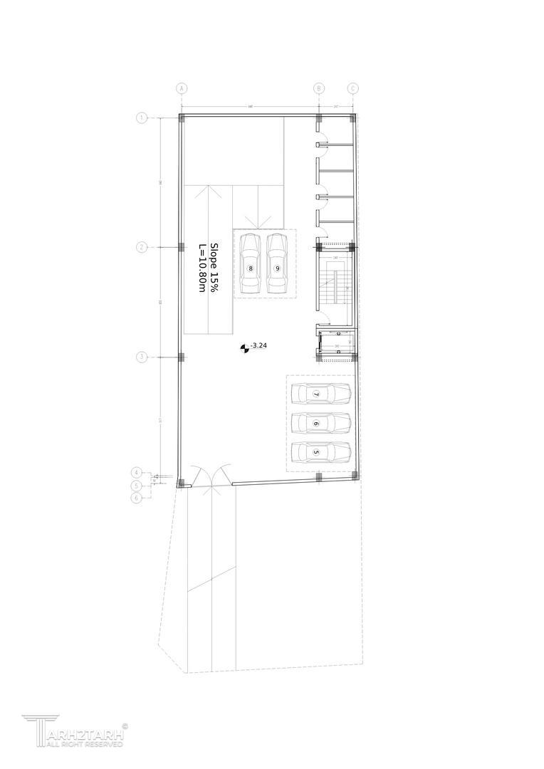
متراژ زیربنا : 3000
مساحت زمین : 500
کارفرما : علی کاتوزیان

خدمات ارائه شده توسط طراح

خدمات طراحی و کانسپت
طراحی پلان (نقشه معماری) فاز 1

موقعیت مکانی پروژه

پیشنهاد و بازخورد