اطلاعات پروژه
shokufeh Vafaei
نوع مسابقه:
طراحی مسکونی
سال انجام پروژه :
1401
نقش:
طراح
مسابقه:
طراحی پلان ساختمان مسکونی دولت-1
موقعیت :
تهران
متراژ زیربنا :
3000
مساحت زمین :
500
کارفرما :
علی کاتوزیان
خدمات ارائه شده توسط طراح
خدمات طراحی و کانسپت
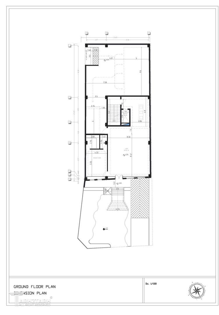
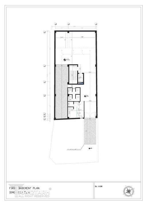
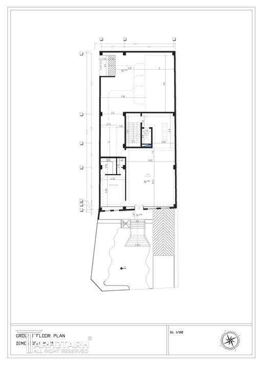
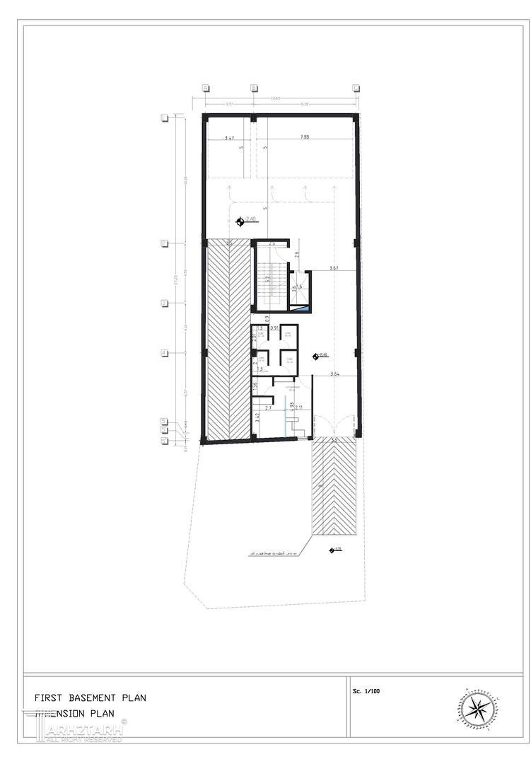
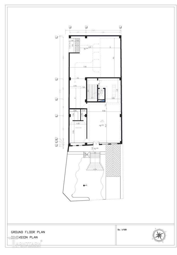
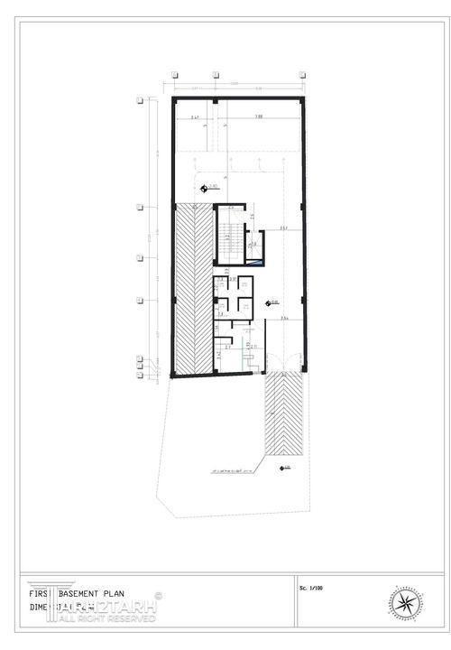
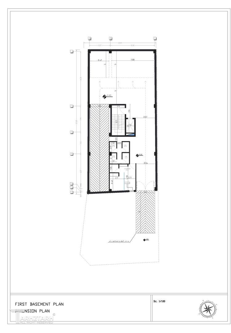
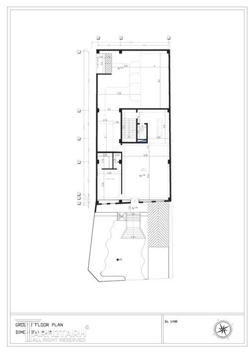
طراحی پلان (نقشه معماری) فاز 1
موقعیت مکانی پروژه
برای ثبت کامنت ابتدا وارد سایت شوید.