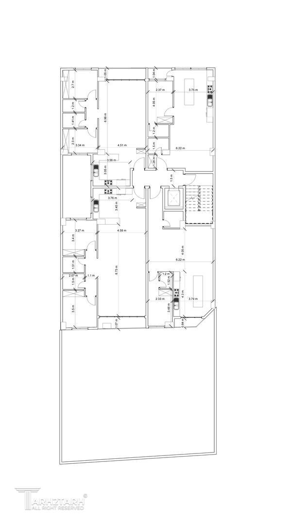
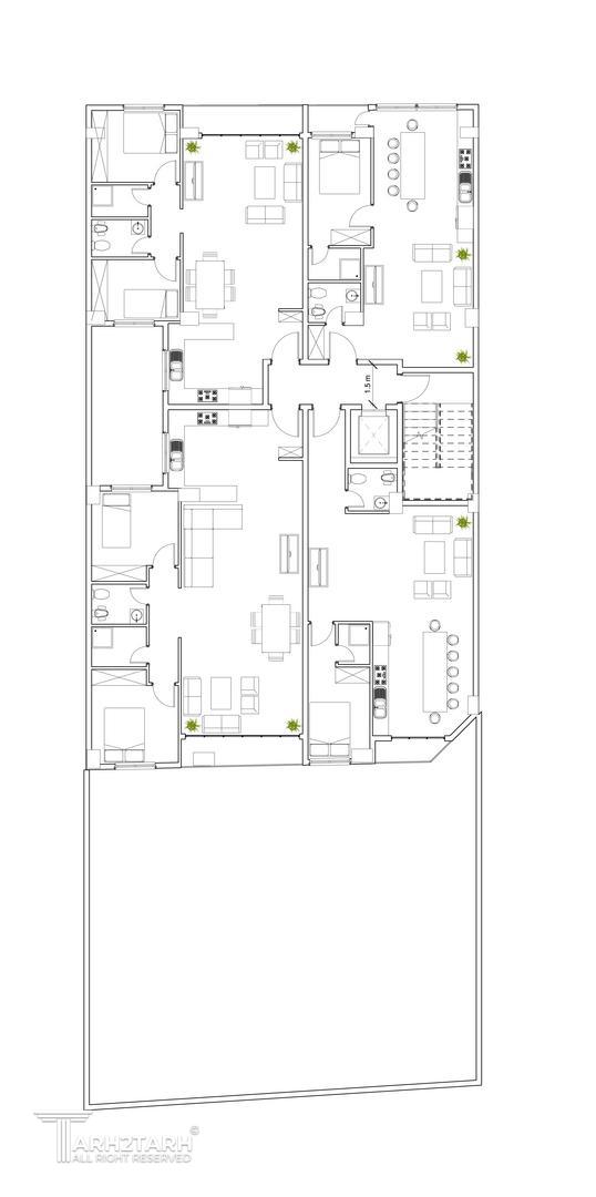
مسابقه پروژه طراحی پلان سیدخندان

0

اطلاعات پروژه

unknow

نوع مسابقه: طراحی مسکونی
سال انجام پروژه : 1399
نقش: طراح
موقعیت : تهران
متراژ زیربنا : 348
کارفرما : امیر امینی
پیشنهاد و بازخورد