اطلاعات پروژه

نقش : طراح ارشد
نوع پروژه : کانسپت

مقام‌ها و افتخارات پروژه

هیات داوران

توضیحات پروژه

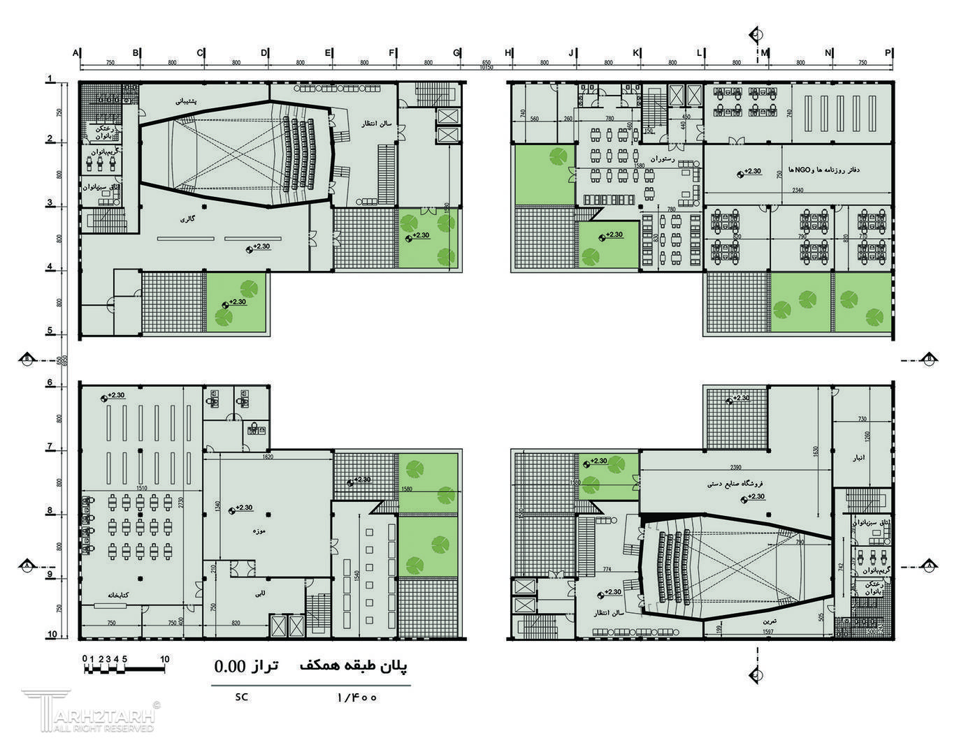
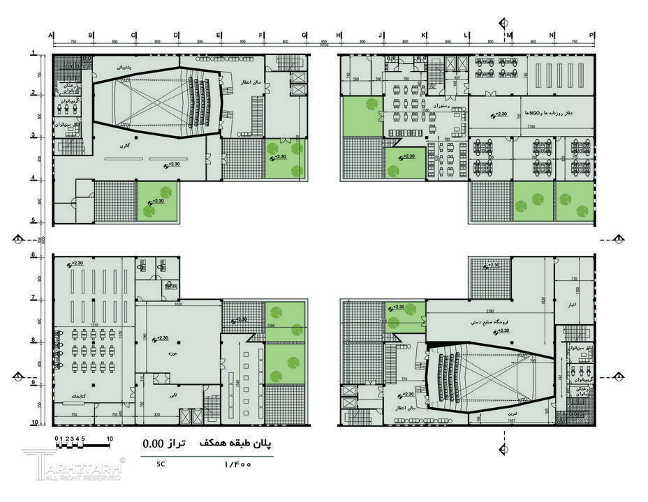
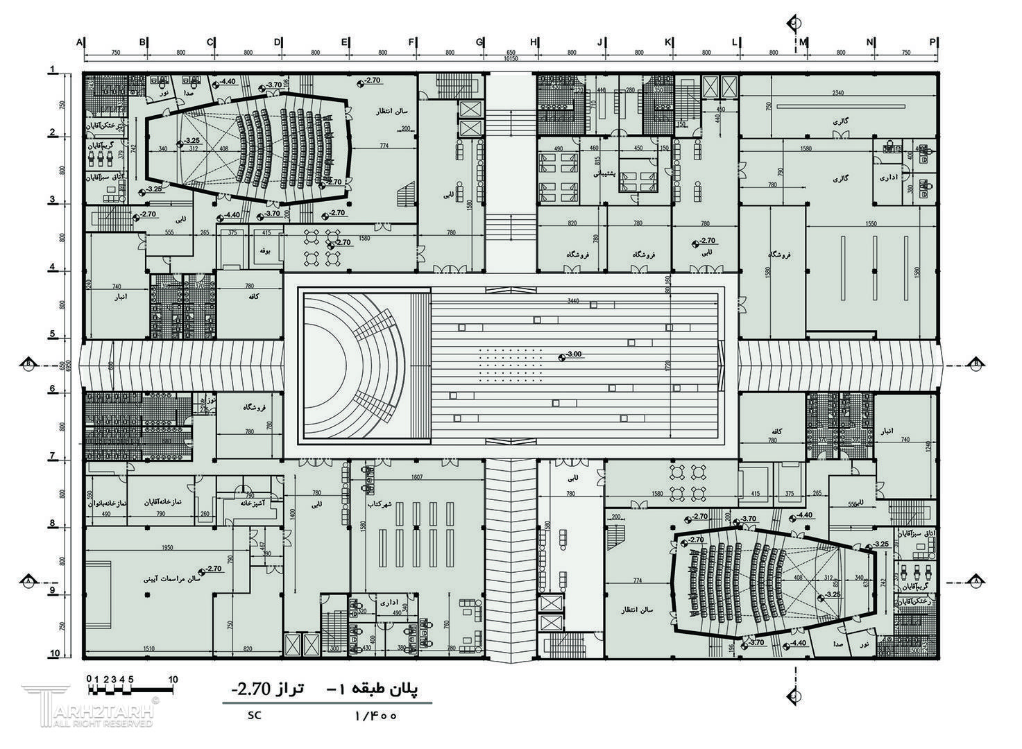
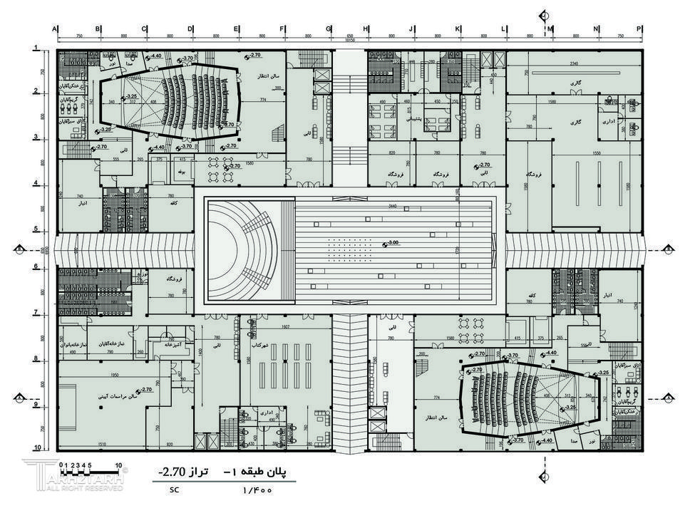
این مجموعه از تلاقی دو محور اصلی عمود بر هم یا حجمی مکعب مستطیل شکل گرفته است. محور ها چنانچه مکعب بزرگ را قطع می کنند ، آنرا به چهار قسمت جداگانه تقسیم کرده اند. حجم از بیرون صلب و آجری و از داخل رو به حیاط مرکزی متشکل از مکعب های با ارتفاع مختلف حول حیاط مرکزی است. تمامی عناصر کالبدی خواسته شده در طبقات مختلف حول حیاط مرکزی شکل گرفته اند. معماری کاروانسرا : در راستای احترام به معماری کهن منطقه ی طرح ، از حجم و پلان کاروانسرای سنگی پرند (رباط کریم) برای شکل دهی به طرح الهام گرفته شده است . کاروانسرا به ساختمانی اشاره دارد که کاروان را در خود جای می‌دهد و پلان آن معمولاً مربع یا مستطیل شکل است، با یک ورودی برجسته عظیم و بلند، معمولاً ساده و بدون نقش. يکي از مهمترين آثار تاريخي شهرستان رباط کريم که بسيار هم ديدني و با شکوه است قلعه سنگي نام دارد که دراين شهرستان وتقاطع اتوبان تهران ساوه واقع شده است. بناي قلعه سنگي در تقاطع مسير اتوبان تهران – ساوه و جاده قديم ساوه از يادگارهاي بسيار شاخص و ارزشمند معماري ايران قلمداد مي شود که امروزه ديوارهاي عظيم و سنگي آن در جنوب شهر جديد پرند تنها بناي کهن و باشکوهي است که در اين منطقه خودنمايي مي کند . اين بنا به عنوان قلعه حكومتي از روزگاران کهن به دلايل گوناگون ارتباطي چون جريان اقتصادي، نظامي، جغرافيايي و مذهبي شکل گرفته و در ادوار مختلف به تدريج گسترش يافته است . درونگرایی : درون‌گرایی در معماری' از واژه درون‌گرایی می‌توان معانی مختلفی را استنباط کرد. این واژه قبل از اینکه رنگ معماری به خود بگیرد از دیدگاه اخلاقی و عرفانی نیز در بر گیرنده معانی و مفاهیمی می‌باشد تودار بودن، گرایش به حالات درونی و پرهیز از نشان دادن آن حالات به صورت تظاهر، بعضی از این معانی می‌باشد. بحث نپرداختن به ظاهر و در عوض کار بر روی درون و حالات درونی، از طرف بعضی کارآشنایان به مباحث معماری، به داخل این عرصه نیز کشیده شده‌است تا جایی که معماران ایران را از این نظر که در نمای بیرون آن و در گذرهای پر پیچ و خم چیزی جز خشت و گل دیدیه نمی‌شود ولی در داخل دنیایی از پرکاری و زیبایی دارد، درونگرا نامیده‌اند. خلق فضا : تجربه های فضایی جدید و تکرار نشدنی از جمله جذابیت های ایده ارایه شده است که حس جدا شدگی از بافت ناهمگون اطراف و قرارگیری در فضایی با کاربری های اجتماعی و فرهنگی را فراهم نموده است. مصالح – جداره ها : در پوسته صلب بیرونی ، استفاده از مصالح آجر خاکی رنگ حس تعلق به فضای بیشتری به کاربر ایرانی منتقل می کند. در مقابل آن فضاهای داخلی شفاف و در ترکیب با سطوح سبز و پوشش های گیاهی قرار دارند که به تامین هوای مطبوع کمک زیادی می کند. محوطه اطراف : ضمن ایجاد فرصت فضایی جهت جدایی از شهر و ورود به مجموعه ، امکان تامین پارکینگ ها ، مسیرهای دوچرخه سواری ، زمین های بازی و فضا های سبز را فراهم آورده است. سهولت اجرا : سادگی در فهم و اجرا از ایده های اصلی شکل گیری معماری تالار شهر است که پایبندی به آن همواره مورد تاکید بوده است. هیچ هزینه بیش از انتظاری ناشی از فرم معماری به پروژه تحمیل نشده است. سالن های چند منظوره :دو سالن 200 نفره و 100 نفره در مجموعه تعبیه شده است. در طبقات پایین بلوک های A و D سالن های 200 نفره و در طبقات فوقانی هر کدام سالن های 200 نفره قایل دسترسی هستند . از آنجا که کاربری کنسرت دارای بیشترین فضاهای پشتیبانی است ، تمام 4 سالن با امکانات کنسرت نظیر انبار، اتاق گریم و سرویس برای خانم ها و آقایان، اتاق های سبز برای خانم ها و آقایان و اتاق های تمرین و همچنین پشتیبانی فنی نظیر نور و صدا هستند. پارکینگ : در طبقه 2- تعداد 135 پارکینگ سرپوشیده و در محوطه 70 جای پارک خودرو منظور شده است. دسترسی های عمودی : از طریق 8 دستگاه آسانسور و 4 دستگاه پله تامین شده است سرویس های بهداشتی تاسیسات مرکزی انبار ها پشتیبانی کارگری فضاهای اداری کافه ها رستوران ها گالری نمایش اثار هنری شهر کتاب سالن مراسمات آیینی و مذهبی: جهت برگزاری مراسمات مذهبی و مناسبتی و ادعیه به صورت هفتگی یا فصلی نمازخانه عمومی : به جهت زاویه قرارگیری سایت نسبت به قبله ، جانمایی توالت ها در جهت محور عرضی (شمال غربی-جنوب شرقی) انجام شده است. دفاتر روزنامه ها و NGO ها کتابخانه موزه کارگاه و فروشگاه صنایع دستی کانون پرورش فکری فرهنگسرا کارگاه و باغ مجسمه سازی مدیریت سینما و تیاتر روباز : با گنجایش 100-120 نفر در حیاط مرکزی واقع شده است فضای سبز : مجموعا 5400 متر مربع شامل حیاط مرکزی و تراس ها سطوحی هستند که امکان ایجاد فضای سبز قایل استفاده عموم را فراهم آورده اند. فازبندی اجرایی : کالبد ساختمان تالار شهر به چهار فاز به این ترتیب تقسیم شده است : A : 3537 مترمربع B: 3264 مترمربع C: 3520 مترمربع D: 3539 مترمربع طبقه منفی2 : 7140 لذا در فاز اول اجرا، بلوکهای A,B و بخشی از منفی 2 را به مساحت جمع 11250 متر اجرا نمود. بخش اجرا شده شامل بخشی از پارکینگ، تاسیسات و انبار ، حیاط مرکزی و بلوک های A و B ست و مساحت خالی را می توان به فعالیت هایی نظیر  فضای سبز  غرفه های نمایشگاهی  نمایش های روباز  و غیره... پر کرد. سازه : کلیت سازه تشکیل شده از دهانه های 8 و 5/6 متری منظم است که با سیستم قاب خمشی به هر دو صورت فلزی و بتنی قابل اجراست.

نظرات
پیشنهاد و بازخورد