ایزد شهر
1401
0

اطلاعات پروژه

نقش : طراح ارشد
کارفرما : آقای بهروز خاکپور
نوع پروژه : طرح اجرایی
وضعیت : در حال اجرا
کاربری : ویلا
متراژ زمین : 354
متراژ زیربنا : 350
سبک‌های طراحی: مدرن

خدمات ارائه شده توسط طراح

خدمات طراحی و کانسپت
دکوراسیون داخلی
طراحی منظر، فضای سبز، لند اسکیپ، روف گاردن و محوطه
طراحی نقشه فاز دو معماری
طراحی پلان (نقشه معماری) فاز 1
طراحی نما
طراحی داخلی
خدمات اجرایی و نظارتی
بازسازی
خدمات فنی و مهندسی
رندرینگ و خدمات فنی
مدل سازی
خدمات دیگر
رندرینگ

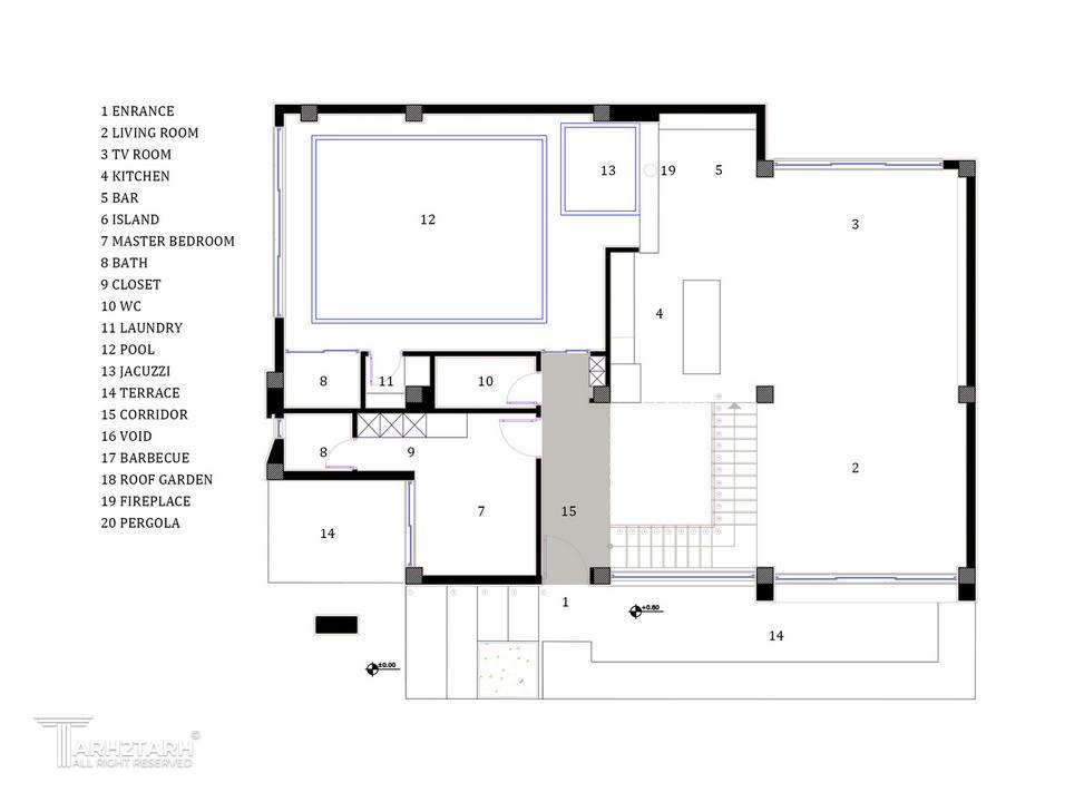
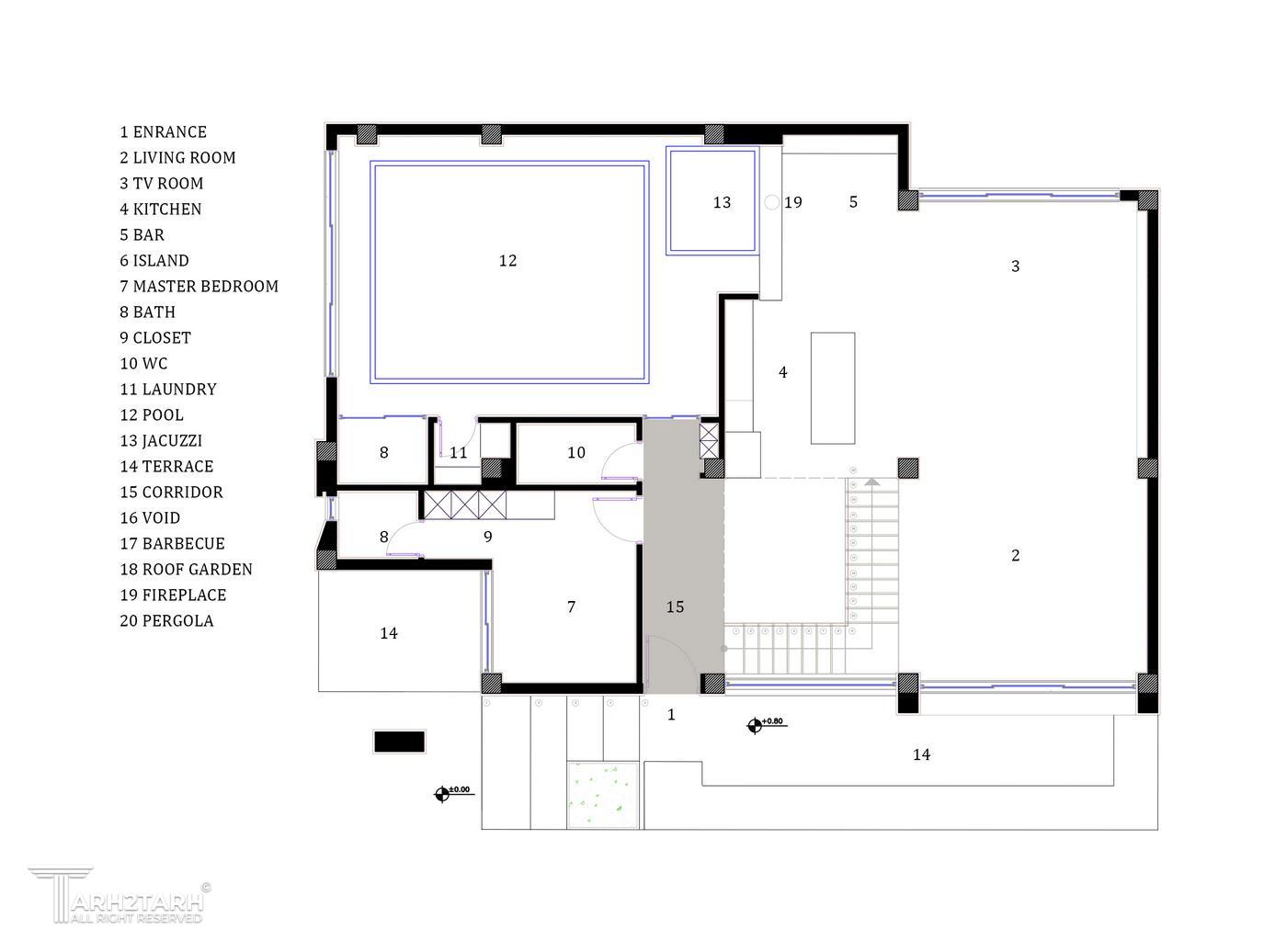
توضیحات پروژه

“این ویلای دوبلکس با شاهنشین و حیاط خصوصی، نمونه‌ای از طراحی مینیمال و شیک است که فرم و عملکرد را در هماهنگی کامل کنار هم قرار داده است. سادگی در متریال و هندسه، فضایی آرام و دعوت‌کننده خلق کرده که هر جزئیاتش با دقت طراحی شده است.”

موقعیت مکانی پروژه

نظرات
پیشنهاد و بازخورد