نفر اول مسابقه طراحی پلان و نما ویلا ساری

0

اطلاعات پروژه

BusyBee Architecture Room

نوع مسابقه: طراحی ویلا
سال انجام پروژه : 1399
نقش: طراح
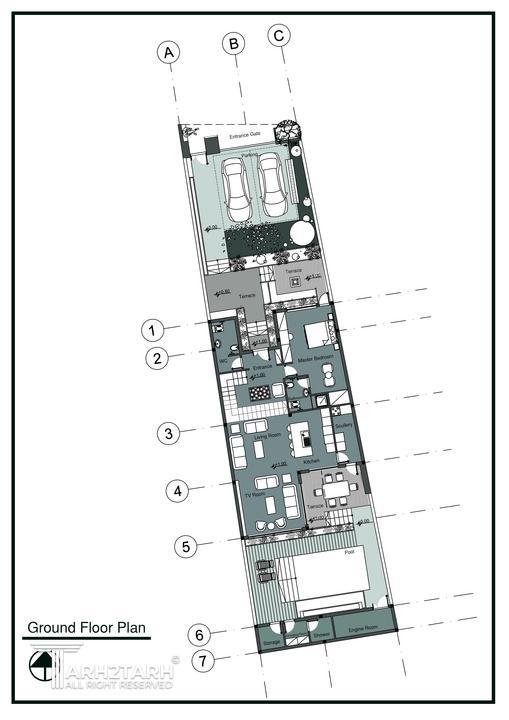
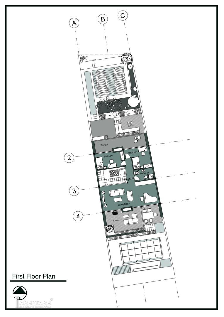
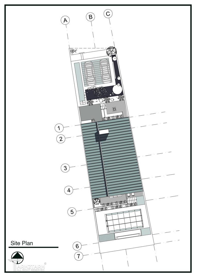
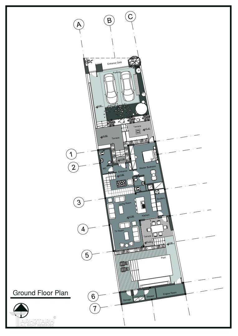
موقعیت : ساری
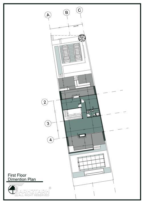
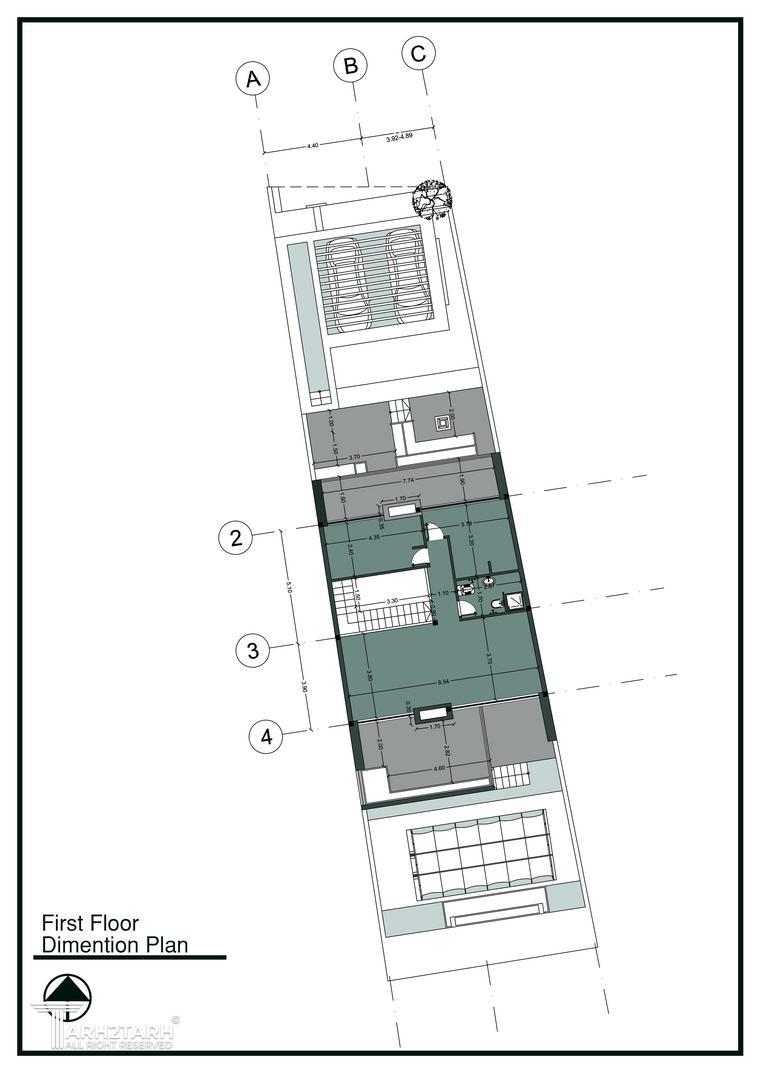
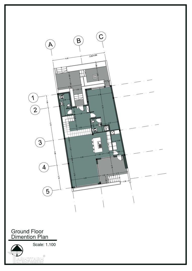
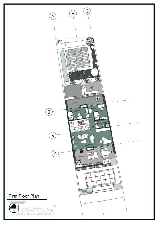
متراژ زیربنا : 307
مساحت زمین : 350
کارفرما : جاجیمی

موقعیت مکانی پروژه

پیشنهاد و بازخورد