مسابقه طراحی پلان و نما ویلا ساری

0

اطلاعات پروژه

fatemeh razipour

نوع مسابقه: طراحی ویلا
سال انجام پروژه : 1399
نقش: طراح
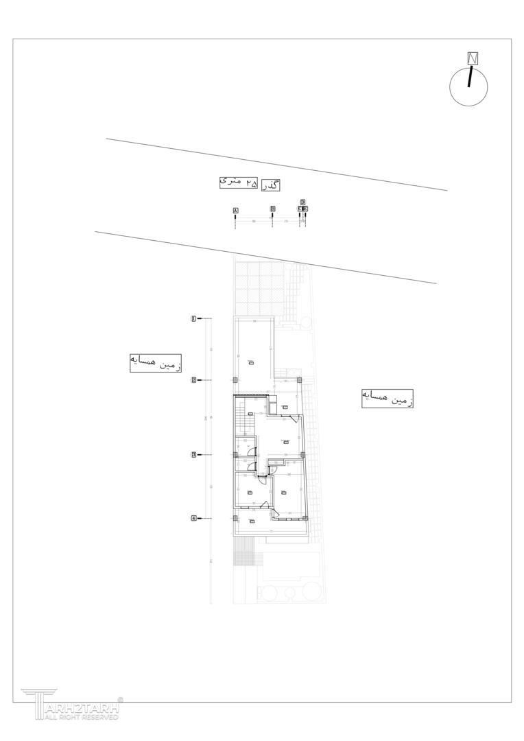
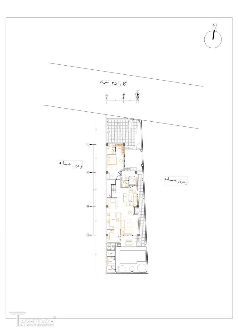
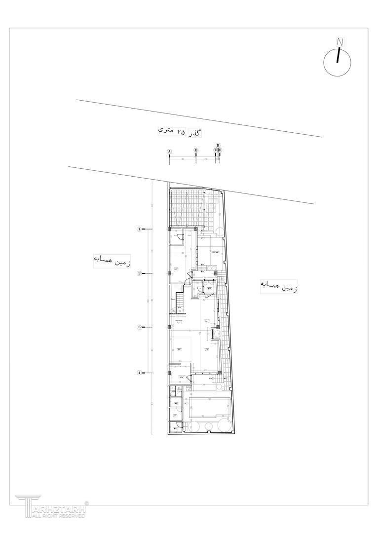
موقعیت : ساری
متراژ زیربنا : 307
مساحت زمین : 350
کارفرما : جاجیمی

موقعیت مکانی پروژه

پیشنهاد و بازخورد