مسابقه طراحی پلان و نما الهیه رِی

0

اطلاعات پروژه

Black box

نوع مسابقه: طراحی مسکونی
سال انجام پروژه : 1400
نقش: طراح
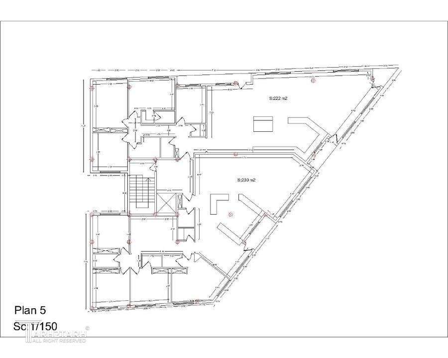
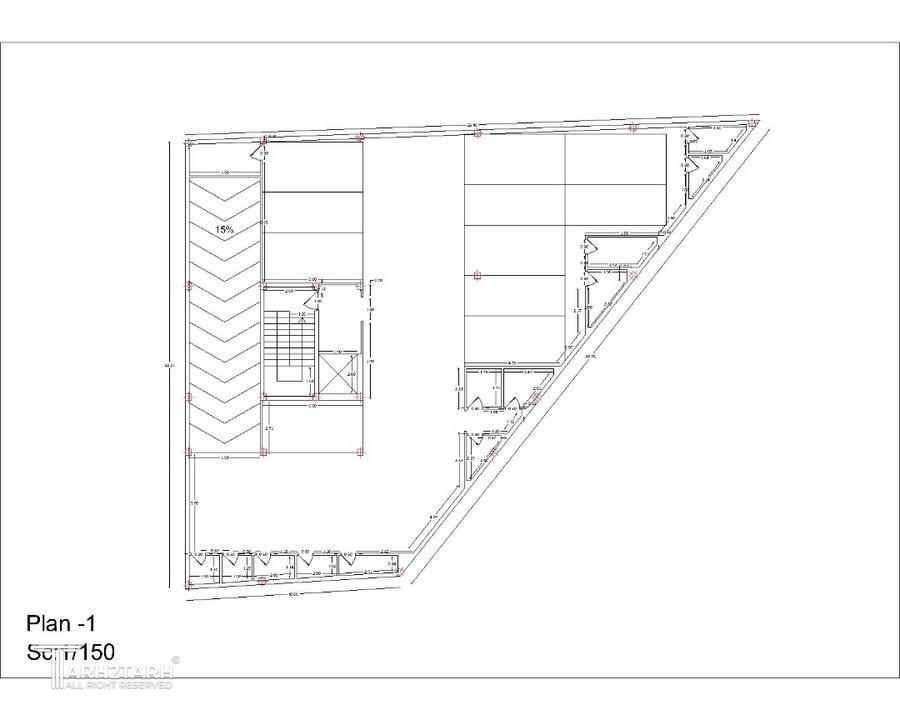
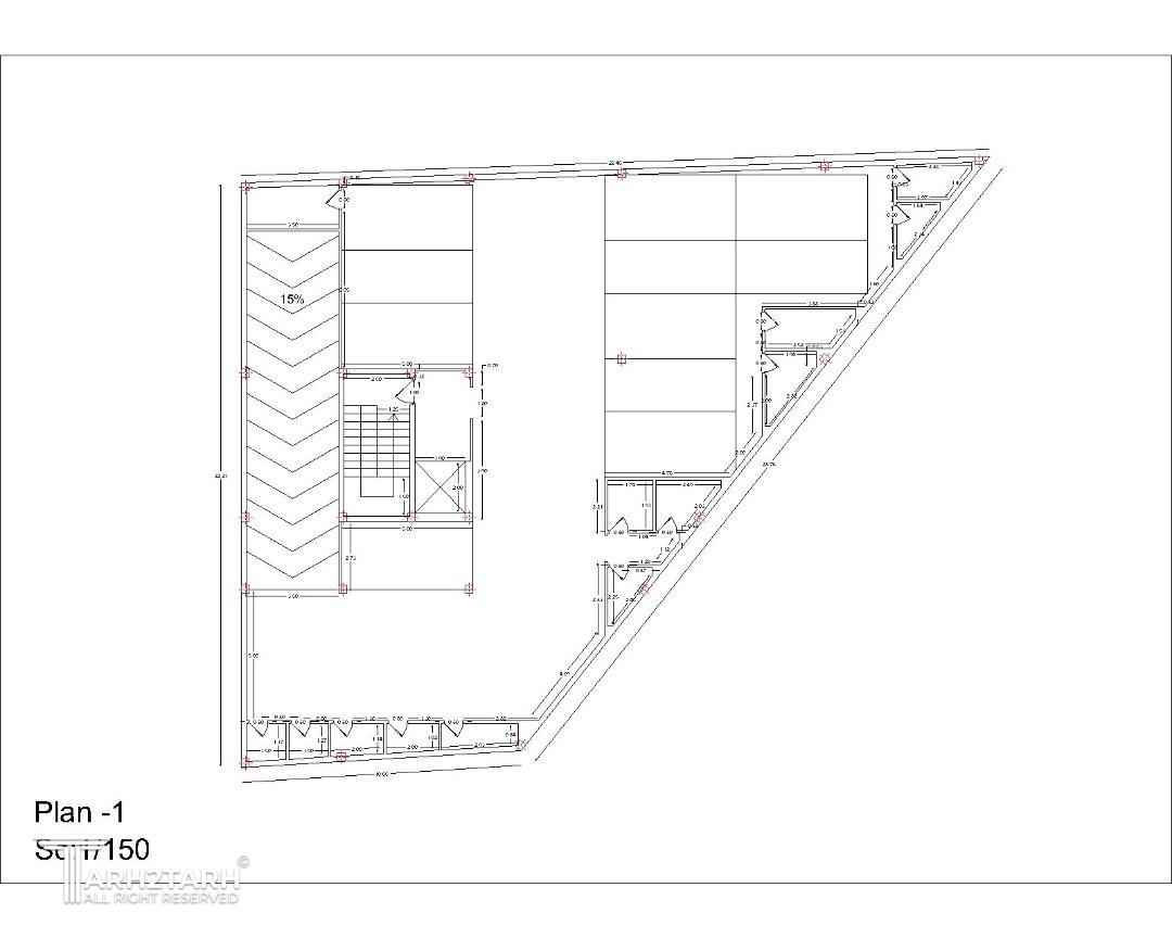
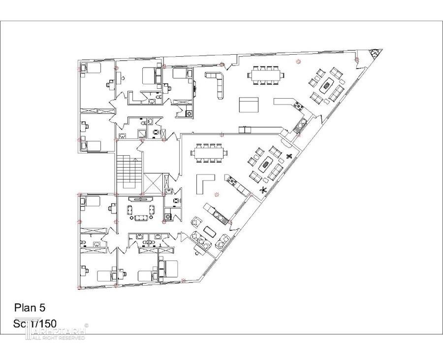
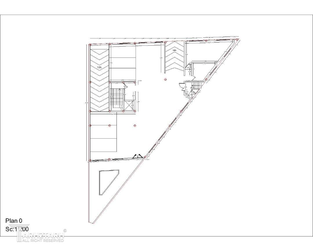
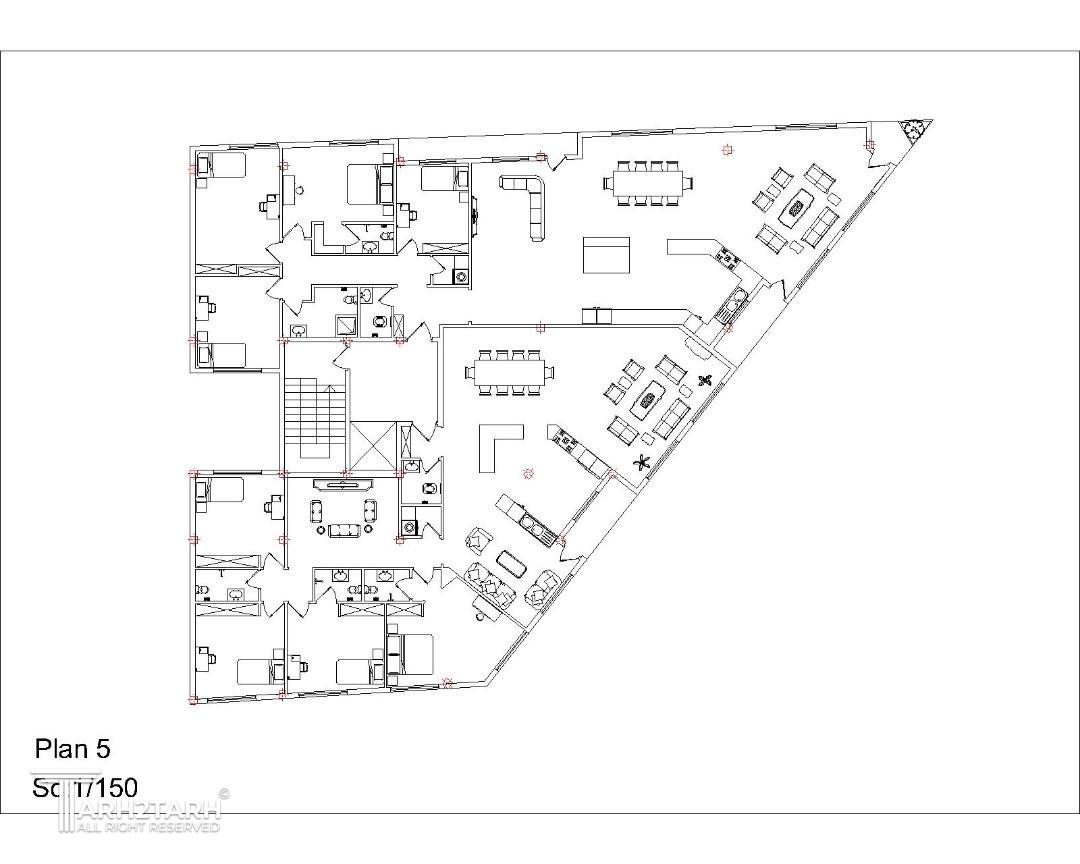
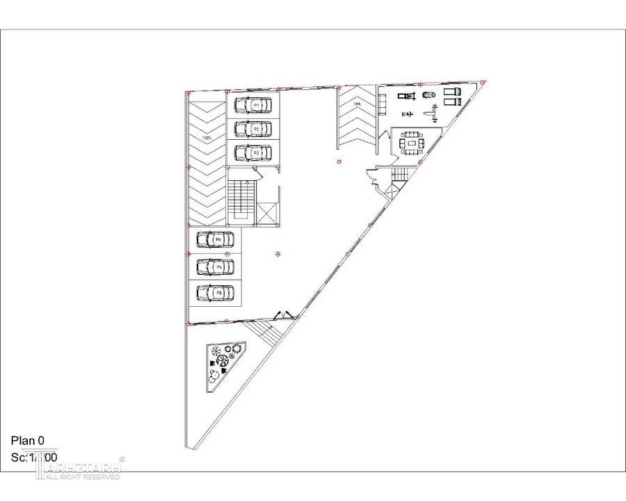
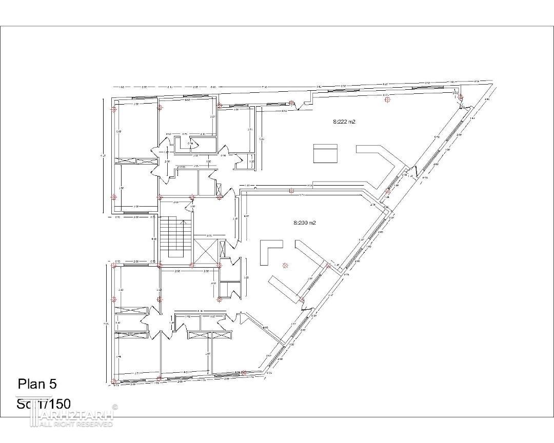
موقعیت : تهران
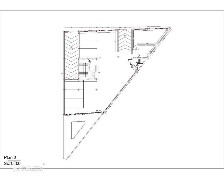
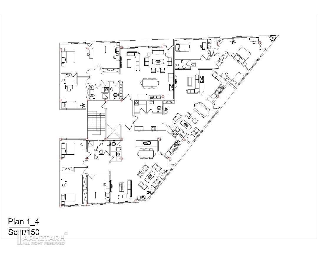
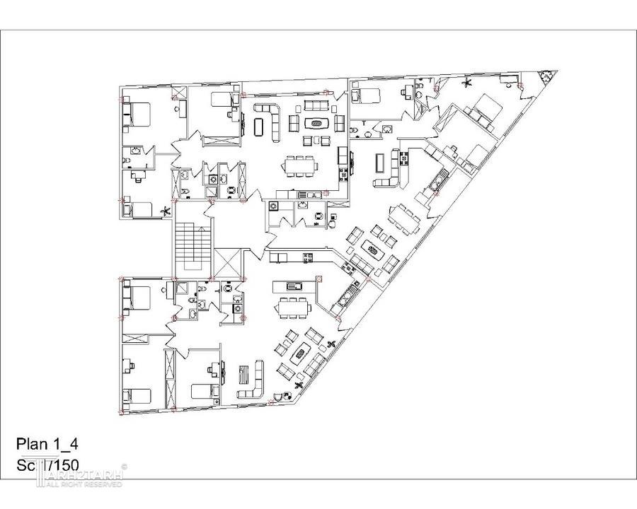
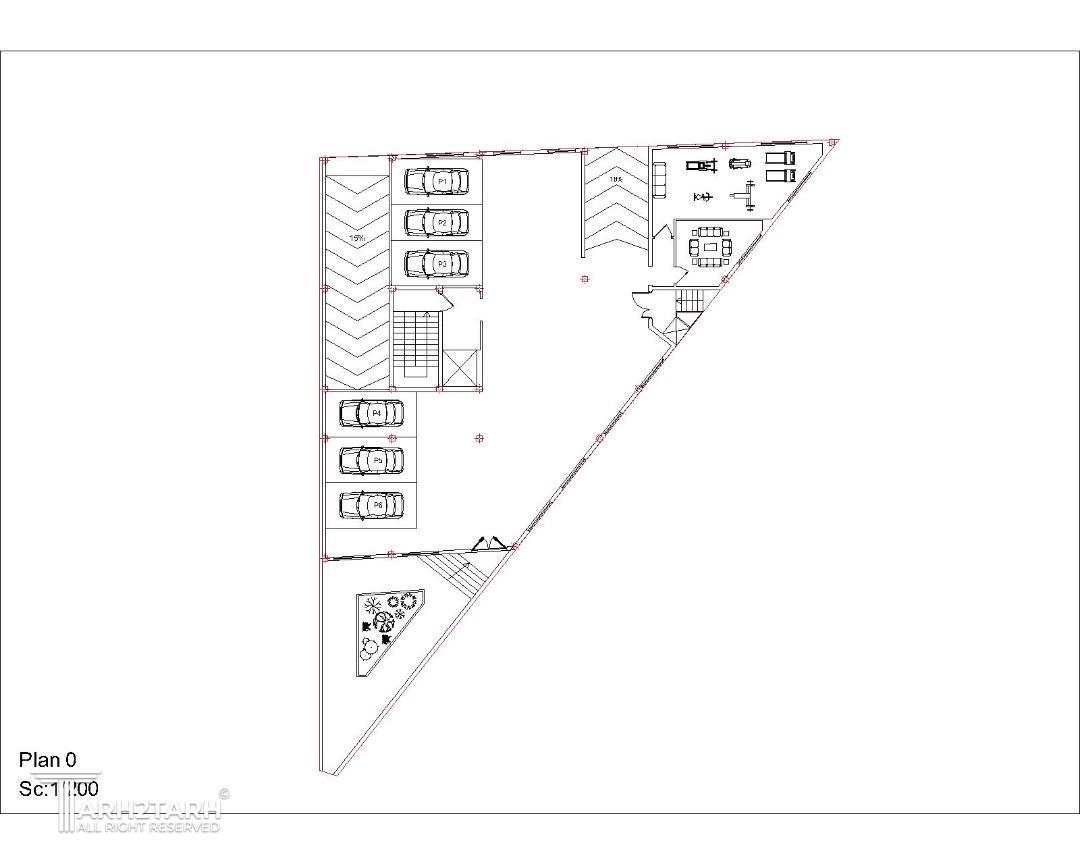
متراژ زیربنا : 3300
مساحت زمین : 504
کارفرما : علیرضا شیری

موقعیت مکانی پروژه

پیشنهاد و بازخورد