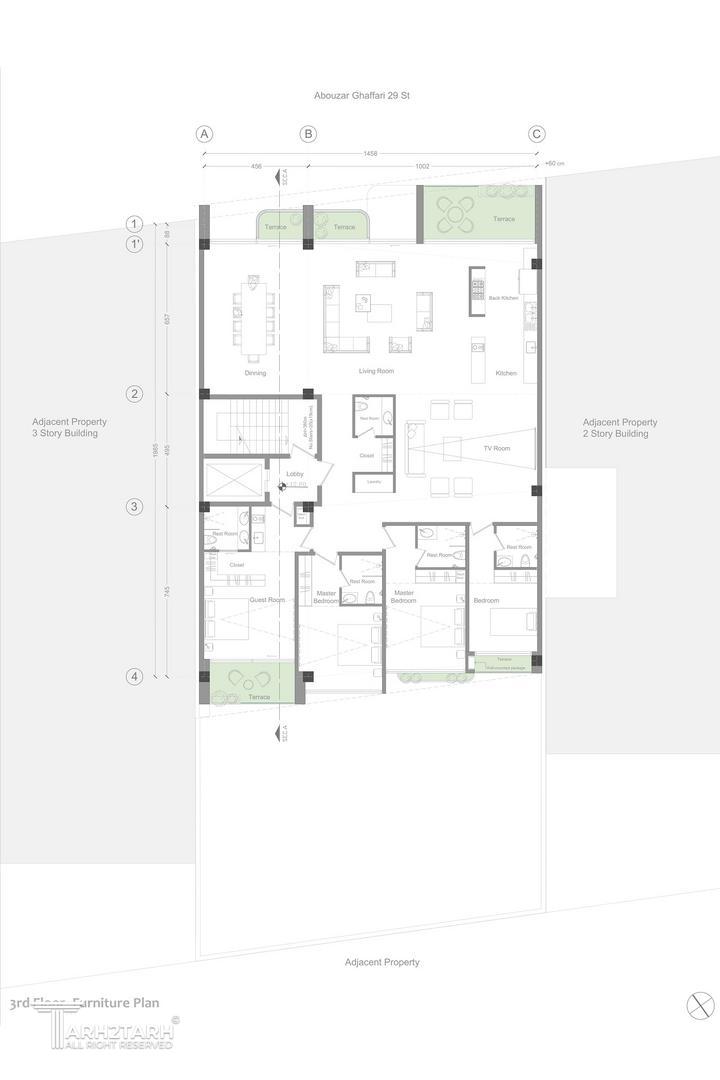
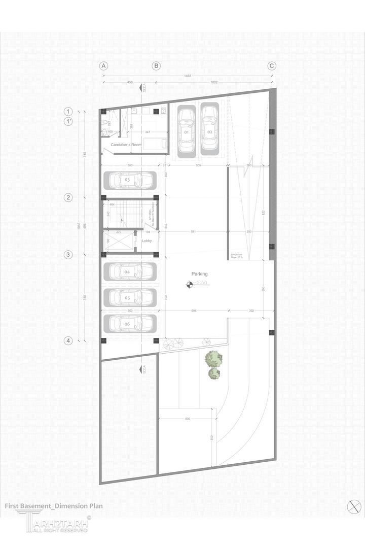
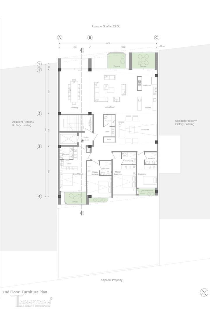
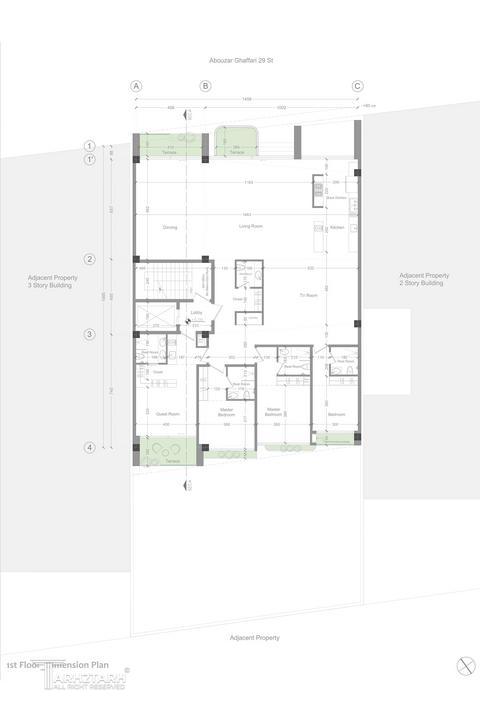
اطلاعات پروژه
انگار
نوع مسابقه:
طراحی مسکونی
سال انجام پروژه :
1404
نقش:
طراح
مسابقه:
طراحی ساختمان مسکونی اریکا 2
موقعیت :
مشهد
متراژ زیربنا :
2800
مساحت زمین :
499
کارفرما :
سعید هاشم زاده
خدمات ارائه شده توسط طراح
خدمات طراحی و کانسپت
طراحی منظر، فضای سبز، لنداسکیپ، روف گاردن و محوطه
طراحی نورپردازی
طراحی کانسپت (معماری)
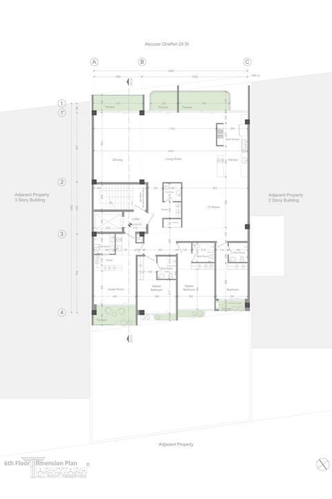
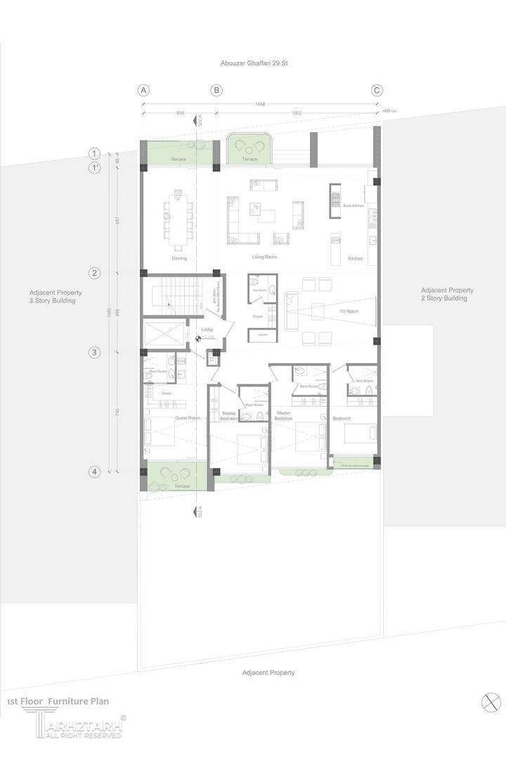
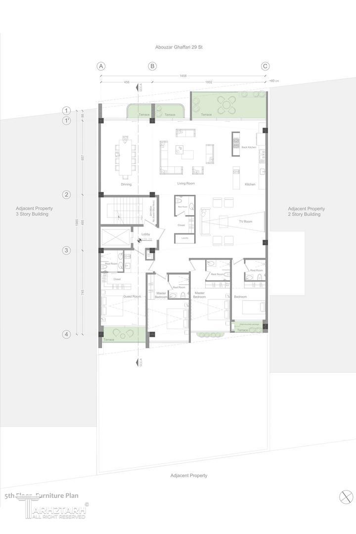
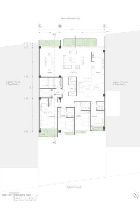
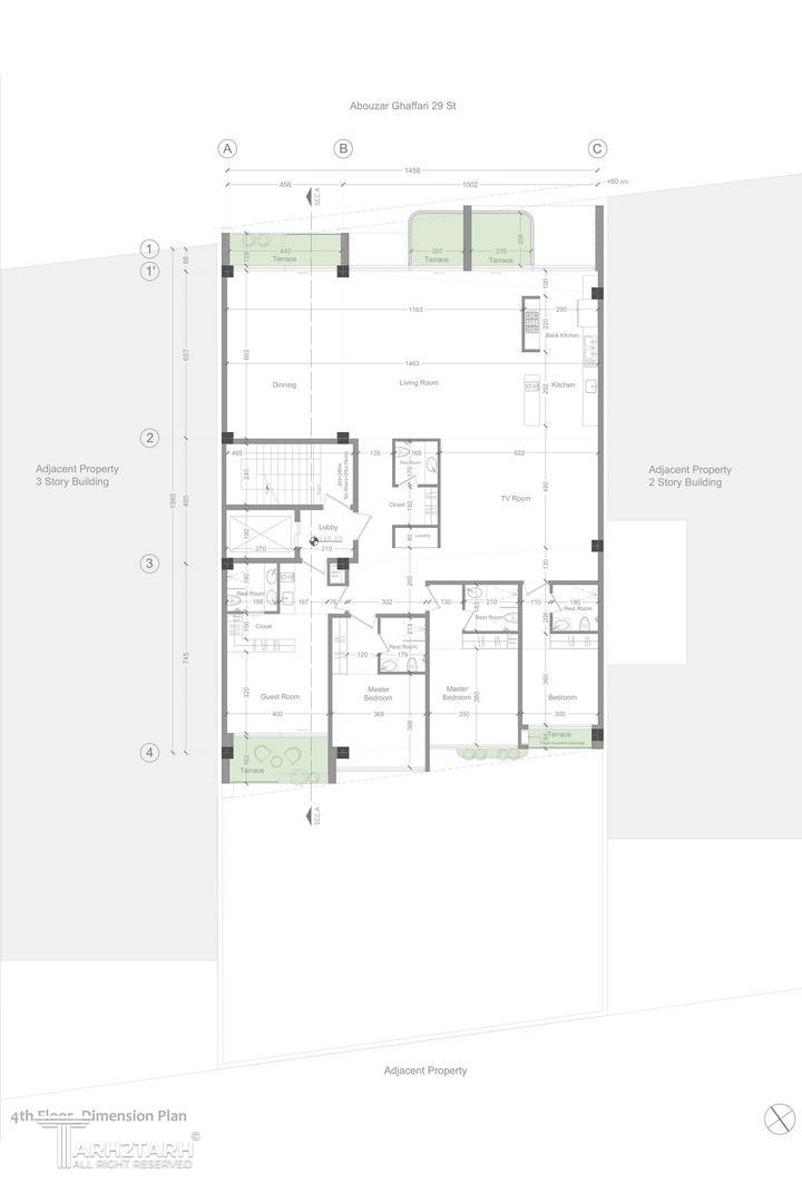
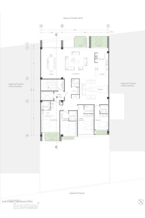
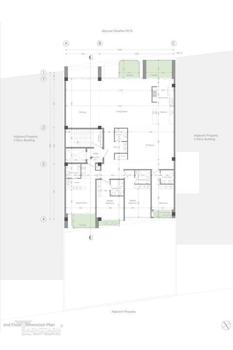
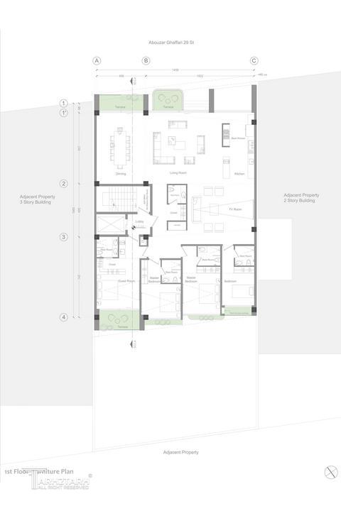
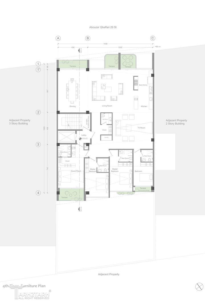
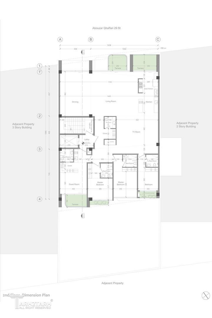
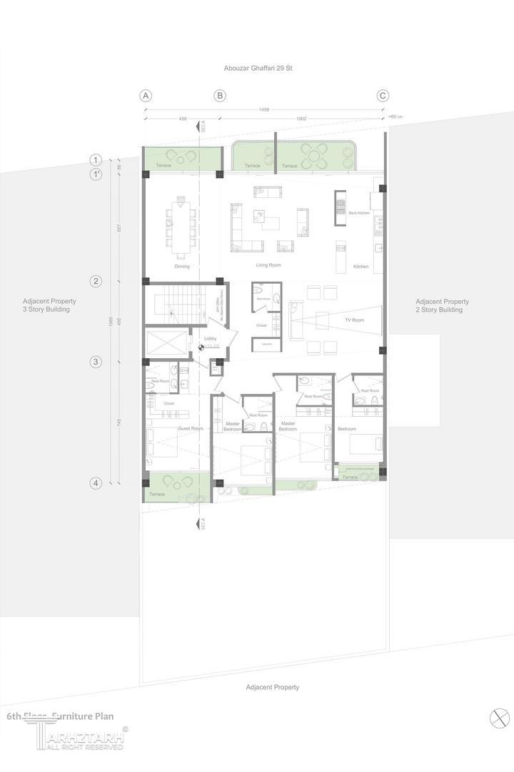
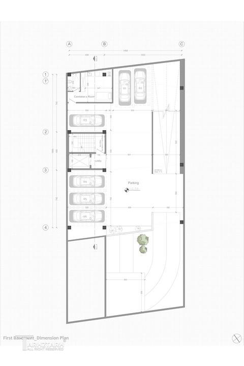
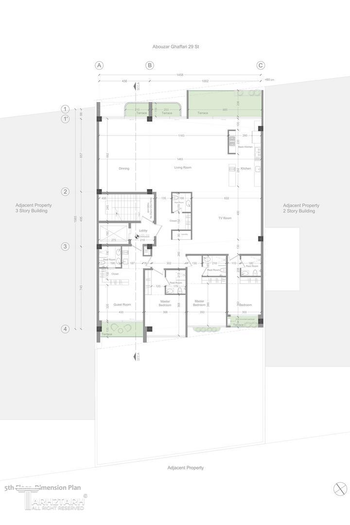
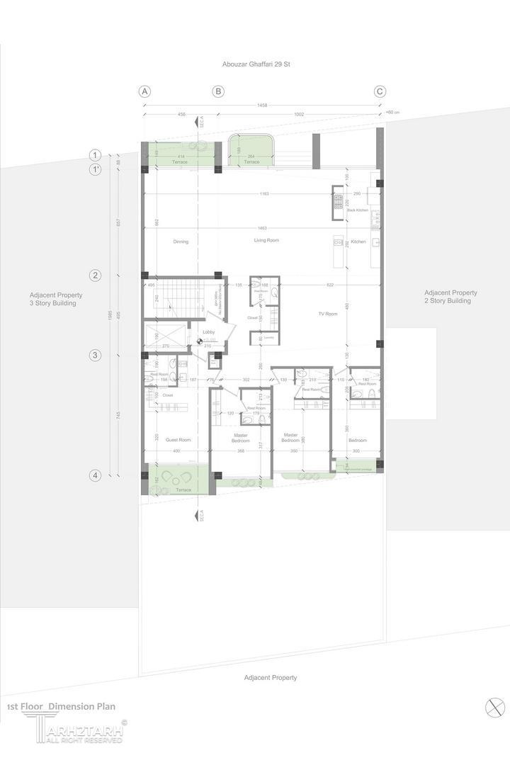
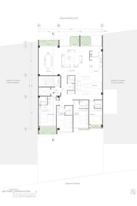
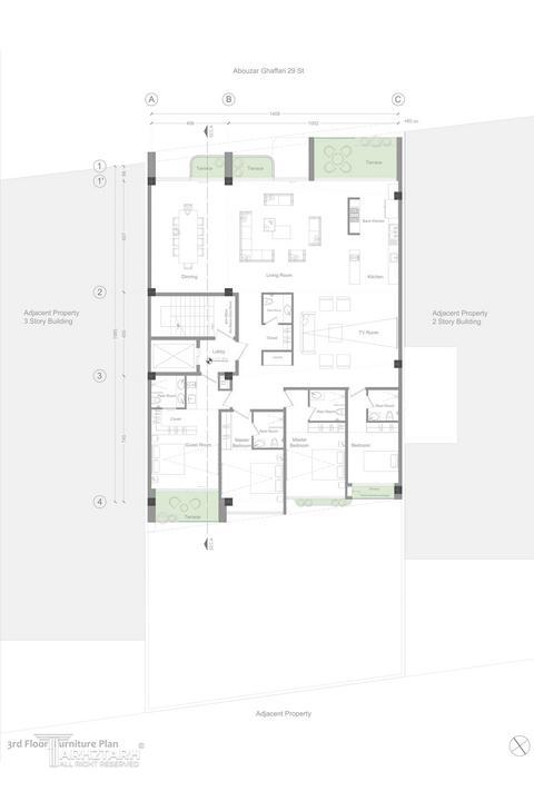
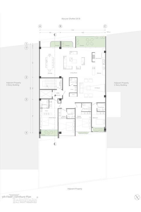
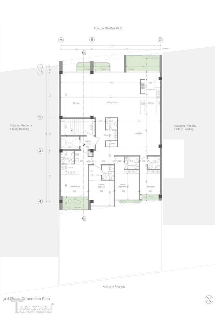
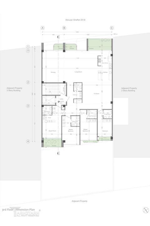
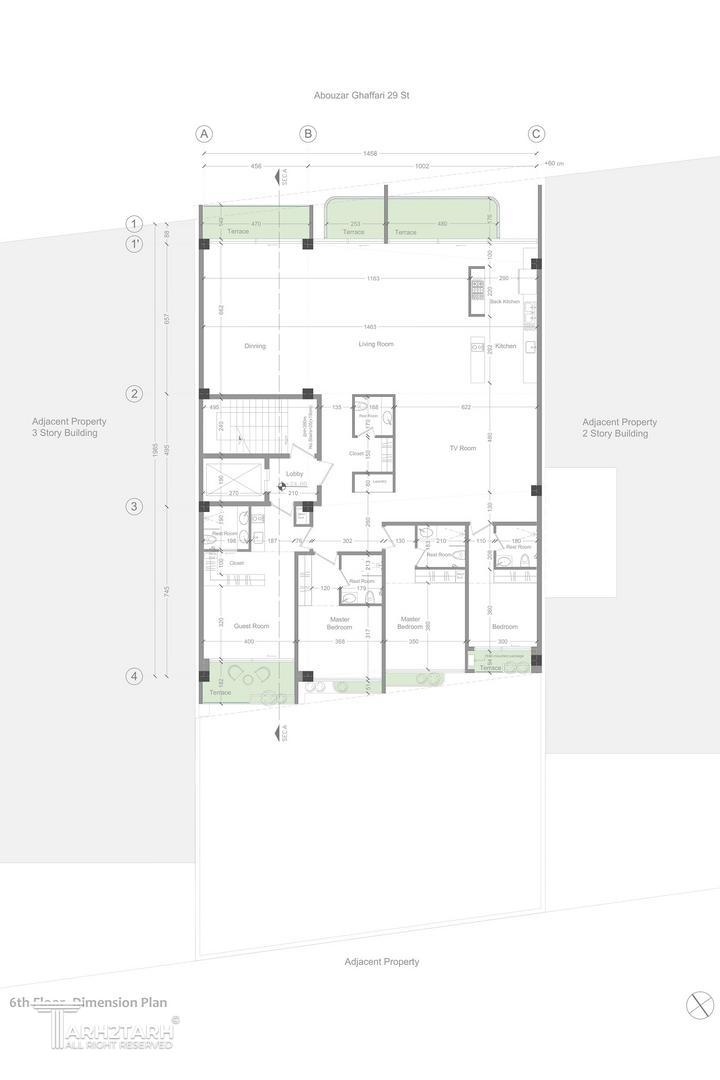
طراحی پلان (نقشه معماری) فاز 1
طراحی نما
موقعیت مکانی پروژه
برای ثبت کامنت ابتدا وارد سایت شوید.
سعید هاشم زاده
از نظر من نما بسیار زیبا طراحی شده بود
چیدمان پارکینگ و تعداد پارکینگ هم خوب طراحی شده بود
و پلان قابل قبول بود.
8 ماه پیش