نفر دوم مسابقه طراحی ساختمان مسکونی اریکا 2

2

اطلاعات پروژه

ARMINARMANSTUDIO

نوع مسابقه: طراحی مسکونی
سال انجام پروژه : 1404
نقش: طراح
موقعیت : مشهد
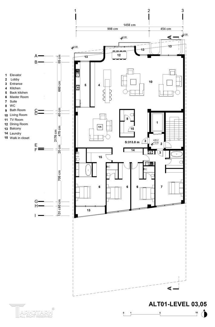
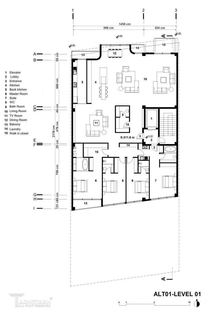
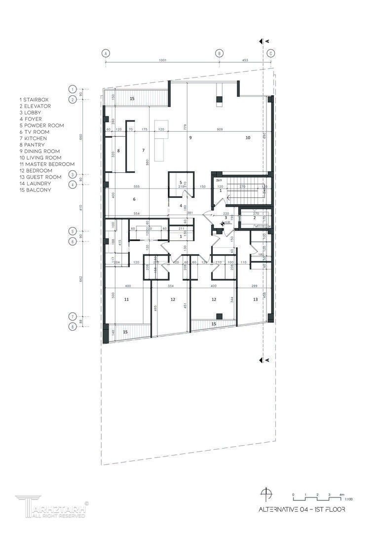
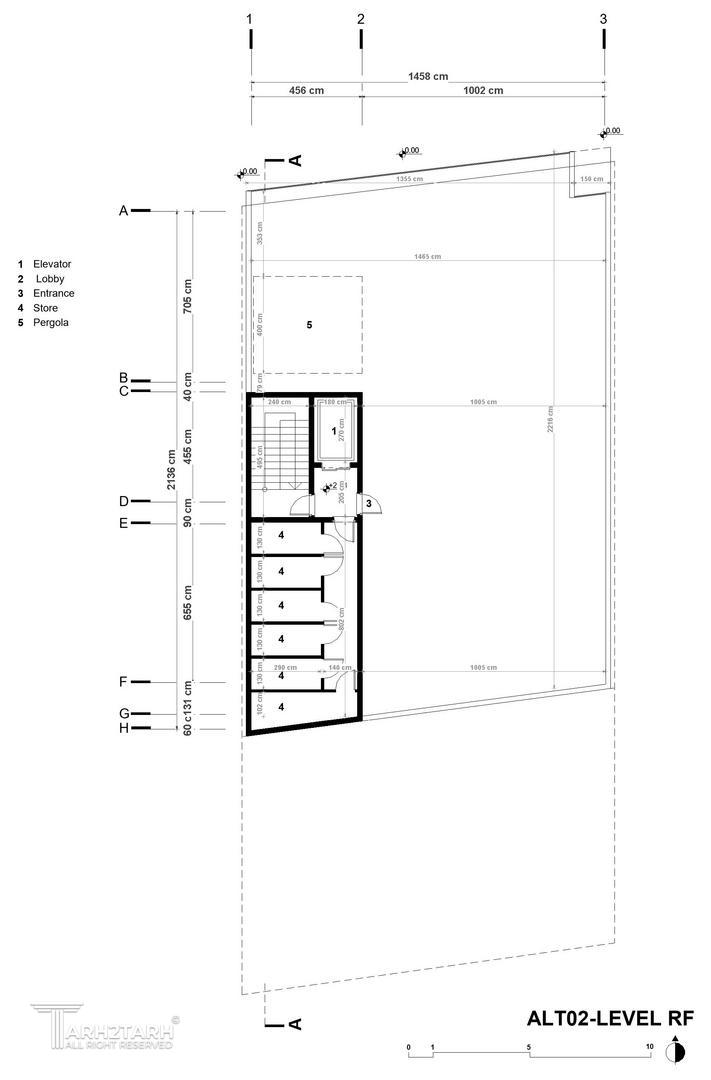
متراژ زیربنا : 2800
مساحت زمین : 499
کارفرما : سعید هاشم‌زاده

خدمات ارائه شده توسط طراح

خدمات طراحی و کانسپت
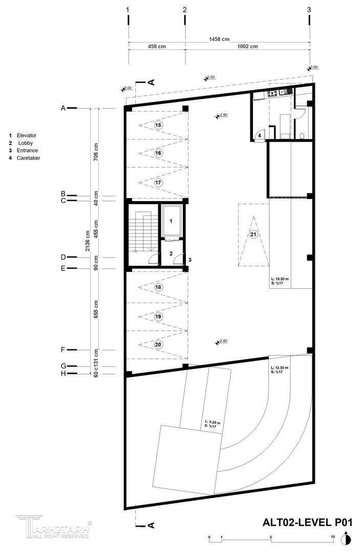
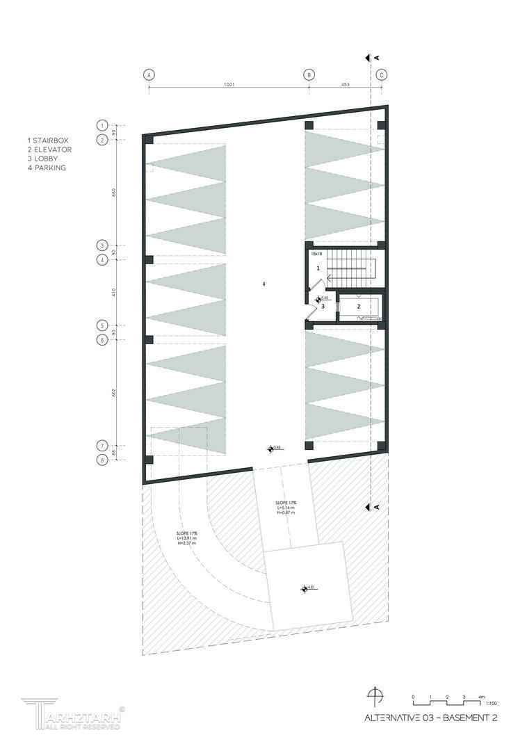
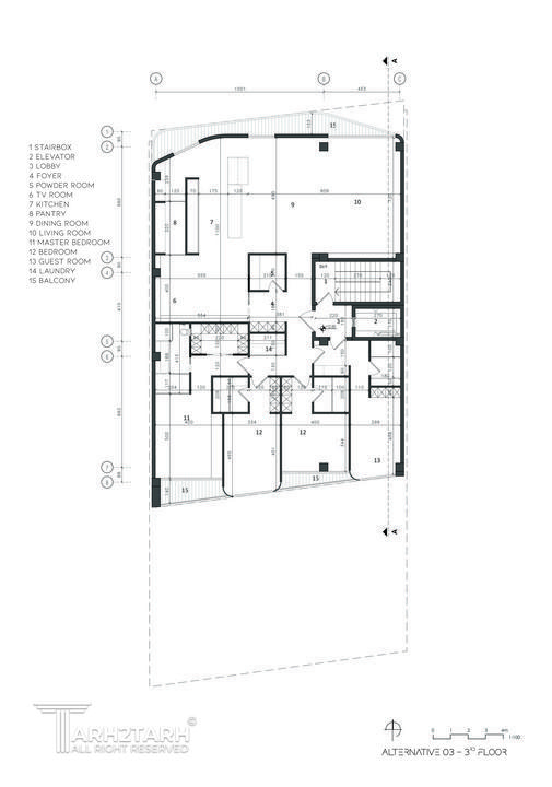
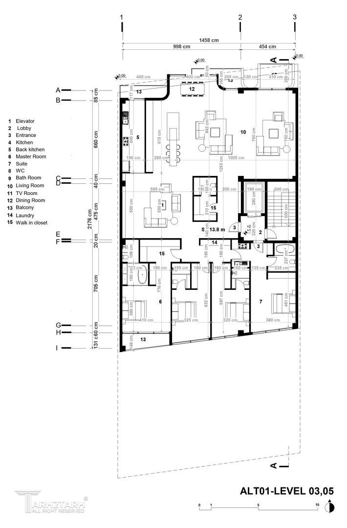
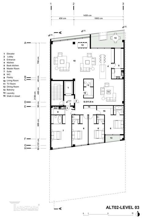
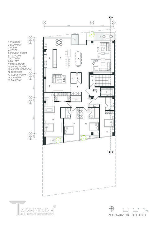
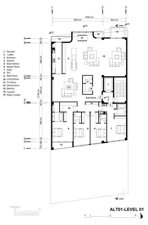
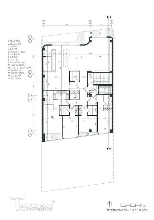
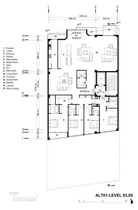
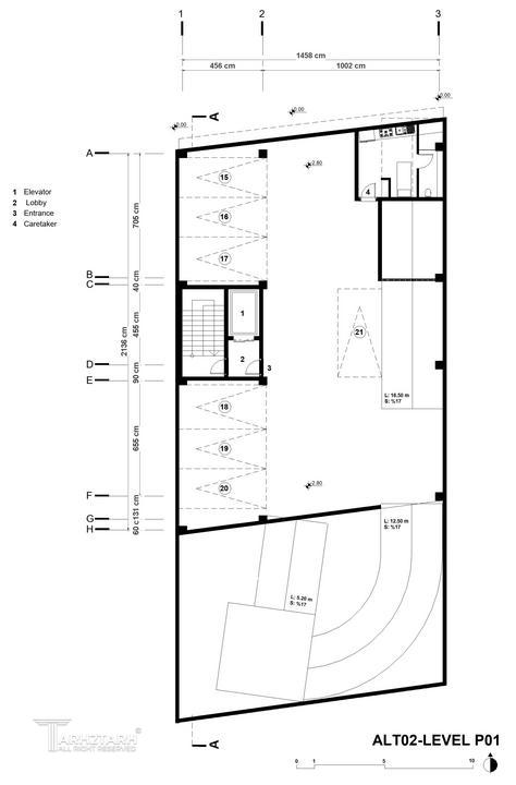
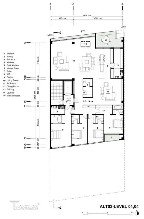
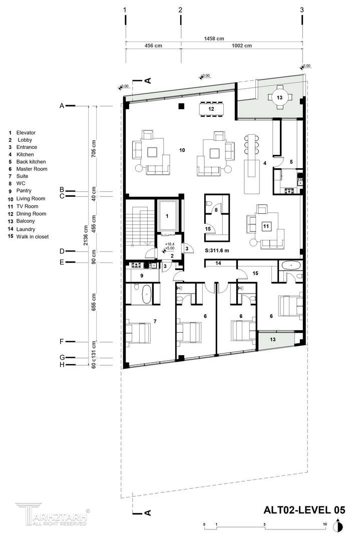
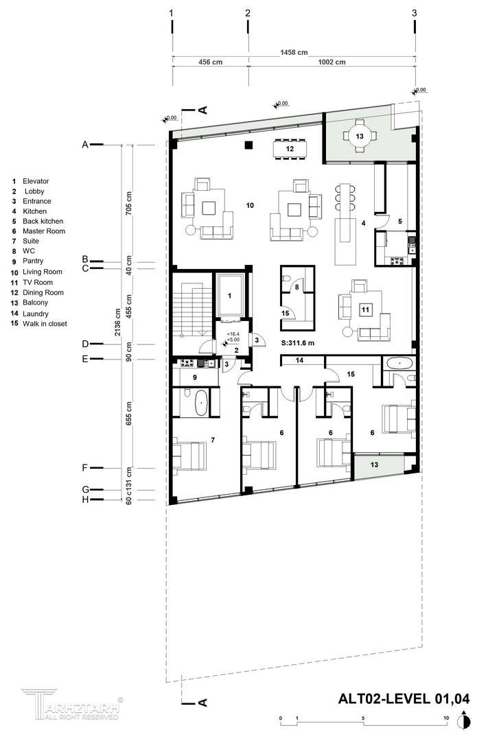
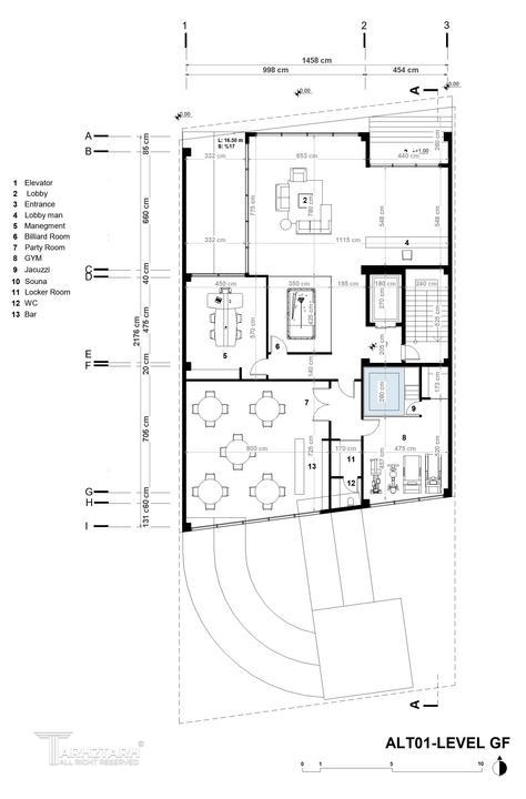
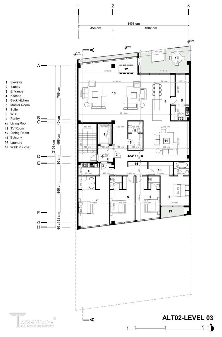
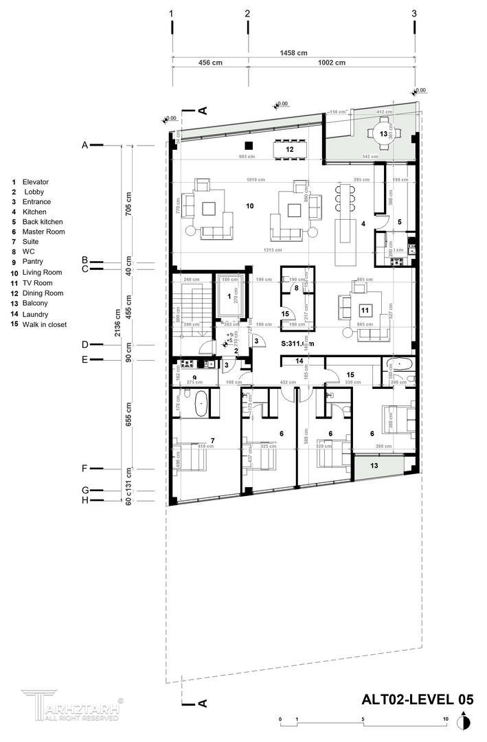
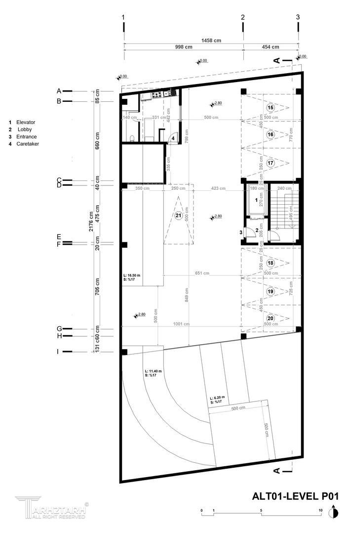
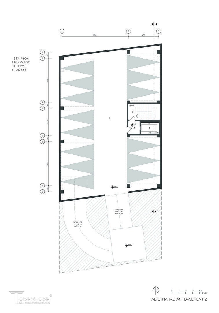
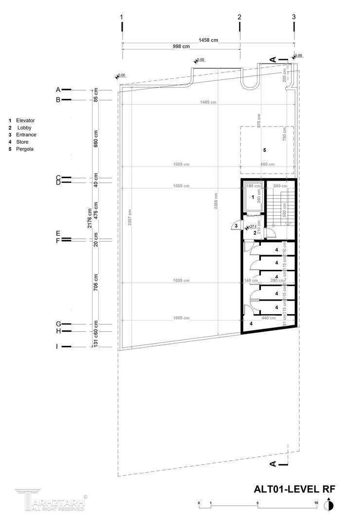
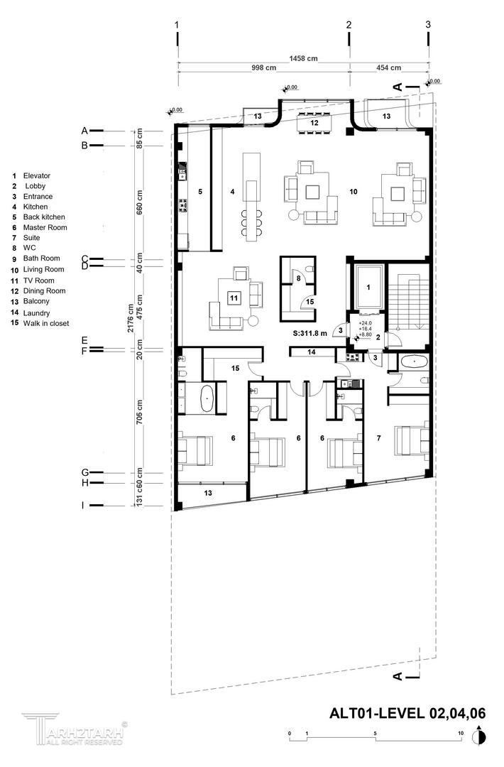
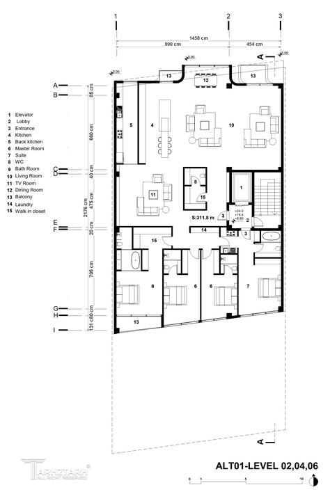
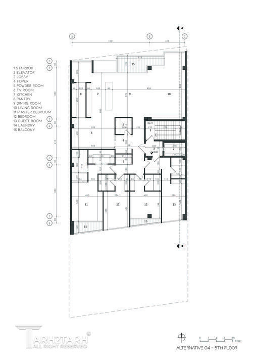
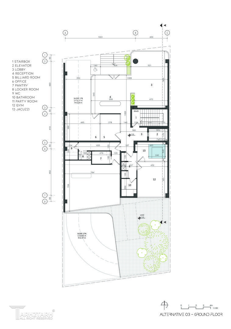
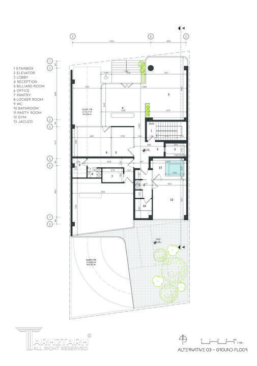
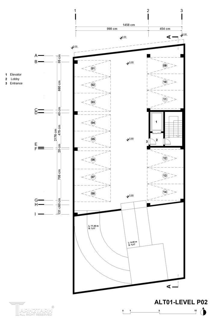
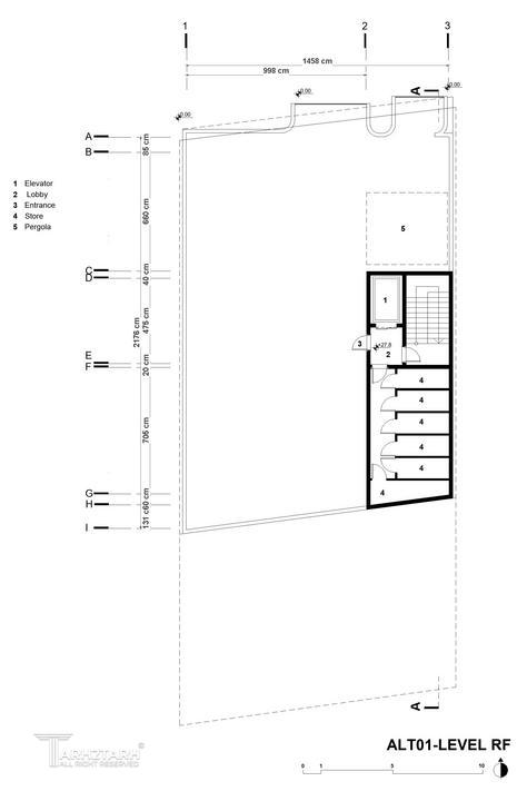
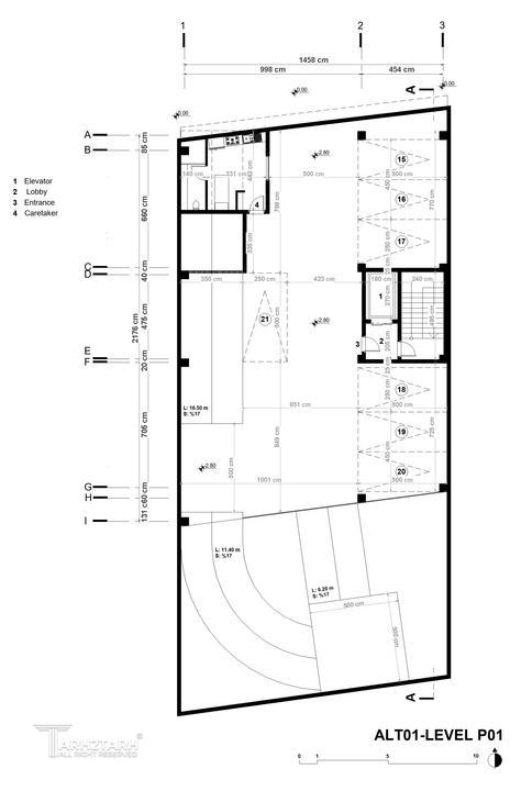
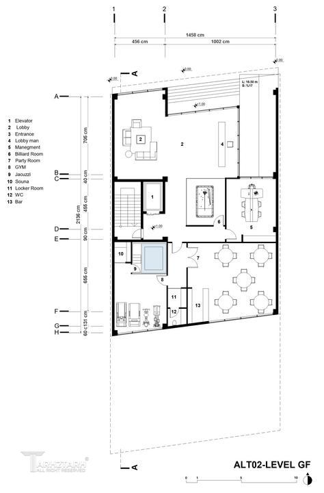
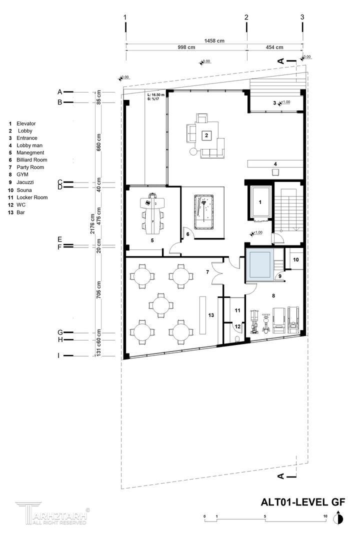
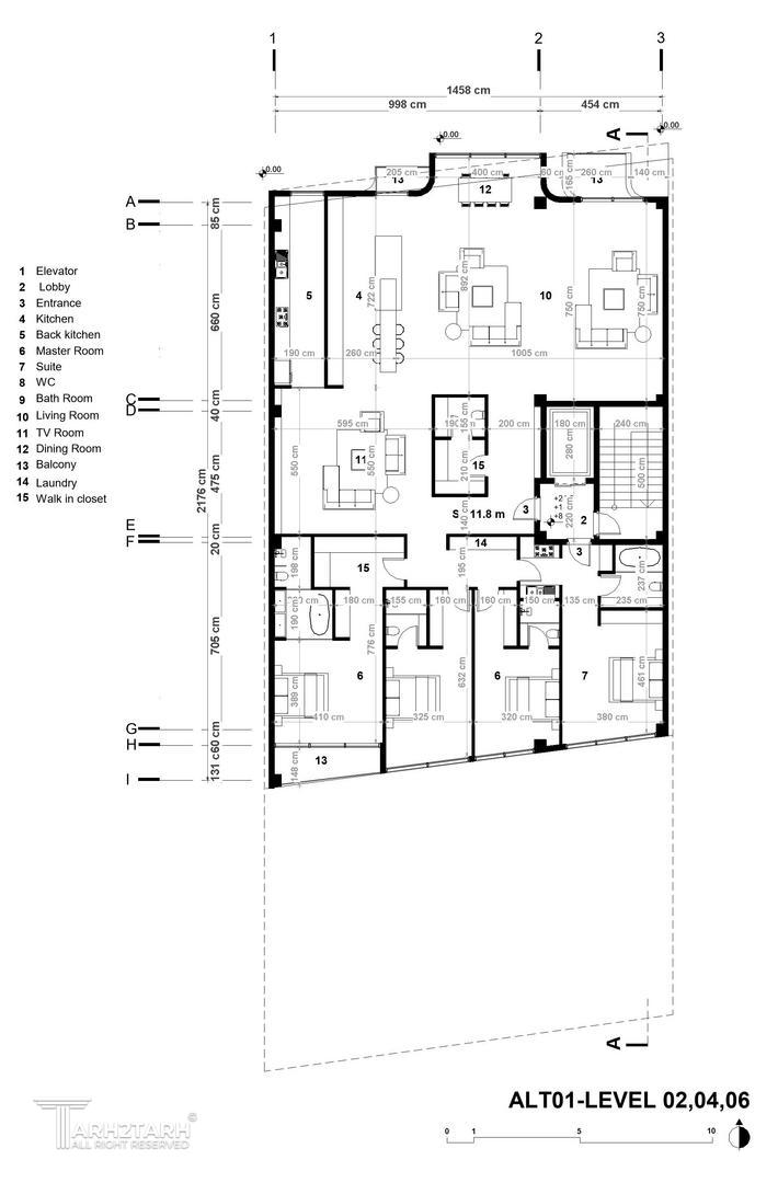
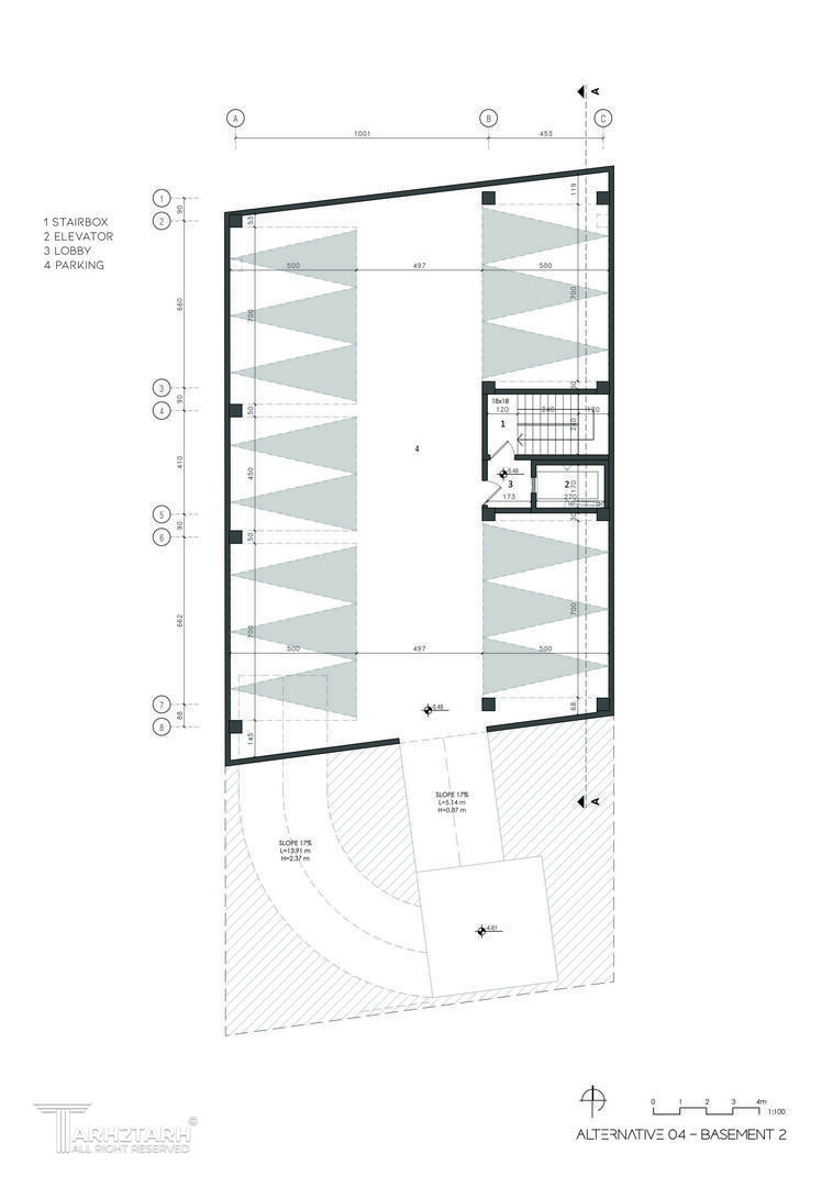
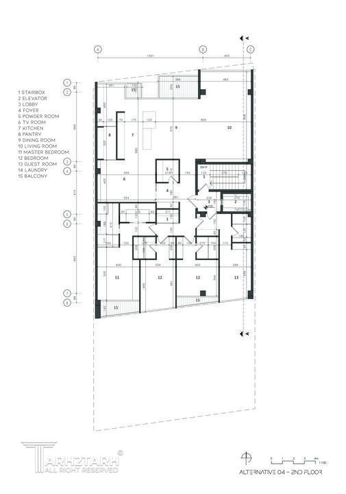
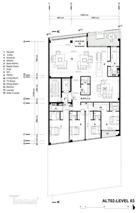
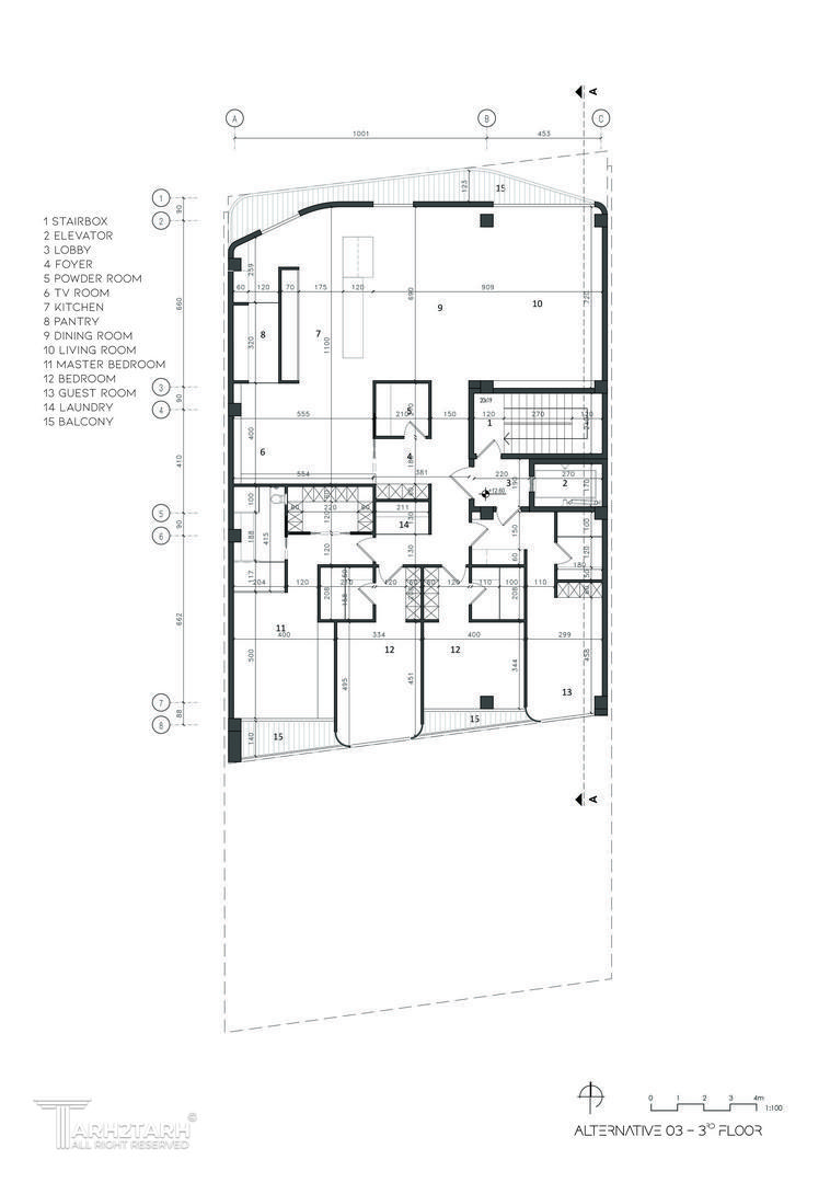
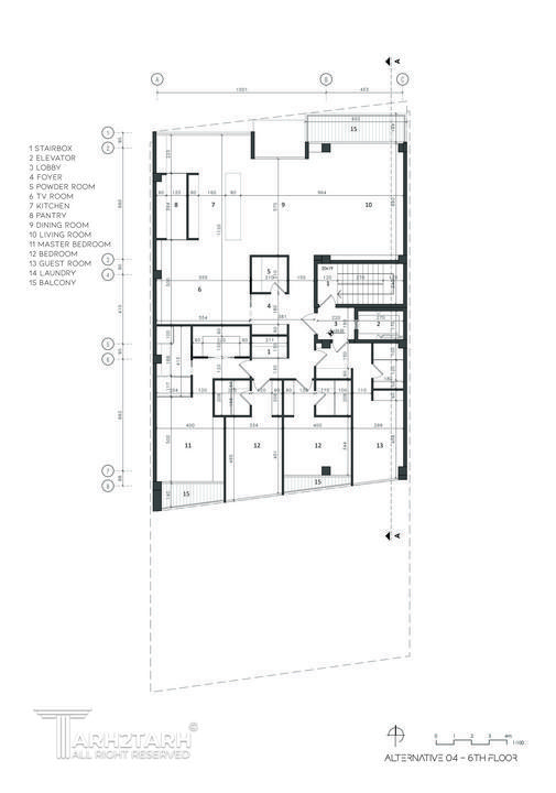
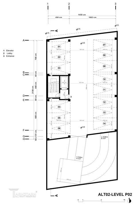
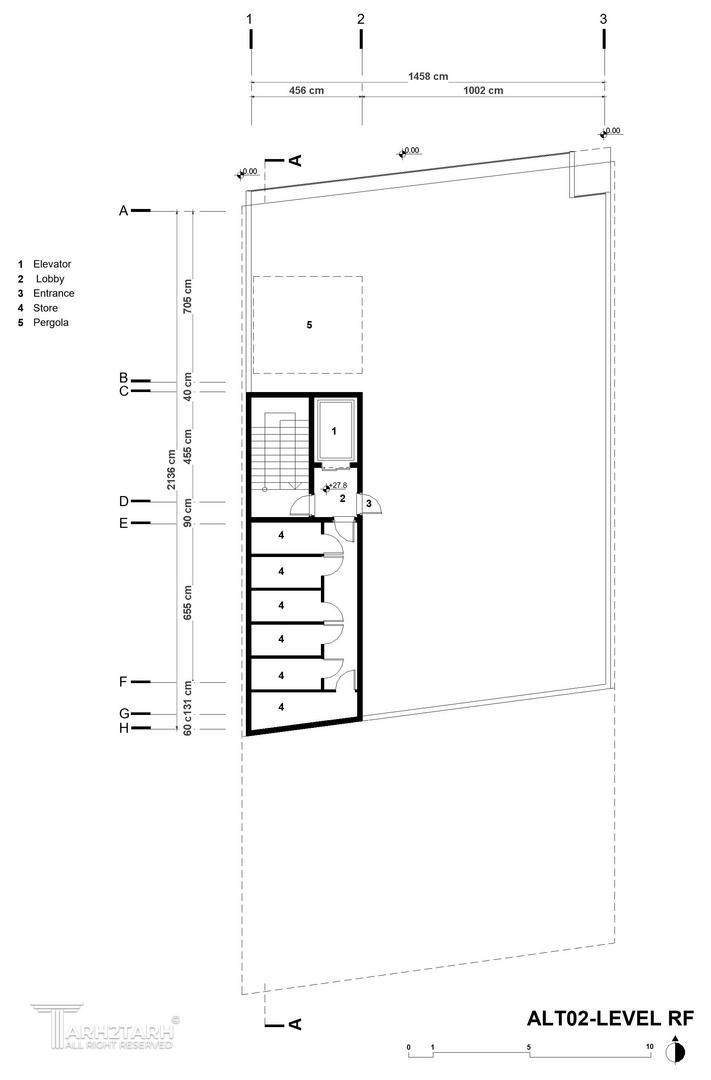
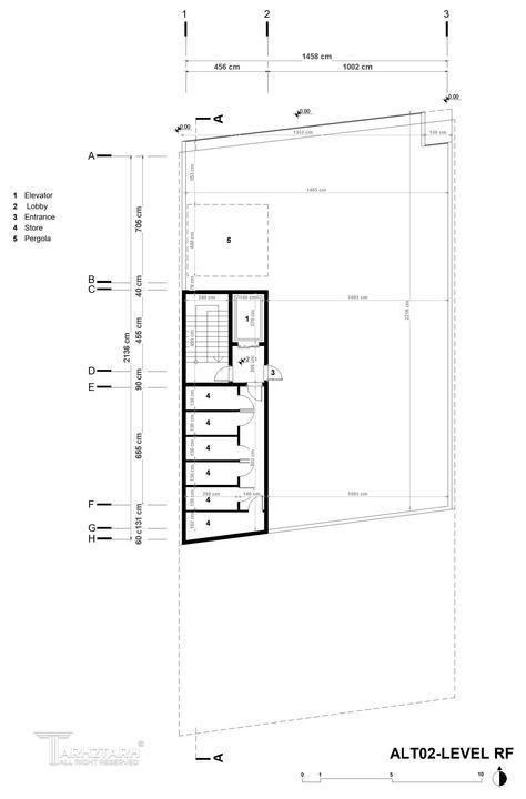
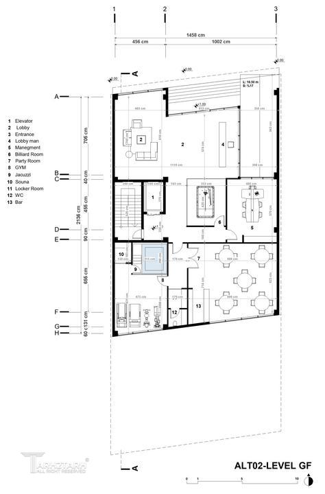
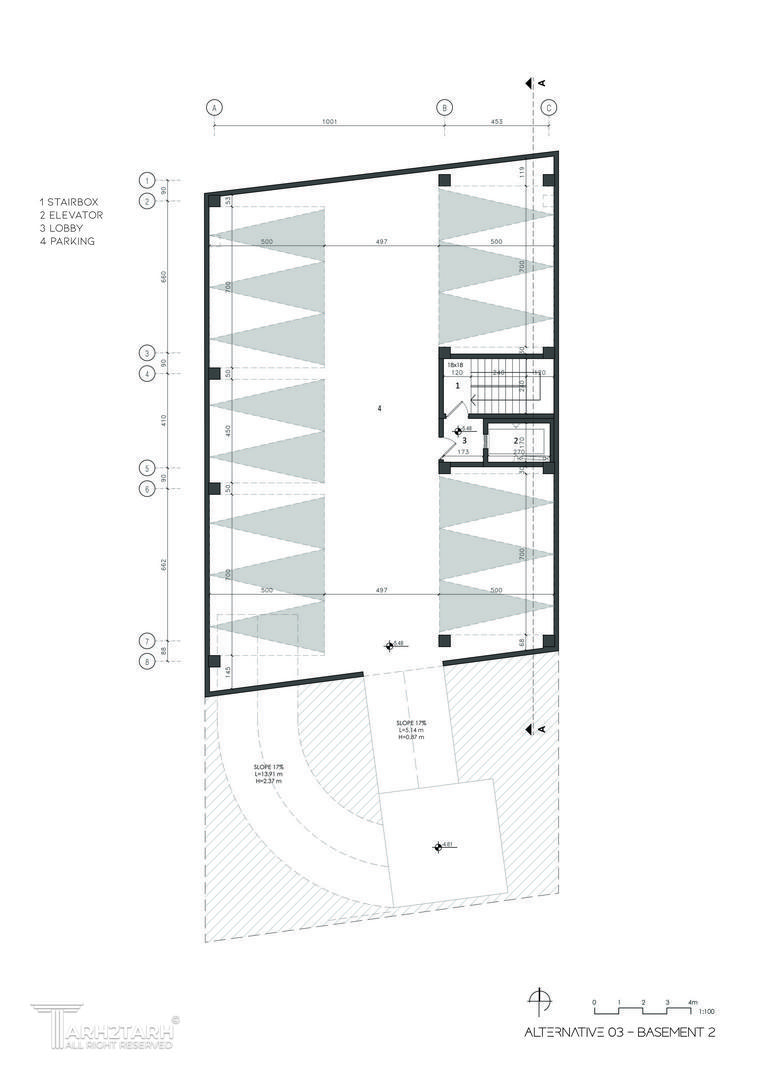
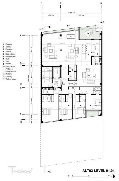
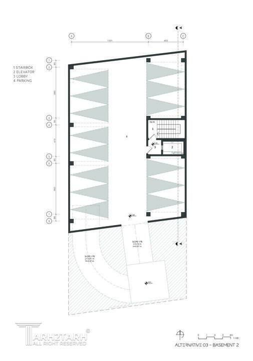
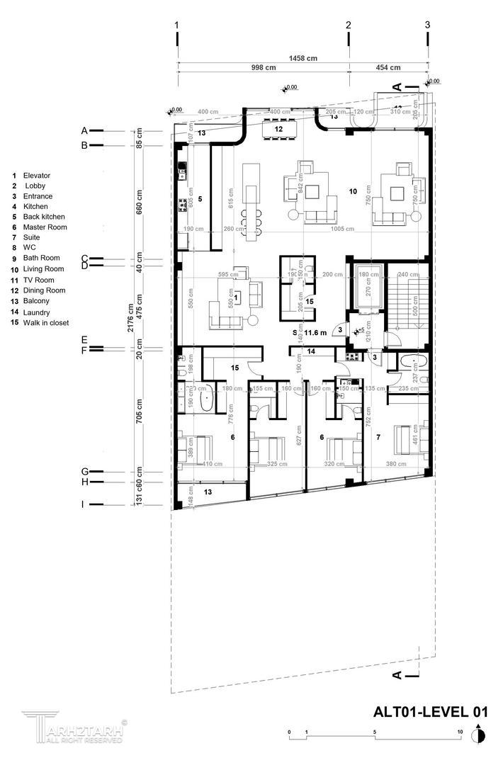
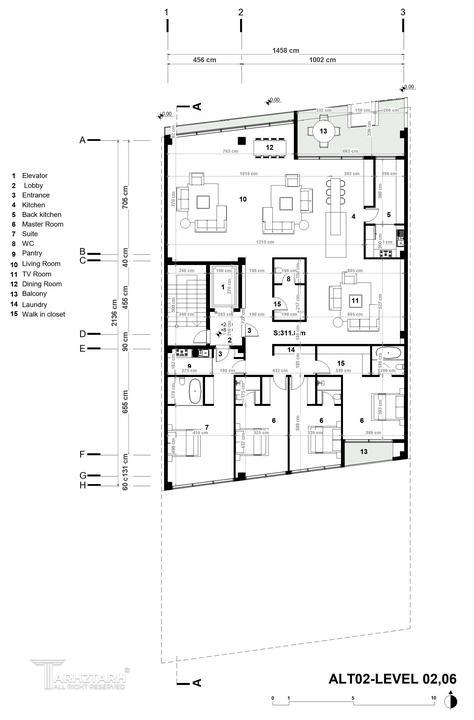
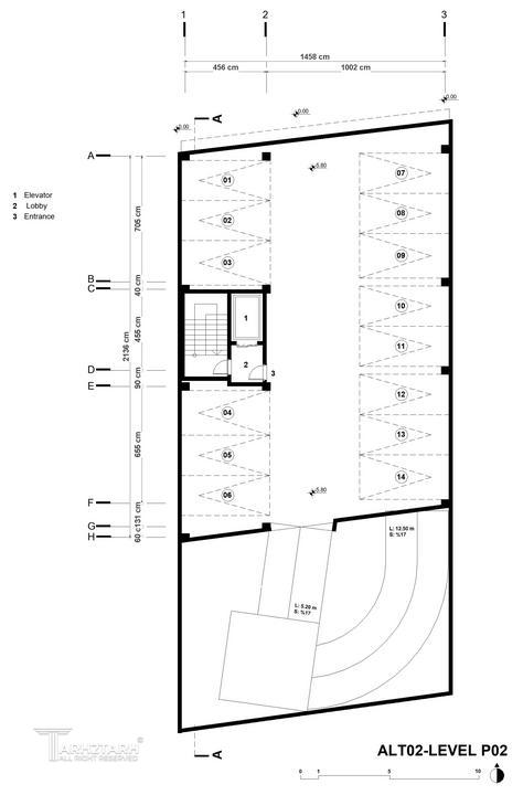
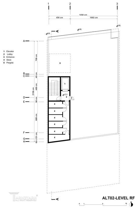
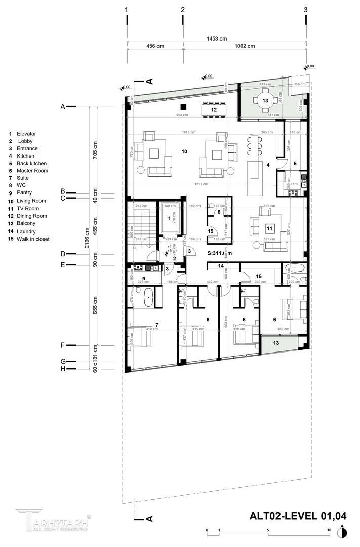
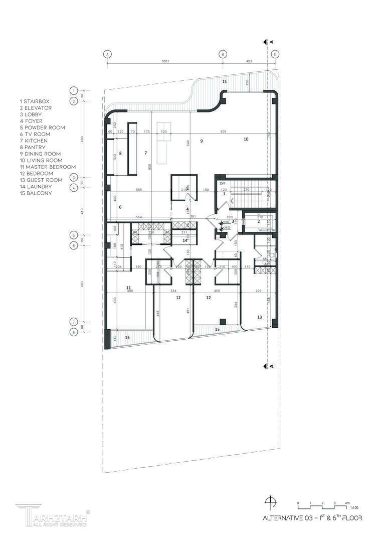
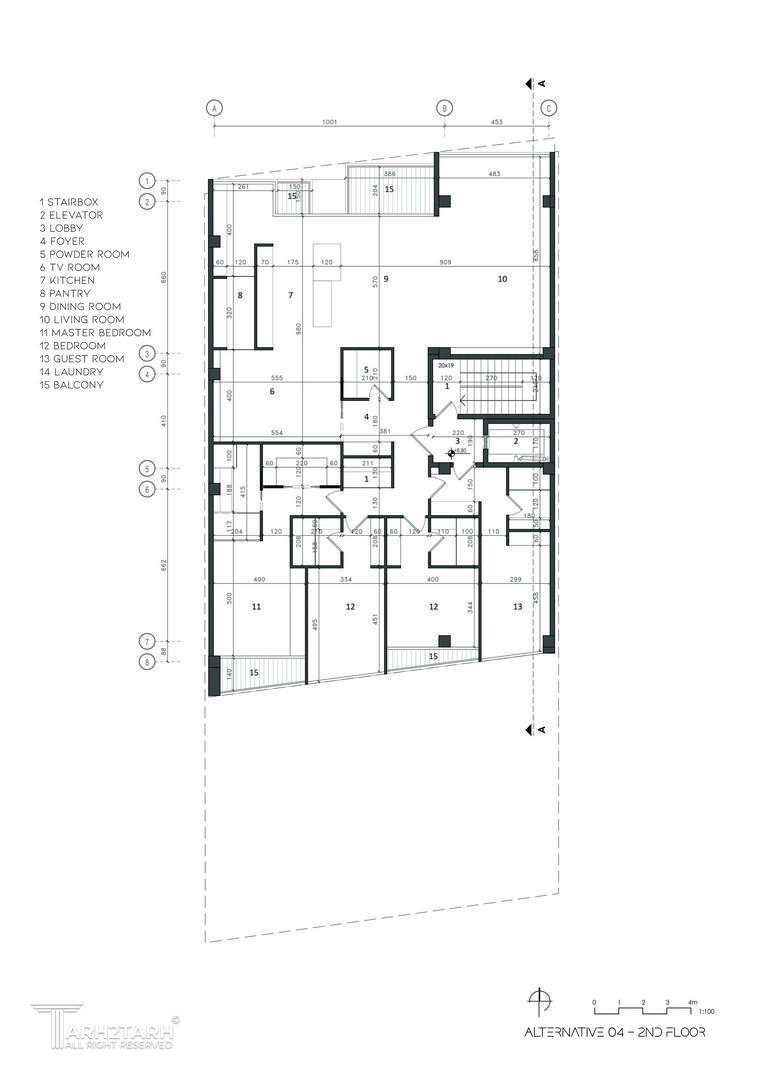
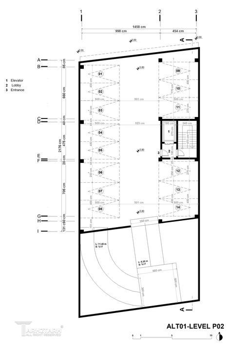
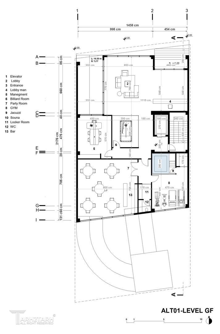
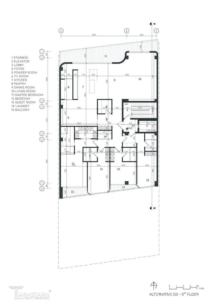
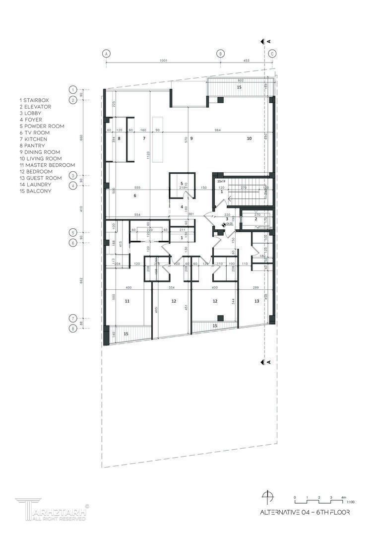
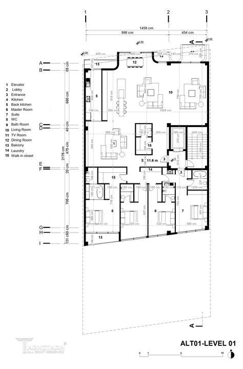
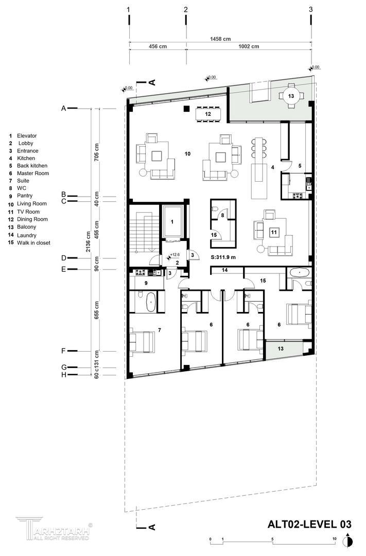
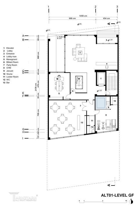
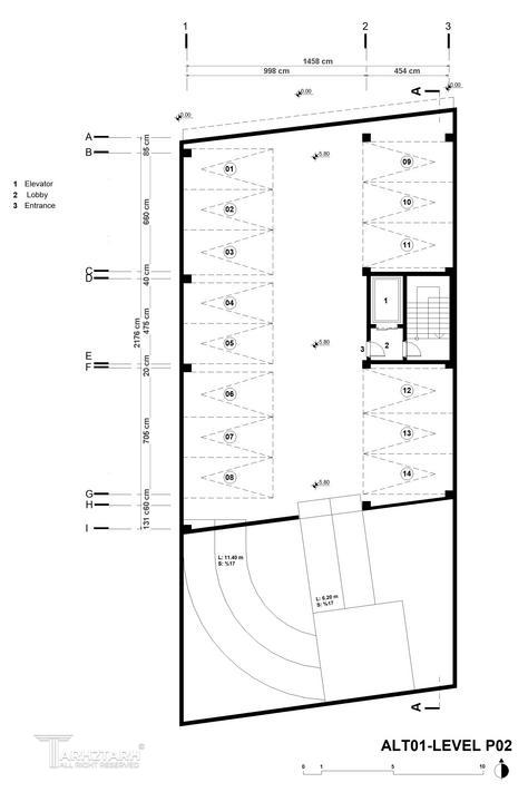
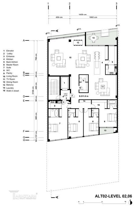
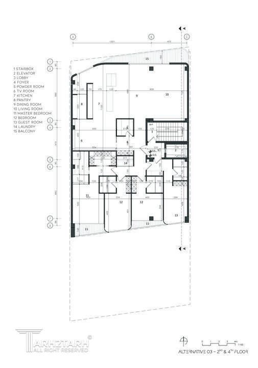
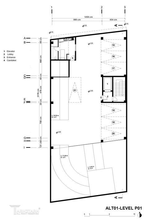
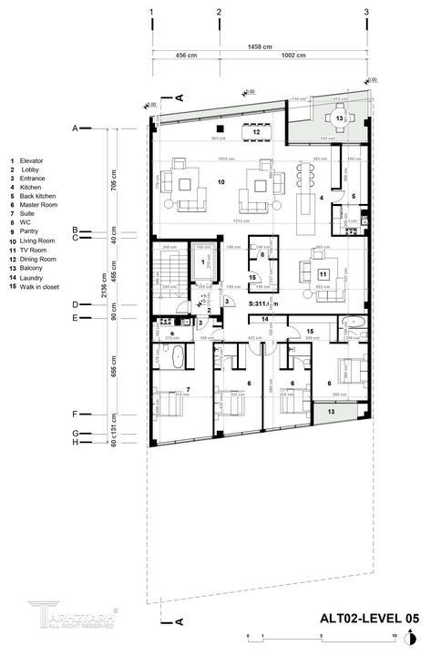
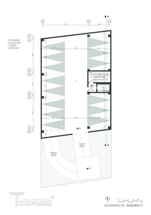
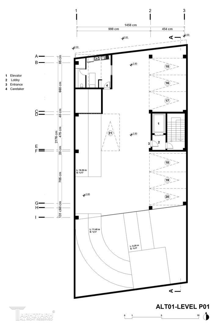
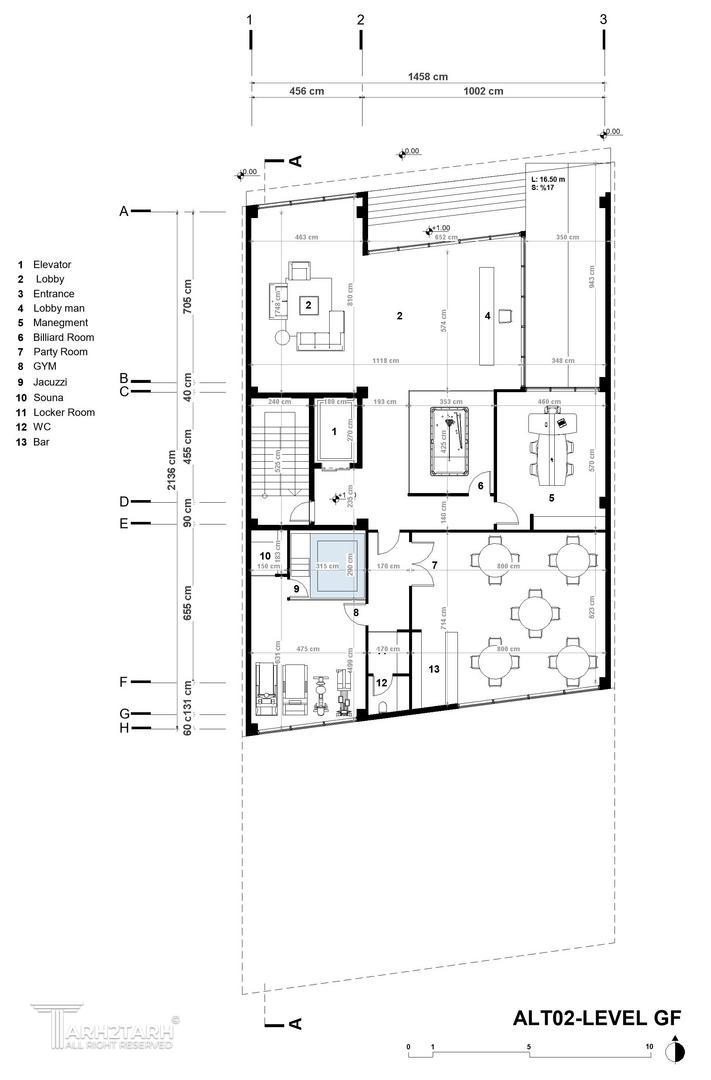
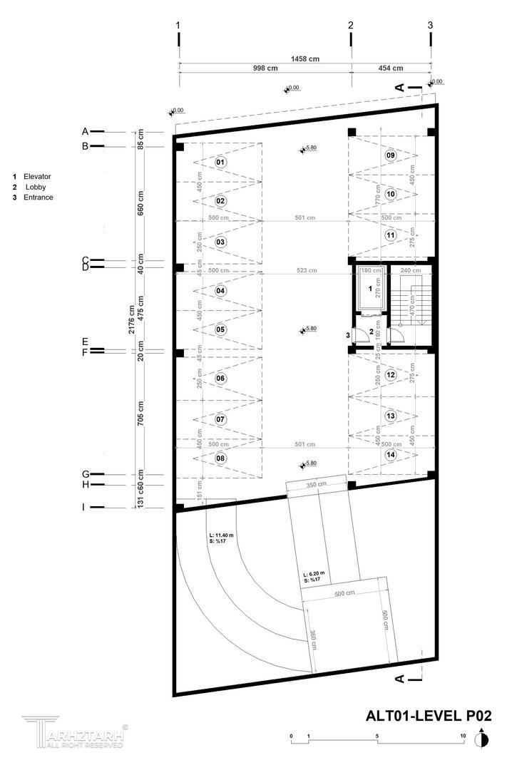
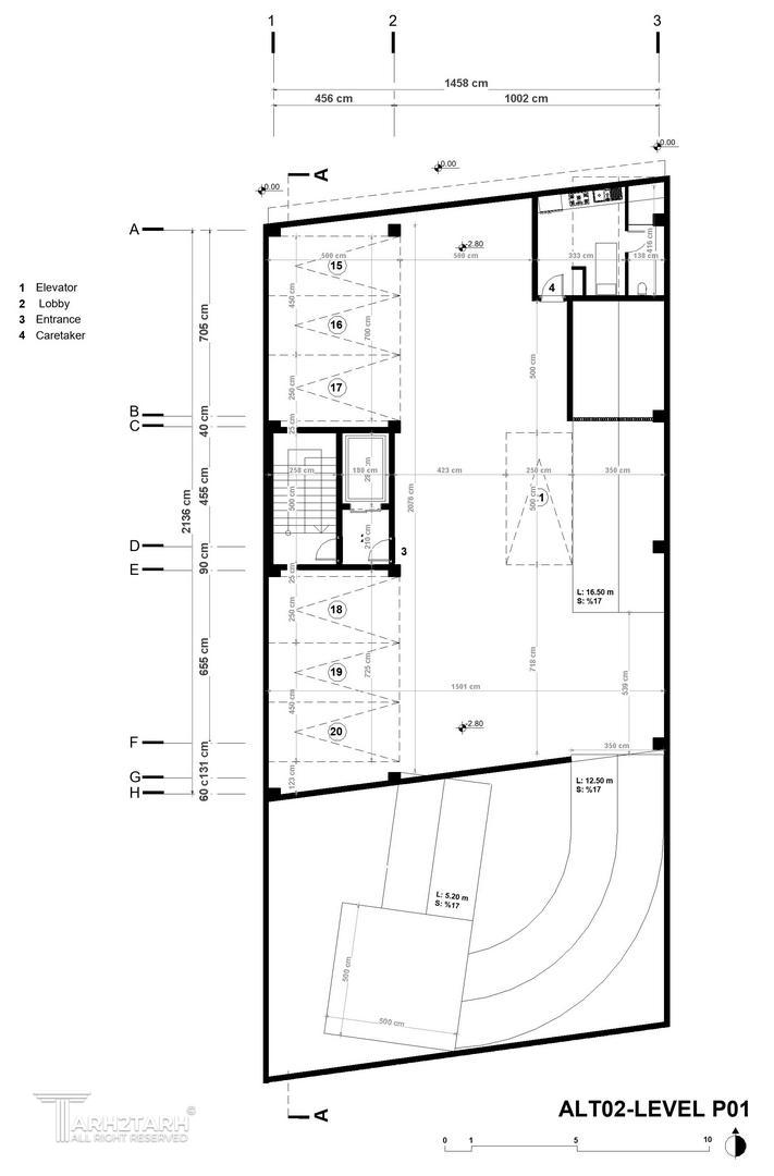
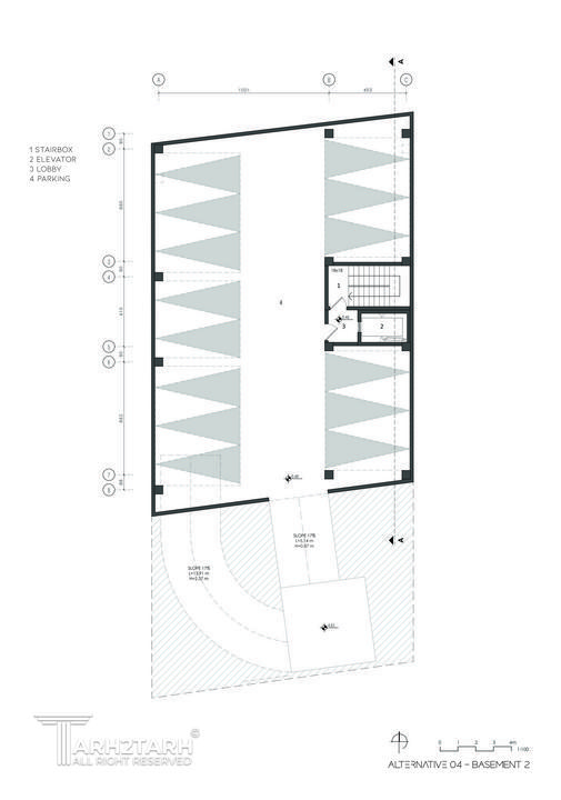
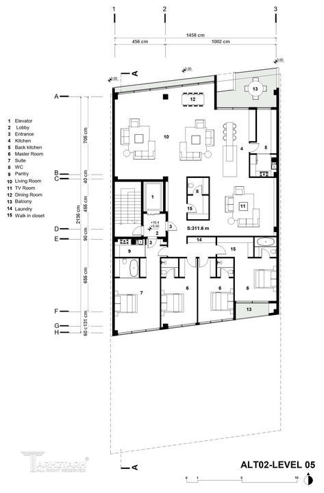
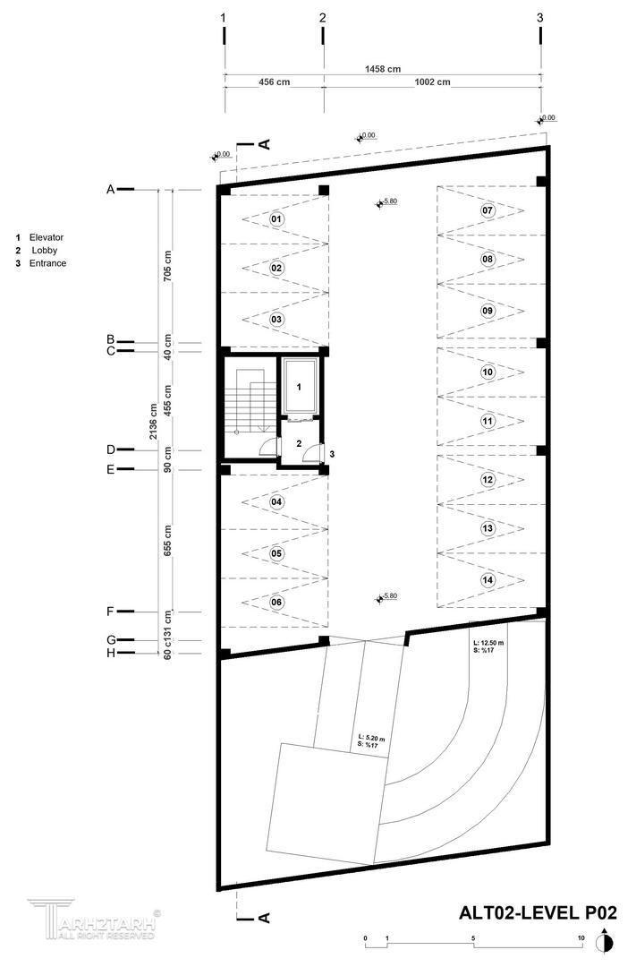
طراحی پلان (نقشه معماری) فاز 1
طراحی نما
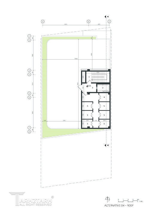
طراحی منظر، فضای سبز، لند اسکیپ، روف گاردن و محوطه
طراحی نورپردازی
طراحی کانسپت (معماری)

موقعیت مکانی پروژه

avatar
سعید هاشم‌زاده
طراحی پلان عالی بود طراحی نما و پارکینگها بسیار خوب انجام شده بود تشکر
2 ماه پیش
avatar
ابراهیم احمدزاده
نما مطلوب است
2 ماه پیش
پیشنهاد و بازخورد