مسابقه طراحی ساختمان مسکونی اریکا 2

2

اطلاعات پروژه

FOR ARCHITECTURE OFFICE

نوع مسابقه: طراحی مسکونی
سال انجام پروژه : 1404
نقش: طراح
موقعیت : مشهد
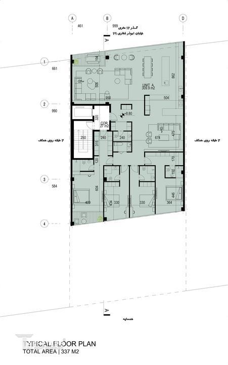
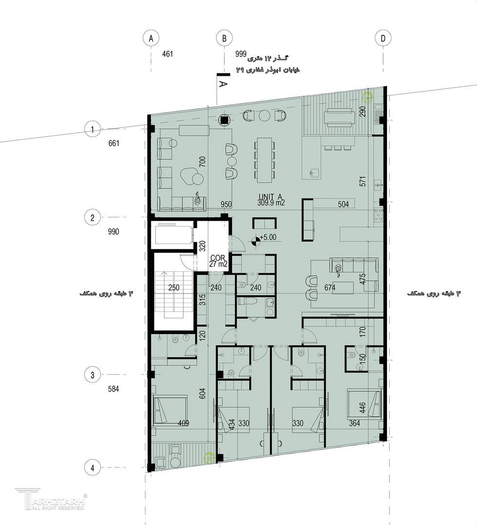
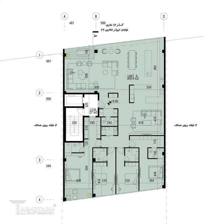
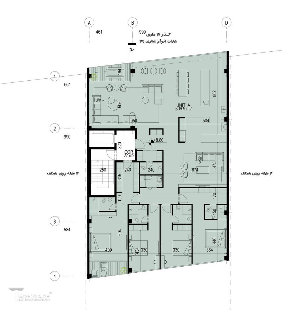
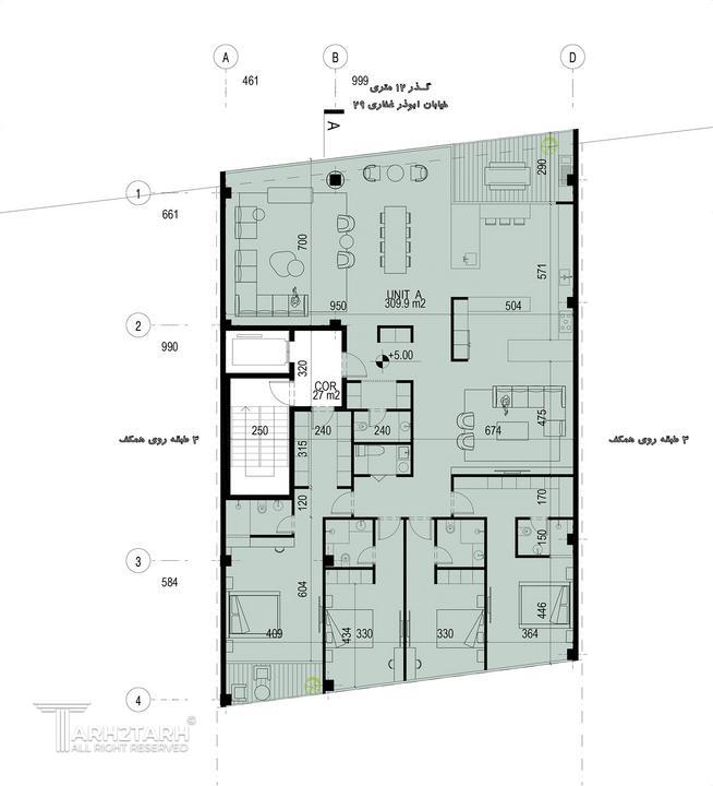
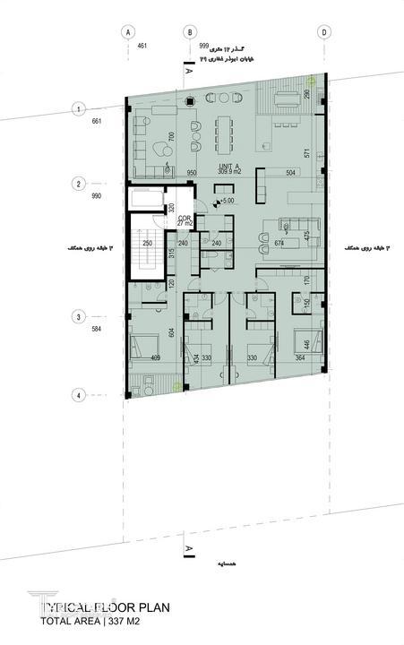
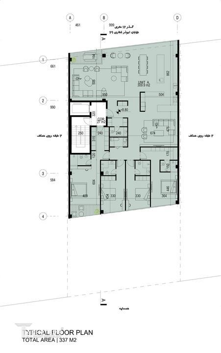
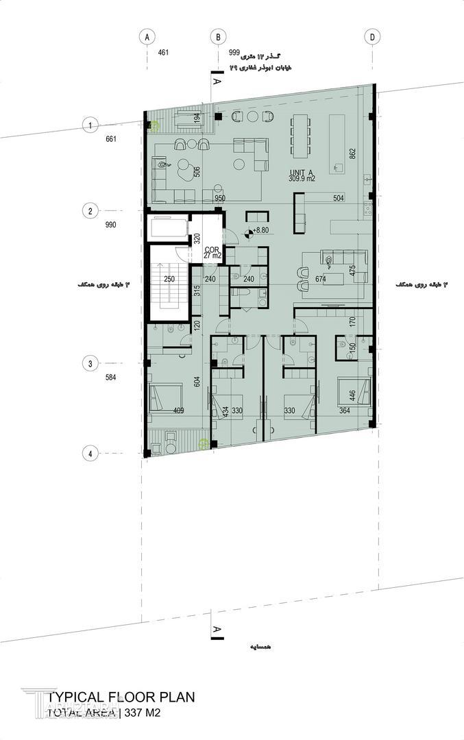
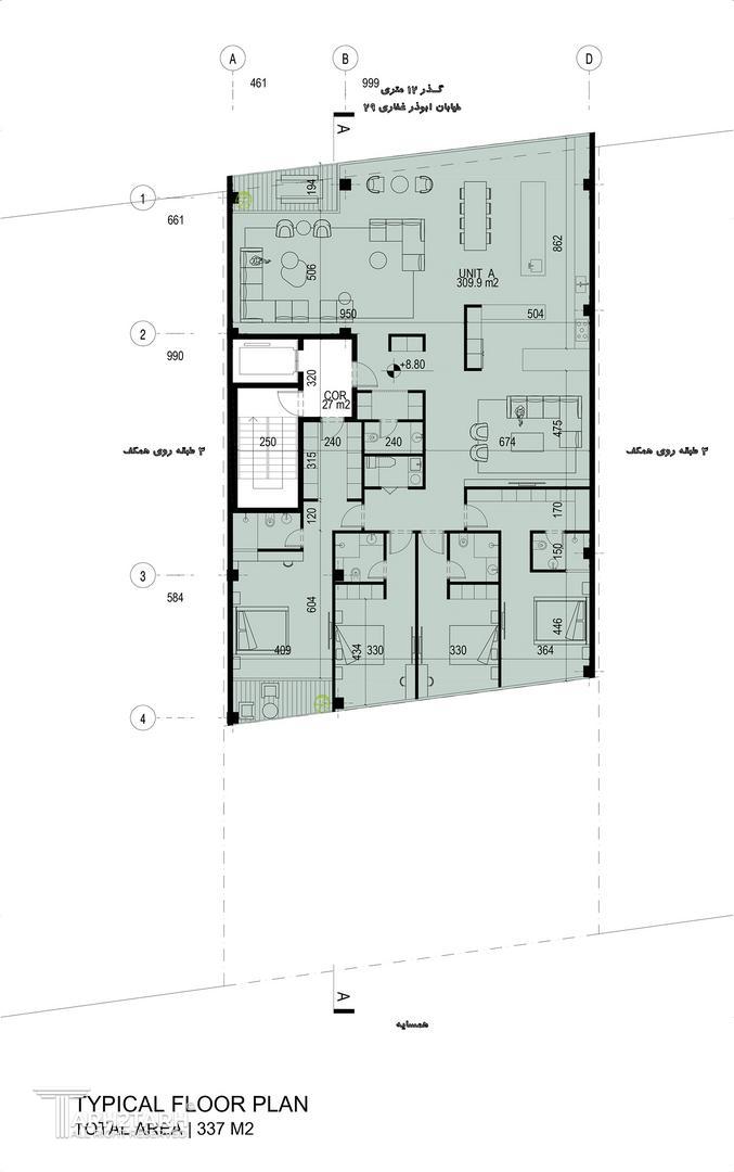
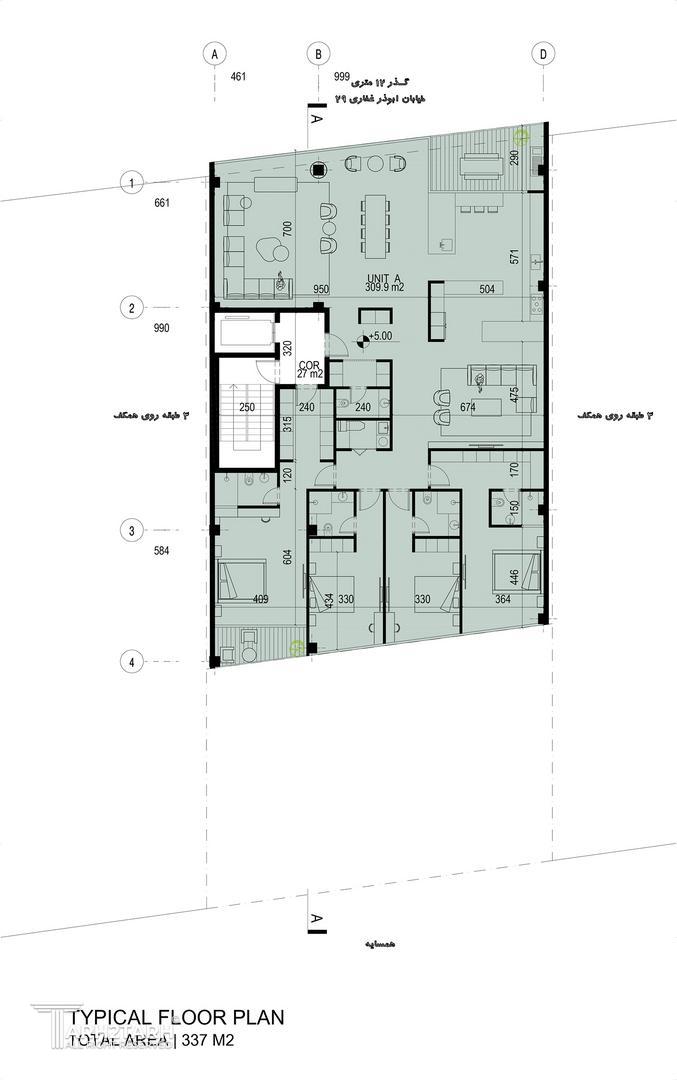
متراژ زیربنا : 2800
مساحت زمین : 499
کارفرما : سعید هاشم‌زاده

خدمات ارائه شده توسط طراح

خدمات طراحی و کانسپت
طراحی منظر، فضای سبز، لند اسکیپ، روف گاردن و محوطه
طراحی نورپردازی
طراحی کانسپت (معماری)
طراحی پلان (نقشه معماری) فاز 1
طراحی نما

موقعیت مکانی پروژه

avatar
سعید هاشم‌زاده
از نظر نما زیبا طراحی شده بود. تعداد پارکینگ مطلوب بود ولی اگر تعداد بیشتری می‌شد طراحی کرد بهتر بود. پلان قابل قبول بود.
3 ماه پیش
avatar
ابراهیم احمدزاده
بنظرم نما مطلوب ولی اجرای آن سخت است
3 ماه پیش
پیشنهاد و بازخورد